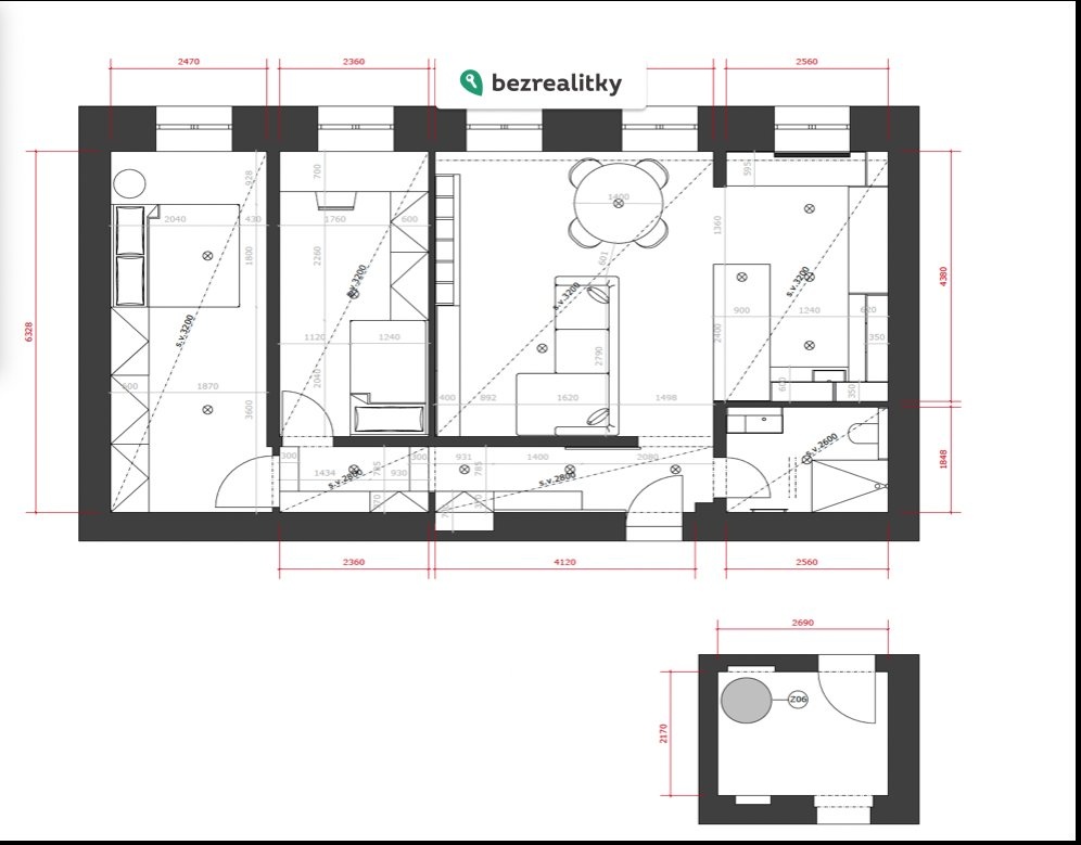
Nabízíme k prodeji byt o dispozici 3+kk o výměře 89 m2, který se nachází v 1. patře činžovního domu na adrese Šantova 10, Olomouc, v atraktivní lokalitě v bezprostřední blízkosti centra města.
Byt prošel kompletní rekonstrukcí podlah a stěn v celkové hodnotě 1 000 000 Kč a je připravený k dokončení dle individuálních představ nového majitele. Díky tomu nabízí ideální kombinaci kvalitně připraveného základu a možnosti vytvořit si bydlení přesně podle vlastního vkusu – bez nutnosti bourání a zásahů do konstrukcí. Součástí je i nové elektrické podlahové vytápění.
Dispozičně se byt skládá z prostorného obývacího pokoje s kuchyňským koutem, dlouhé chodby, ze které je vstup do všech místností, dvou samostatných menších pokojů a koupelny s WC. Dispozice je praktická a umožňuje variabilní využití – například pro rodinné bydlení, nebo investiční pronájem.
Součástí bytu je také samostatná místnost přes chodbu, vhodná pro pračku a sušičku, dále sklepní kóje o velikosti 15 m2. Velkým benefitem domu je rozsáhlá společná zahrada, která poskytuje klidné venkovní zázemí pro relax i rodinné aktivity.
Lokalita patří mezi nejvyhledávanější v Olomouci. V bezprostředním okolí domu se nachází veškerá občanská vybavenost – obchodní dům Šantovka, potraviny, multikino, obchody světových značek, kavárny i restaurace. V docházkové vzdálenosti cca 10 minut je několik parků a náměstí, které nabízejí prostor pro odpočinek i aktivní trávení volného času.
K bytu je možné dodat kompletní návrh interiéru z grafického studia, včetně projektové dokumentace, což výrazně usnadní finální realizaci a urychlí nastěhování Tato nemovitost je určena výhradně přímým zájemcům o koupi. Na inzerát můžete také reagovat přímo na webu Bezrealitky.
Pomocí naší hypoteční kalkulačky si můžete udělat orientační představu o výši měsíčních splátek hypotéky. O vše ostatní se pak postaráme my ve spolupráci s našimi obchodními partnery.
30 365 Kč
* Odhadovaná měsíční splátka vychází z výše úvěru Kč s pevnou úrokovou sazbou % po celou dobu trvání úvěru.
Prodáváte nemovitost a potřebujete zjistit její reálnou hodnotu?
* Umístění na mapě je na základě GPS informací dodaných realitní kanceláří.
* Pozice na mapě je pouze orientační.
Souhlas se zpracováním osobních údajů
Uživatel serveru RealityMIX.cz (dále jen „Server“) dostupného na internetové adrese (URL) https://www.realitymix.cz, který provozuje společnost DALTEN media s.r.o., se sídlem Na Harfě 916/9a, Praha 9, 190 00, IČO: 271 35 306 (dále jen „Správce“) jako provozovateli tohoto Serveru uděluje svůj výslovný souhlas v souladu s ustanovením § 5 zákona č. 101/2000 Sb. O ochraně osobních údajů a o změně některých zákonů, v platném znění (dále jen „zákon o ochraně osobních údajů“), se zpracováním uživatelem poskytnutých osobních údajů a dalších dat.
Uživatel poskytuje Správci osobní údaje v rozsahu: jméno, příjmení, e-mailová adresa, telefonický kontakt a další data, a to z důvodu projeveného zájmu o nemovitost, kde prostřednictvím služby Serveru Správce osloví Uživatel inzerenta uvedeného v detailu
nemovitosti - Bezrealitky s.r.o. (IČ 08063168) se zájmem o jeho služby.
Uživatel tyto osobní údaje poskytuje dobrovolně a bere na vědomí, že součástí služeb Správce, které Správce Uživateli poskytuje, je vyhledání všech Uživateli vyhovujících (dle parametrů - cena, typ nemovitosti, lokalita atd.) nemovitostí. Správce za tímto účelem provozuje aplikace Hlídací pes a newsletter. Tyto služby je možné z každého zaslaného emailu odhlásit. Souhlas se zpracováním osobních údajů Uživatel poskytuje Správci na dobu neurčitou s tím, že svůj udělený souhlas může Uživatel kdykoliv na drese správce info@realitymix.cz odvolat. Správce garantuje Uživateli i další práva uvedené v ustanovení §11 a §21 zákoba č. 101/200 Sb. Ve znění pozdějších předpisů.
Více informací o zpracování údajů získáte zde (realitymix.cz/zasady-ochrany-osobnich-udaju)