Prodej rodinného domu 4+kk s garáží / Olomouc - Slavoje Kovaříka
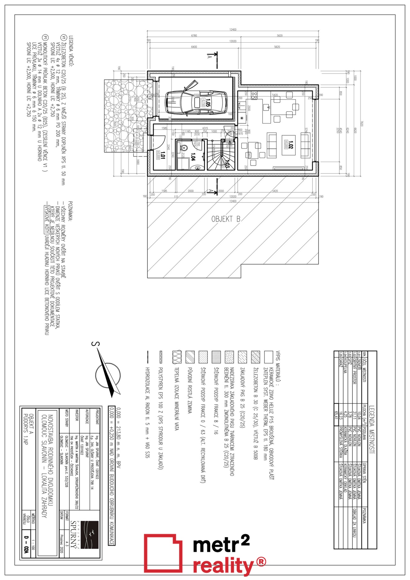
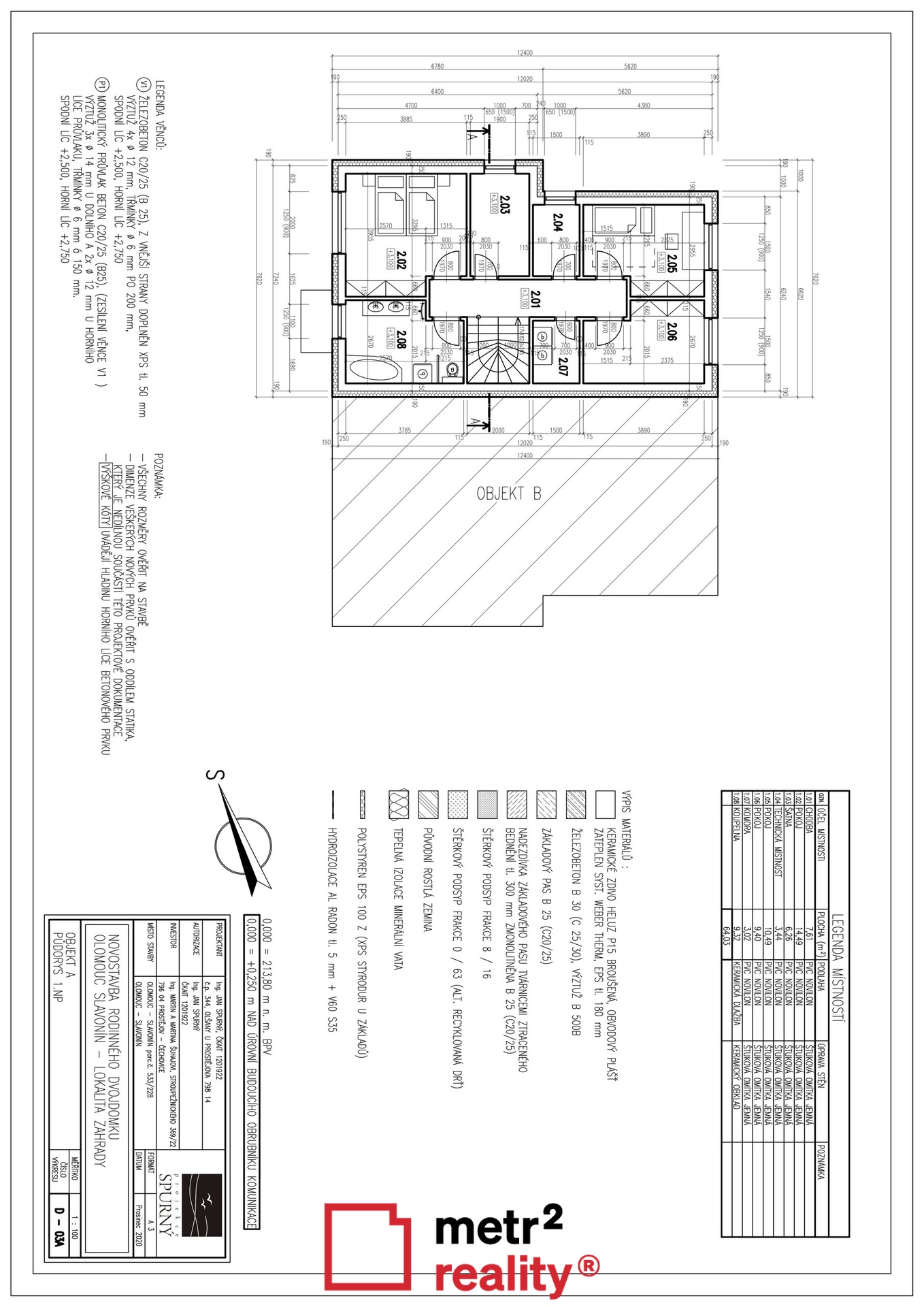
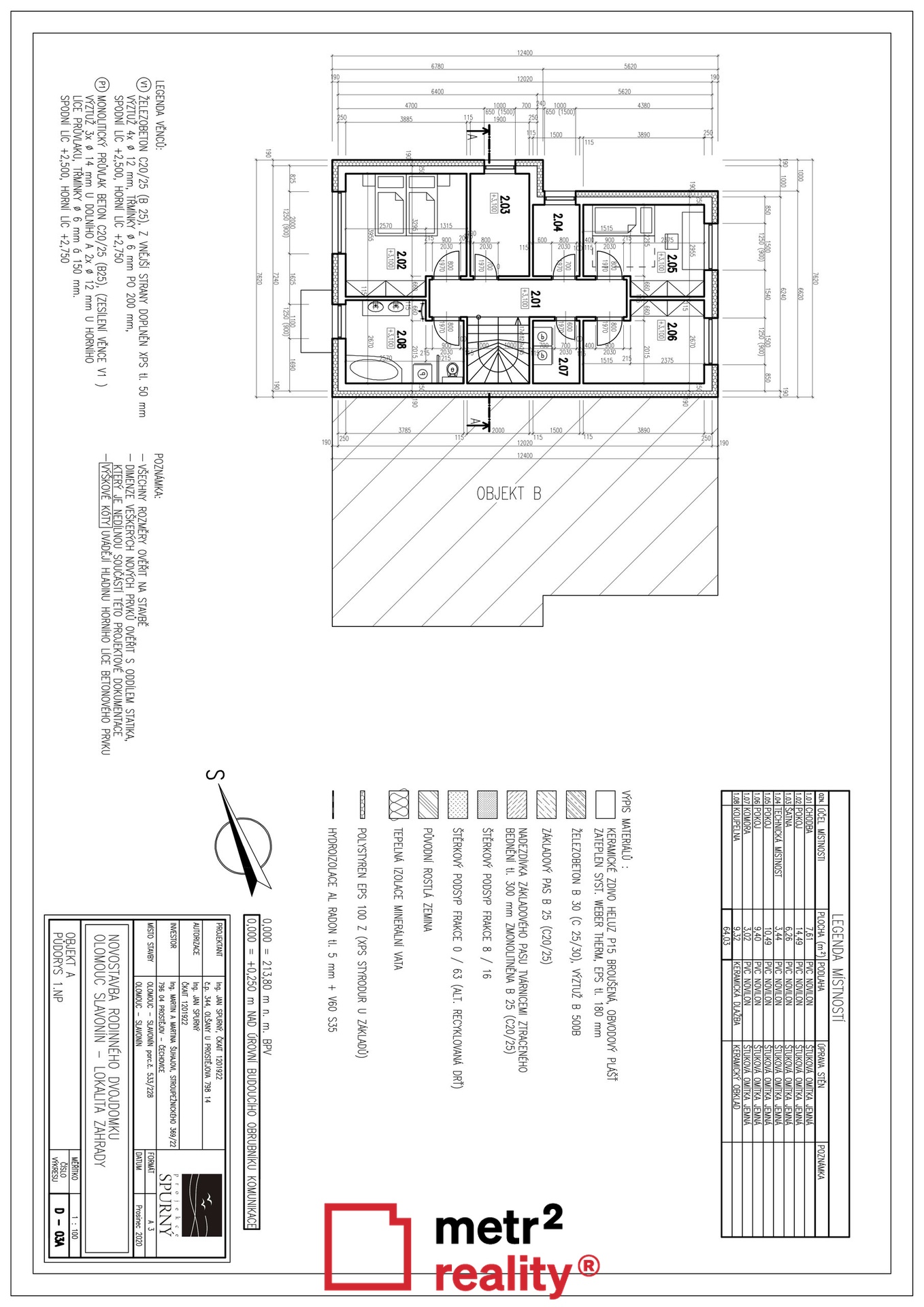
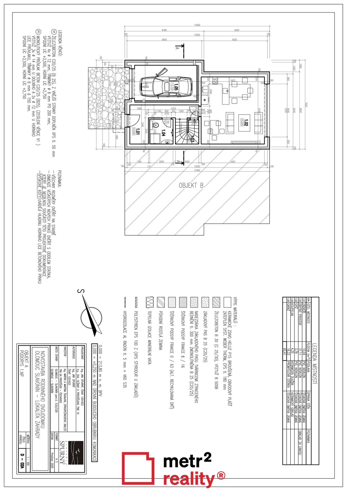
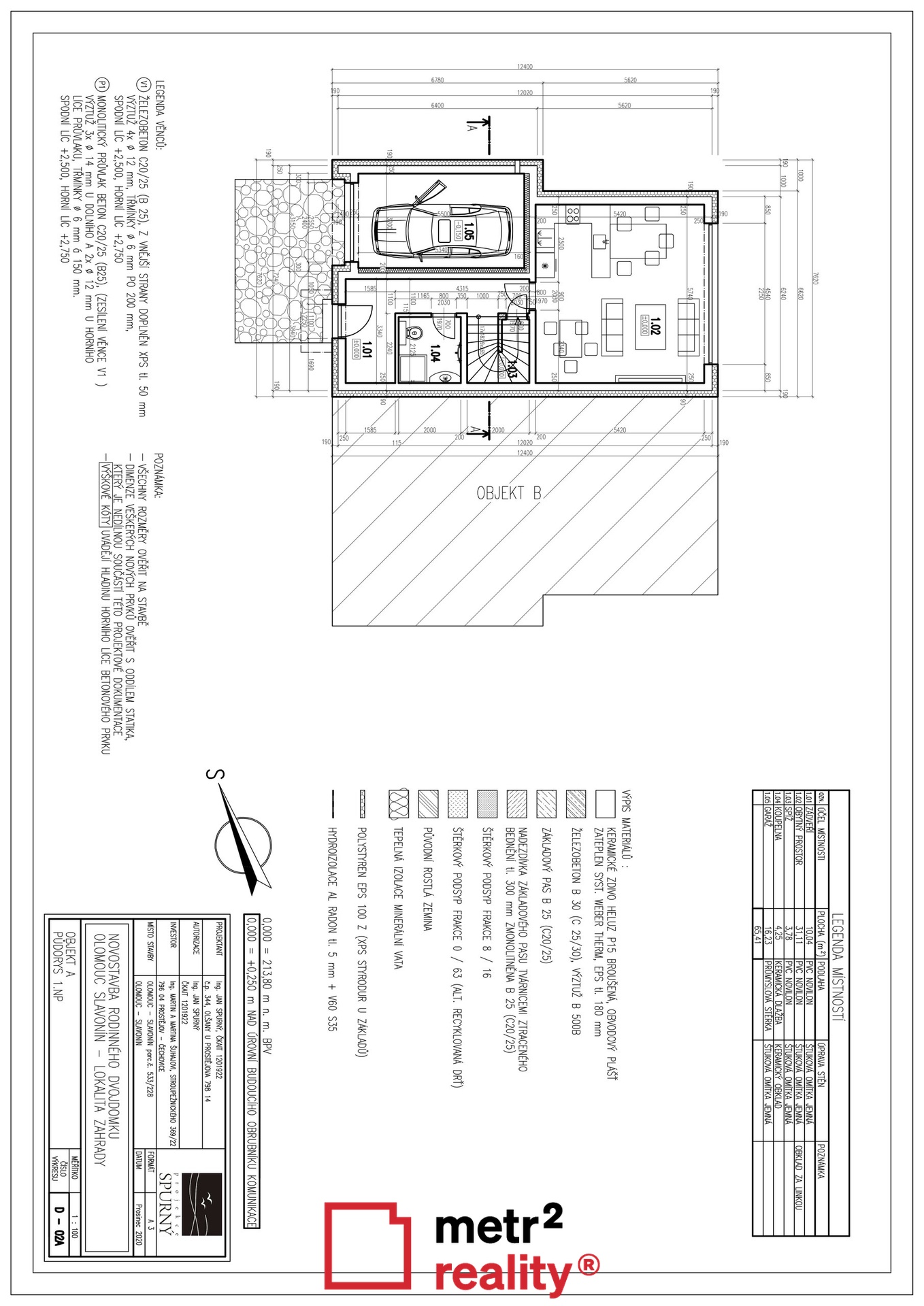
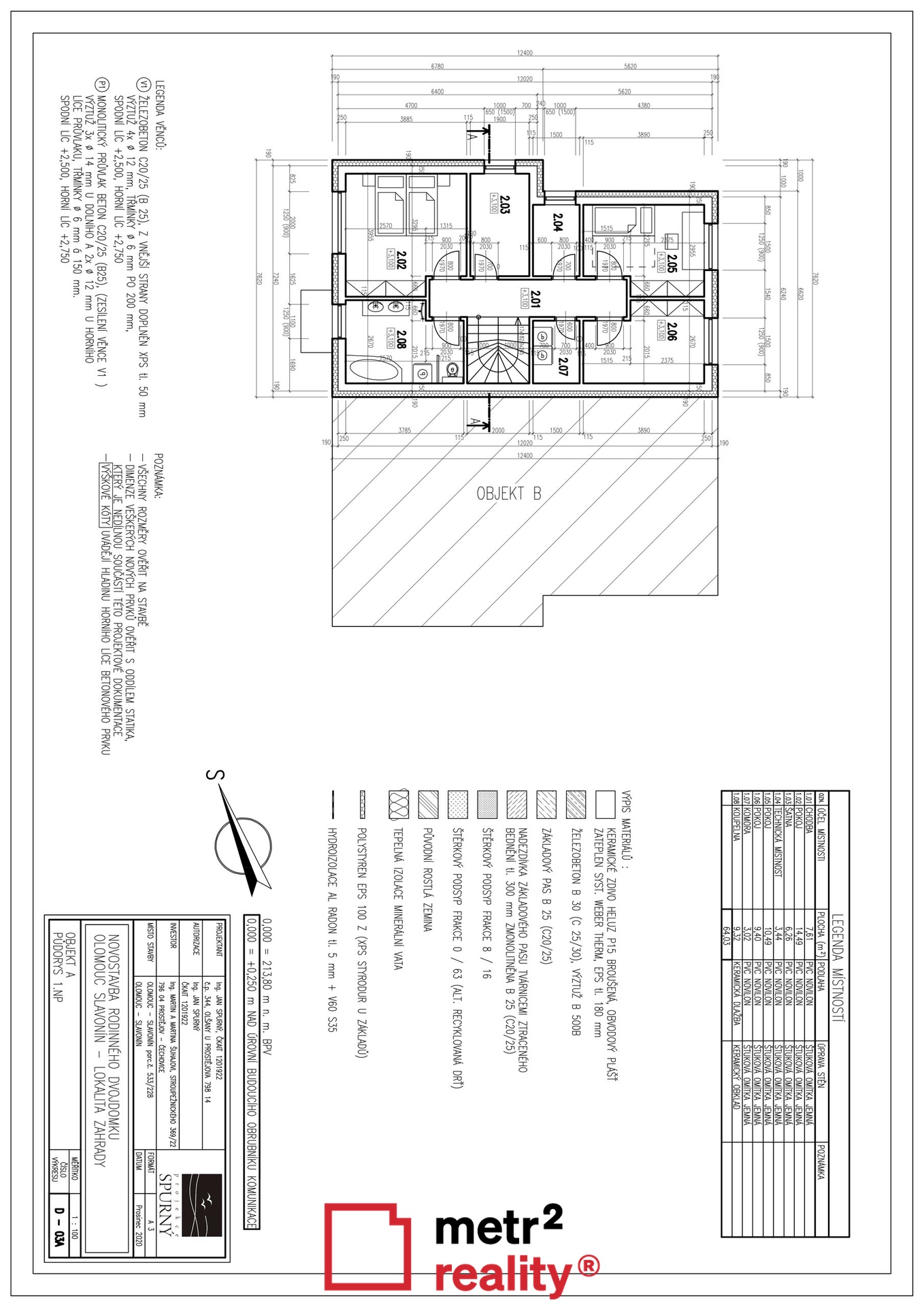
Ve výhradním zastoupení majitele nabízíme k prodeji moderní patrový rodinný dům o dispozici 4+kk, situovaný v atraktivní a klidné lokalitě v Olomouci Slavoníně, která patří mezi nejvyhledávanější části města Olomouc. Dům je ideální pro rodinné bydlení a nabízí nadstandardní užitnou plochu, vlastní zahradu a garáž. Celková plocha pozemku činí 242 m², užitná plocha domu je 143 m². V přízemí se nachází prostorný obývací pokoj s přípravou na kuchyňský kout a přímým vstupem na zahradu francouzským oknem, koupelna s WC a spižírnou pod schodištěm. V přízemí je dále prostorné zádveří a garáž. V patře jsou situovány tři ložnice, koupelna s vanou a sprchovým koutem a druhé WC, technická místnost a dvě šatny. Podlahové vytápění a ohřev vody je zajištěno tepelným čerpadlem. Všechna okna jsou plastová v barvě antracit s izolačním trojsklem a přípravou na venkovní žaluzie. Součástí domu je integrovaná garáž a další venkovní parkovací stání před domem, což poskytuje pohodlné parkování pro dvě vozidla. Slavonín je klidná městská část Olomouce s výbornou občanskou vybaveností – v docházkové vzdálenosti se nachází školy, školky, MHD, obchody, zdravotnická zařízení, cyklostezky i přírodní parky. Centrum Olomouce je dostupné během několika minut autem nebo MHD. Vynikající je i napojení na dálnici D35. Cena uvedená v inzerci je za dům ve stavu uzavřené hrubé stavby včetně rozvodů a omítek, na klientovi bude, aby si dokončil koupelny, podlahové krytiny a interiérové dveře. Je možná i dohoda dokončit dům na klíč na přání klienta. Dům je nyní ve výstavbě a je ve fázi hrubé stavby. V případě zájmu o prohlídku nás neváhejte kontaktovat, rádi Vás domem provedeme.
Pomocí naší hypoteční kalkulačky si můžete udělat orientační představu o výši měsíčních splátek hypotéky. O vše ostatní se pak postaráme my ve spolupráci s našimi obchodními partnery.
54 253 Kč
* Odhadovaná měsíční splátka vychází z výše úvěru Kč s pevnou úrokovou sazbou % po celou dobu trvání úvěru.
Uživatel serveru RealityMIX.cz (dále jen „Server“) dostupného na internetové adrese (URL) https://www.realitymix.cz, který provozuje společnost DALTEN media s.r.o., se sídlem Na Harfě 916/9a, Praha 9, 190 00, IČO: 271 35 306 (dále jen „Správce“) jako provozovateli tohoto Serveru uděluje svůj výslovný souhlas v souladu s ustanovením § 5 zákona č. 101/2000 Sb. O ochraně osobních údajů a o změně některých zákonů, v platném znění (dále jen „zákon o ochraně osobních údajů“), se zpracováním uživatelem poskytnutých osobních údajů a dalších dat.
Uživatel poskytuje Správci osobní údaje v rozsahu: jméno, příjmení, e-mailová adresa, telefonický kontakt a další data, a to z důvodu projeveného zájmu o nemovitost, kde prostřednictvím služby Serveru Správce osloví Uživatel inzerenta uvedeného v detailu
nemovitosti - metr2 reality s.r.o. (IČ 27779661) se zájmem o jeho služby.
Uživatel tyto osobní údaje poskytuje dobrovolně a bere na vědomí, že součástí služeb Správce, které Správce Uživateli poskytuje, je vyhledání všech Uživateli vyhovujících (dle parametrů - cena, typ nemovitosti, lokalita atd.) nemovitostí. Správce za tímto účelem provozuje aplikace Hlídací pes a newsletter. Tyto služby je možné z každého zaslaného emailu odhlásit. Souhlas se zpracováním osobních údajů Uživatel poskytuje Správci na dobu neurčitou s tím, že svůj udělený souhlas může Uživatel kdykoliv na drese správce info@realitymix.cz odvolat. Správce garantuje Uživateli i další práva uvedené v ustanovení §11 a §21 zákoba č. 101/200 Sb. Ve znění pozdějších předpisů.
Více informací o zpracování údajů získáte zde (realitymix.cz/zasady-ochrany-osobnich-udaju)