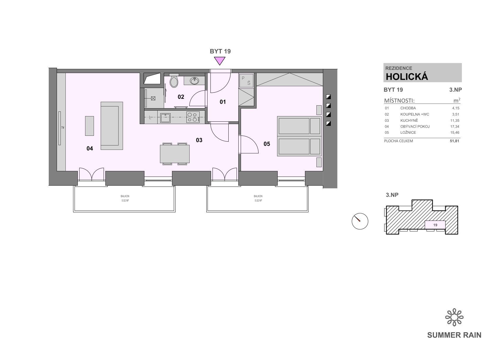
Nabízíme k pronájmu moderně zrekonstruovaný byt 2+kk o velikosti 52 m, situovaný ve druhém patře Rezidence Violka.
Byt prošel kompletní rekonstrukcí v roce 2022 a nabízí komfortní bydlení s koupelnou spojenou s WC, kuchyňskou linkou vybavenou elektrickou troubou, myčkou, indukční deskou a digestoří. Interiér dotvářejí plovoucí podlahy a designová světla. V domě jsou plastová okna a centrální vytápění s ohřevem vody. Obývací pokoj má je propojen s prostorem kuchyně a má 27 m2. Ložnice má 17 m2. V bytě jsou plovoucí podlahy a vestavná skříň. Vývod na pračku je řešen ve skříni.
K bytu náleží také praktická sklepní kóje. Parkování je možné na parkovišti náležejícím k domu. Majitel preferuje nájemce bez psů.
Měsíční nájemné činí 15.000 Kč, poplatky za služby a energie jsou stanoveny na 3.200 Kč pro dvě osoby, elektřina je převedena na nájemce.
Vyžaduje se kauce ve výši 20.000 Kč a provize realitní kanceláře činí 15.000 Kč. Tento byt představuje ideální volbu pro ty, kteří hledají pohodlí a styl v klidné lokalitě.
Uživatel serveru RealityMIX.cz (dále jen „Server“) dostupného na internetové adrese (URL) https://www.realitymix.cz, který provozuje společnost DALTEN media s.r.o., se sídlem Na Harfě 916/9a, Praha 9, 190 00, IČO: 271 35 306 (dále jen „Správce“) jako provozovateli tohoto Serveru uděluje svůj výslovný souhlas v souladu s ustanovením § 5 zákona č. 101/2000 Sb. O ochraně osobních údajů a o změně některých zákonů, v platném znění (dále jen „zákon o ochraně osobních údajů“), se zpracováním uživatelem poskytnutých osobních údajů a dalších dat.
Uživatel poskytuje Správci osobní údaje v rozsahu: jméno, příjmení, e-mailová adresa, telefonický kontakt a další data, a to z důvodu projeveného zájmu o nemovitost, kde prostřednictvím služby Serveru Správce osloví Uživatel inzerenta uvedeného v detailu
nemovitosti - CM reality (IČ 02526824) se zájmem o jeho služby.
Uživatel tyto osobní údaje poskytuje dobrovolně a bere na vědomí, že součástí služeb Správce, které Správce Uživateli poskytuje, je vyhledání všech Uživateli vyhovujících (dle parametrů - cena, typ nemovitosti, lokalita atd.) nemovitostí. Správce za tímto účelem provozuje aplikace Hlídací pes a newsletter. Tyto služby je možné z každého zaslaného emailu odhlásit. Souhlas se zpracováním osobních údajů Uživatel poskytuje Správci na dobu neurčitou s tím, že svůj udělený souhlas může Uživatel kdykoliv na drese správce info@realitymix.cz odvolat. Správce garantuje Uživateli i další práva uvedené v ustanovení §11 a §21 zákoba č. 101/200 Sb. Ve znění pozdějších předpisů.
Více informací o zpracování údajů získáte zde (realitymix.cz/zasady-ochrany-osobnich-udaju)