Exkluzivní rodinné sídlo v Olšanech u Rousínova soukromí, prostor a styl
Představte si místo, kde den začíná šuměním lesa a vůní trávy.
Místo, kde nemusíte spěchat a můžete si užívat život ve vlastním tempu.
Rodinné sídlo Veronese nabízí víc než jen bydlení je to prostor pro život, inspiraci i setkávání celé rodiny.
Prostor pro rodinu i hosty
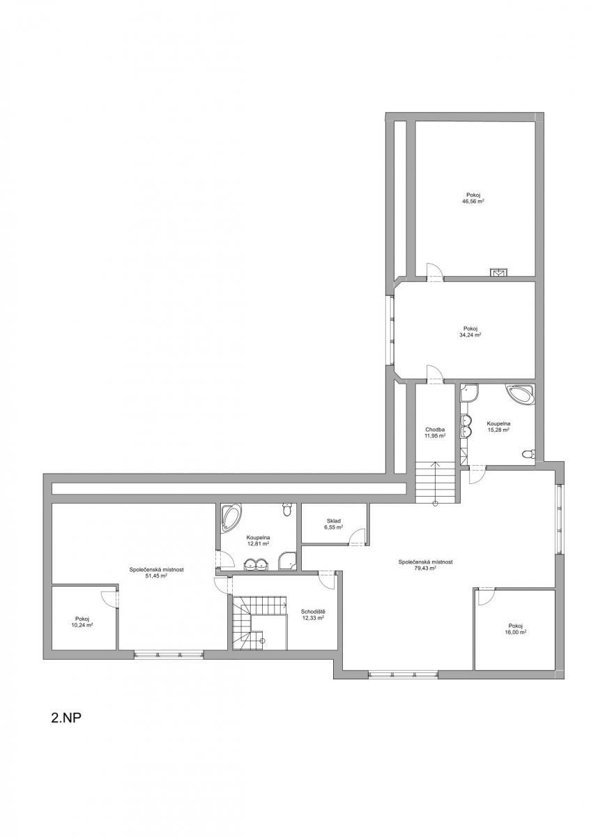
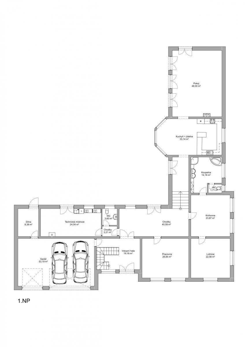
Dům s užitnou plochou 392 m2 je navržen tak, aby spojoval společný život i soukromí.
V přízemí se nachází hlavní byt velkorysý obývací prostor s kuchyní a vstupem na terasu.
V patře jsou dvě samostatné jednotky s přípravou na kuchyně ideální pro vícegenerační bydlení, hosty nebo pronájem.
Součástí je garáž pro tři vozy, dílna a dostatek parkovacích míst pro návštěvy.
Zahrada pro odpočinek i zábavu
Pozemek o rozloze 3 190 m2 nabízí naprosté soukromí a harmonii s okolní přírodou.
Najdete zde vyhřívaný bazén 12 × 5,5 m s lamelovým zakrytím, automatické zavlažování a zahradní osvětlení.
Součástí je i připravená plocha pro tenisový kurt nebo jiné sportovní využití.
Tato zahrada je ideálním místem pro relaxaci, sport i společná setkání s rodinou a přáteli.
Komfort v každém detailu
Podlahové vytápění v obývacím pokoji, kuchyni, koupelnách i chodbách.
Vířivé vany v koupelnách, příprava na saunu, kondenzační plynový kotel, garážová vrata a brána na dálkové ovládání.
Dům je připojen na DSL internet a poskytuje vše pro pohodlné moderní bydlení.
Lokalita klid na dosah města
Olšany jsou malebná obec obklopená lesy, pouhých 28 km od centra Brna a 8 km od dálnice D1.
V okolí najdete turistické a cyklistické trasy, lesní stezky i přírodní krásy jižní Moravy.
Ideální místo pro ty, kdo hledají klidné prostředí s výbornou dostupností.
Nemovitost s charakterem
Rodinné sídlo Veronese je určeno pro ty, kteří hledají víc než jen dům hledají prostor s duší.
Místo, které spojuje soukromí, eleganci a inspirativní atmosféru.
Přijďte si ho prohlédnout osobně a zažijte jeho jedinečnou energii.
Pomocí naší hypoteční kalkulačky si můžete udělat orientační představu o výši měsíčních splátek hypotéky. O vše ostatní se pak postaráme my ve spolupráci s našimi obchodními partnery.
116 968 Kč
* Odhadovaná měsíční splátka vychází z výše úvěru Kč s pevnou úrokovou sazbou % po celou dobu trvání úvěru.
Uživatel serveru RealityMIX.cz (dále jen „Server“) dostupného na internetové adrese (URL) https://www.realitymix.cz, který provozuje společnost DALTEN media s.r.o., se sídlem Na Harfě 916/9a, Praha 9, 190 00, IČO: 271 35 306 (dále jen „Správce“) jako provozovateli tohoto Serveru uděluje svůj výslovný souhlas v souladu s ustanovením § 5 zákona č. 101/2000 Sb. O ochraně osobních údajů a o změně některých zákonů, v platném znění (dále jen „zákon o ochraně osobních údajů“), se zpracováním uživatelem poskytnutých osobních údajů a dalších dat.
Uživatel poskytuje Správci osobní údaje v rozsahu: jméno, příjmení, e-mailová adresa, telefonický kontakt a další data, a to z důvodu projeveného zájmu o nemovitost, kde prostřednictvím služby Serveru Správce osloví Uživatel inzerenta uvedeného v detailu
nemovitosti - Multicont reality Karel Rozsypal (IČ 13052926) se zájmem o jeho služby.
Uživatel tyto osobní údaje poskytuje dobrovolně a bere na vědomí, že součástí služeb Správce, které Správce Uživateli poskytuje, je vyhledání všech Uživateli vyhovujících (dle parametrů - cena, typ nemovitosti, lokalita atd.) nemovitostí. Správce za tímto účelem provozuje aplikace Hlídací pes a newsletter. Tyto služby je možné z každého zaslaného emailu odhlásit. Souhlas se zpracováním osobních údajů Uživatel poskytuje Správci na dobu neurčitou s tím, že svůj udělený souhlas může Uživatel kdykoliv na drese správce info@realitymix.cz odvolat. Správce garantuje Uživateli i další práva uvedené v ustanovení §11 a §21 zákoba č. 101/200 Sb. Ve znění pozdějších předpisů.
Více informací o zpracování údajů získáte zde (realitymix.cz/zasady-ochrany-osobnich-udaju)