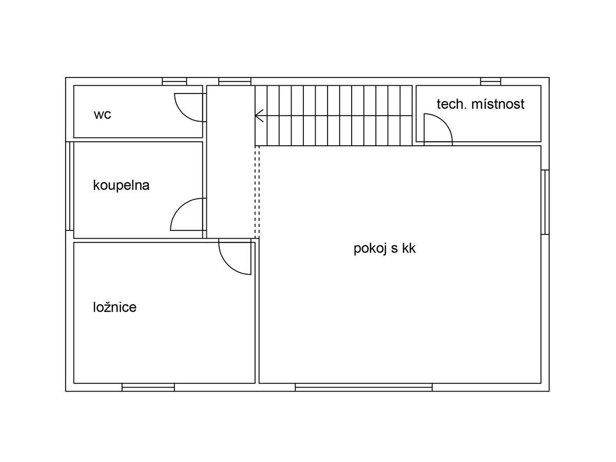
Nabízíme pronájem pěkného bytu v rodinném domě v poblíž ulice Pekařské s dispozicí 2+kk v prvním patře výměře 65 m². Byt v osobním vlastnictví je ve velmi dobrém stavu. Je v něm prostorný a slunečný obývací pokoj s kuchyňským koutem, ložnice s vestavěnými skříněmi, koupelna se sprchovým koutem, WC a technická místnost. K dispozici je parkovací stání! Vytápění vlastním kondenzačním plynovým kotlem. Dům je zateplen, okna jsou plastová, v obývacím pokoji je velké francouzské okno.
Výše měsíčního nájmu je 15.500 Kč + zálohy na služby (6.000,- Kč pro 2 osoby). Kauce je ve výši dvou nájmů, tedy 31.000,- Kč. Prohlídka bytu je možná po předchozí domluvě.
Cena:
15 500 Kč / (za měsíc)
Poznámka:
+ služby
Dispozice/podlahová plocha:
2+kk/65 m²
Číslo zakázky:
REALITYMIX-428
Podrobné informace
Dispozice bytu:2+kk
Číslo podlaží v domě:2
Počet podlaží objektu:2
Užitná plocha:65 m²
Celková podlahová plocha:65 m²
Druh objektu:cihlová
Stav objektu:dobrý
Vlastnictví:osobní
Druh bytu:Byt v rodinném domě
Umístění objektu:rušná část obce
Doprava:vlak, silnice, MHD, autobus
Občanská vybavenost:Kompletní síť obchodů a služeb
Uživatel serveru RealityMIX.cz (dále jen „Server“) dostupného na internetové adrese (URL) https://www.realitymix.cz, který provozuje společnost DALTEN media s.r.o., se sídlem Na Harfě 916/9a, Praha 9, 190 00, IČO: 271 35 306 (dále jen „Správce“) jako provozovateli tohoto Serveru uděluje svůj výslovný souhlas v souladu s ustanovením § 5 zákona č. 101/2000 Sb. O ochraně osobních údajů a o změně některých zákonů, v platném znění (dále jen „zákon o ochraně osobních údajů“), se zpracováním uživatelem poskytnutých osobních údajů a dalších dat.
Uživatel poskytuje Správci osobní údaje v rozsahu: jméno, příjmení, e-mailová adresa, telefonický kontakt a další data, a to z důvodu projeveného zájmu o nemovitost, kde prostřednictvím služby Serveru Správce osloví Uživatel inzerenta uvedeného v detailu
nemovitosti - ATRIM, spol. s r.o. (IČ 48396877) se zájmem o jeho služby.
Uživatel tyto osobní údaje poskytuje dobrovolně a bere na vědomí, že součástí služeb Správce, které Správce Uživateli poskytuje, je vyhledání všech Uživateli vyhovujících (dle parametrů - cena, typ nemovitosti, lokalita atd.) nemovitostí. Správce za tímto účelem provozuje aplikace Hlídací pes a newsletter. Tyto služby je možné z každého zaslaného emailu odhlásit. Souhlas se zpracováním osobních údajů Uživatel poskytuje Správci na dobu neurčitou s tím, že svůj udělený souhlas může Uživatel kdykoliv na drese správce info@realitymix.cz odvolat. Správce garantuje Uživateli i další práva uvedené v ustanovení §11 a §21 zákoba č. 101/200 Sb. Ve znění pozdějších předpisů.
Více informací o zpracování údajů získáte zde (realitymix.cz/zasady-ochrany-osobnich-udaju)