Nabízíme ke koupi kompletně připravený developerský projekt se stavebním povolením - Rezidence Krnovská 9, Opava. Jedná se o demolici stávajícího objektu a následnou výstavbu nového moderního pětipodlažního bytového domu s devíti bytovými jednotkami, situovaný v atraktivní lokalitě v Opavě, na ulici Krnovská kousek od nákupního centra OC Breda & Weinstein.
Projektová dokumentace je detailně zpracovaná studiem ARCHE’S a obsahuje všechny části nutné pro realizaci stavby. Projekt je připraven k okamžitému zahájení výstavby.
Základní informace o projektu:
– Adresa: Krnovská 12/9, Opava - Předměstí
– Parcelní číslo: st. 199/1
– Celkový počet bytů: 9
– Dispozice: 8× byt 3+kk, 1× byt 2+kk
– Celková plocha bytů: 555 m²
– Podlaží: 1.PP + 1.NP + 2.-5.NP
– Zastavěná plocha objektu: 180 m²
– Výmera pozemku: 229 m²
– Parkovací místa: 9 (z toho 1 místo ZTP)
– Objekt není památkově chráněn
– Projekt je v souladu s územním plánem (zóna UA - smíšené obytné)
Technické zázemí domu:
V 1. podzemním podlaží se nachází technická místnost a sklepní koje určené pro jednotlivé byty. V přízemí je k dispozici kolárna pro bezpečné uložení kol a kočárků.
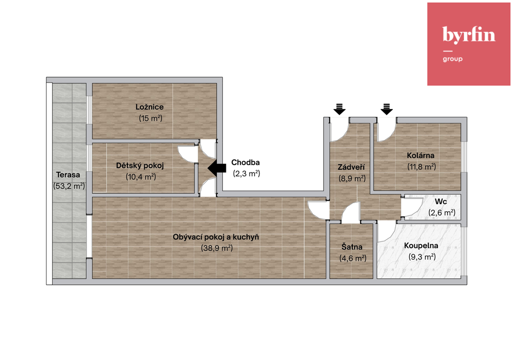
Dispozice a struktura bytů:
1. NP: Jeden prostorný byt 3+kk o velikosti 96 m² se soukromou zahradou 49 m² a vlastní terasou.
2.-4. NP: Každé patro obsahuje dva byty 3+kk, každý o velikosti 59 m². Byty jsou doplněny balkonem o velikosti 14-16 m².
5. NP: Jeden byt 2+kk o velikosti 46 m² s balkonem 16 m² a jeden byt 3+kk o velikosti 59 m² s balkonem 14 m².
Architektonické řešení:
Projekt počítá s demolicí stávajícího objektu a následnou výstavbou nového moderního pětipodlažního bytového domu. Návrh zahrnuje současnou architekturu se skleněnými fasádními prvky orientovanými do ulice Krnovská, které dodají budově čistý a reprezentativní vzhled. Na straně do vnitrobloku jsou navrženy balkony a v 1. NP také soukromá zahrada zajišťující klidné rezidenční prostředí. Nový objekt je navržen tak, aby citlivě doplnil okolní zástavbu a přinesl do lokality kvalitní moderní bydlení.
Lokalita:
Projekt se nachází v zastavěné části města Opavy, v docházkové vzdálenosti od centra. Lokalita nabízí kompletní občanskou vybavenost, přímé napojení na MHD, obchody, služby, školy a dobré dopravní spojení díky blízkosti městského obchvatu. Pozemek je plně napojen na veškeré inženýrské sítě.
Pro koho je projekt vhodný:
Projekt je ideální pro developera, investora nebo stavební společnost, která hledá plně připravený záměr se stavebním povolením. Díky dispozičnímu řešení, balkonům, zahradě a lokalitě je projekt vhodný jak pro následný prodej bytů, tak i pro dlouhodobý nájemní model.
V případě zájmu o detailní dokumentaci, osobní schůzku nebo další informace mě neváhejte kontaktovat.
Více fotografií - 3D půdorysy bytů se připravují.
S vyřízením financování tohoto projektu vám rádi pomůžeme.
Pomocí naší hypoteční kalkulačky si můžete udělat orientační představu o výši měsíčních splátek hypotéky. O vše ostatní se pak postaráme my ve spolupráci s našimi obchodními partnery.
42 512 Kč
* Odhadovaná měsíční splátka vychází z výše úvěru Kč s pevnou úrokovou sazbou % po celou dobu trvání úvěru.
Uživatel serveru RealityMIX.cz (dále jen „Server“) dostupného na internetové adrese (URL) https://www.realitymix.cz, který provozuje společnost DALTEN media s.r.o., se sídlem Na Harfě 916/9a, Praha 9, 190 00, IČO: 271 35 306 (dále jen „Správce“) jako provozovateli tohoto Serveru uděluje svůj výslovný souhlas v souladu s ustanovením § 5 zákona č. 101/2000 Sb. O ochraně osobních údajů a o změně některých zákonů, v platném znění (dále jen „zákon o ochraně osobních údajů“), se zpracováním uživatelem poskytnutých osobních údajů a dalších dat.
Uživatel poskytuje Správci osobní údaje v rozsahu: jméno, příjmení, e-mailová adresa, telefonický kontakt a další data, a to z důvodu projeveného zájmu o nemovitost, kde prostřednictvím služby Serveru Správce osloví Uživatel inzerenta uvedeného v detailu
nemovitosti - ByrFin Real Estate, s.r.o. (IČ 07564457) se zájmem o jeho služby.
Uživatel tyto osobní údaje poskytuje dobrovolně a bere na vědomí, že součástí služeb Správce, které Správce Uživateli poskytuje, je vyhledání všech Uživateli vyhovujících (dle parametrů - cena, typ nemovitosti, lokalita atd.) nemovitostí. Správce za tímto účelem provozuje aplikace Hlídací pes a newsletter. Tyto služby je možné z každého zaslaného emailu odhlásit. Souhlas se zpracováním osobních údajů Uživatel poskytuje Správci na dobu neurčitou s tím, že svůj udělený souhlas může Uživatel kdykoliv na drese správce info@realitymix.cz odvolat. Správce garantuje Uživateli i další práva uvedené v ustanovení §11 a §21 zákoba č. 101/200 Sb. Ve znění pozdějších předpisů.
Více informací o zpracování údajů získáte zde (realitymix.cz/zasady-ochrany-osobnich-udaju)