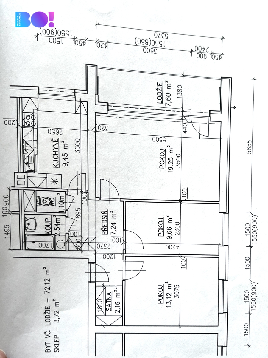
Prodej bytu 3+1, 72m² se zasklenou lodžíí na ul. Vdovská Ostrava Muglinov
BO!reality Vám exkluzivně nabízí k prodeji krásný bezbariérový byt 3+1 v osobním vlastnictví o výměře 72 m² v žádané lokalitě Ostrava – Muglinov na ul. Vdovská.
Byt se nachází ve 4. podlaží ze 7 revitalizovaného bytového domu s bezbariérovým přístupem a výtahem, což zajišťuje pohodlné bydlení pro všechny věkové kategorie. Dům je navíc vybaven kamerovým systémem se záznamem, který zvyšuje bezpečnost a komfort obyvatel.
Nemovitost prošla kompletní rekonstrukcí, díky které nabízí moderní a komfortní bydlení bez nutnosti dalších investic. V bytě byla provedena nová elektroinstalace, rozvody vody v plastu, nové podlahy, interiérové úpravy a instalována nová moderní kuchyňská linka. Velkým benefitem jsou také vestavěné skříně, které zajišťují dostatek úložného prostoru.
Dispozice bytu je velmi praktická – nabízí prostorný obývací pokoj, dva samostatné neprůchozí pokoje, samostatnou kuchyni, koupelnu a oddělené WC.
V koupelně naleznete nový obklad a moderní sprchový kout, toaleta je samostatná.
Velkou předností bytu je prostorná zasklená lodžie s příjemným výhledem do zeleně, která nabízí ideální místo pro ranní kávu či večerní odpočinek.
Lokalita Ostrava – Muglinov nabízí výbornou občanskou vybavenost a dostupnost – v blízkosti se nachází škola, školka, obchody, MHD i dostatek zeleně pro volnočasové aktivity.
Pokud hledáte moderní bydlení bez dalších investic, neváhejte mě kontaktovat pro více informací nebo si domluvit nezávaznou prohlídku. Rád Vás bytem osobně provedu.
Pomocí naší hypoteční kalkulačky si můžete udělat orientační představu o výši měsíčních splátek hypotéky. O vše ostatní se pak postaráme my ve spolupráci s našimi obchodními partnery.
25 467 Kč
* Odhadovaná měsíční splátka vychází z výše úvěru Kč s pevnou úrokovou sazbou % po celou dobu trvání úvěru.
Prodáváte nemovitost a potřebujete zjistit její reálnou hodnotu?
Uživatel serveru RealityMIX.cz (dále jen „Server“) dostupného na internetové adrese (URL) https://www.realitymix.cz, který provozuje společnost DALTEN media s.r.o., se sídlem Na Harfě 916/9a, Praha 9, 190 00, IČO: 271 35 306 (dále jen „Správce“) jako provozovateli tohoto Serveru uděluje svůj výslovný souhlas v souladu s ustanovením § 5 zákona č. 101/2000 Sb. O ochraně osobních údajů a o změně některých zákonů, v platném znění (dále jen „zákon o ochraně osobních údajů“), se zpracováním uživatelem poskytnutých osobních údajů a dalších dat.
Uživatel poskytuje Správci osobní údaje v rozsahu: jméno, příjmení, e-mailová adresa, telefonický kontakt a další data, a to z důvodu projeveného zájmu o nemovitost, kde prostřednictvím služby Serveru Správce osloví Uživatel inzerenta uvedeného v detailu
nemovitosti - BO! reality a finance s.r.o. (IČ 03739741) se zájmem o jeho služby. Tato společnost je součástí seskupení/sítě/franšízového modelu realitních kanceláří, jejich seznam můžete zobrazit kliknutím na tento odkaz.
BO! reality a finance s.r.o. (IČ 03739741) , BO! reality a finance s.r.o. (IČ 03739741) , BO! reality a finance s.r.o. (IČ 03739741) , BO! reality a finance s.r.o. (IČ 03739741) , BO! reality a finance s.r.o. (IČ 03739741) , BO! reality a finance s.r.o. (IČ 03739741) , BO! reality a finance s.r.o. (IČ 03739741) , BO! reality a finance s.r.o. (IČ 03739741) , BO! reality a finance s.r.o. (IČ 03739741) , BO! reality a finance s.r.o. (IČ 03739741) , Agrární půdní fond s.r.o. (IČ 09182098) , BO! reality a finance s.r.o. (IČ 03739741) , BO! reality a finance s.r.o. (IČ 03739741)
Uživatel tyto osobní údaje poskytuje dobrovolně a bere na vědomí, že součástí služeb Správce, které Správce Uživateli poskytuje, je vyhledání všech Uživateli vyhovujících (dle parametrů - cena, typ nemovitosti, lokalita atd.) nemovitostí. Správce za tímto účelem provozuje aplikace Hlídací pes a newsletter. Tyto služby je možné z každého zaslaného emailu odhlásit. Souhlas se zpracováním osobních údajů Uživatel poskytuje Správci na dobu neurčitou s tím, že svůj udělený souhlas může Uživatel kdykoliv na drese správce info@realitymix.cz odvolat. Správce garantuje Uživateli i další práva uvedené v ustanovení §11 a §21 zákoba č. 101/200 Sb. Ve znění pozdějších předpisů.
Více informací o zpracování údajů získáte zde (realitymix.cz/zasady-ochrany-osobnich-udaju)