Prodej komerční nemovitosti ul. Lihovarská, Ostrava - Radvanice
Nabízíme k prodeji jedinečnou komerční nemovitost s vypracovanou architektonickou studií přestavby objektu na moderní rezidenční bydlení.
Tento projekt představuje výjimečnou investiční příležitost v atraktivní lokalitě Ostravy pouze 10 minut od centra města.
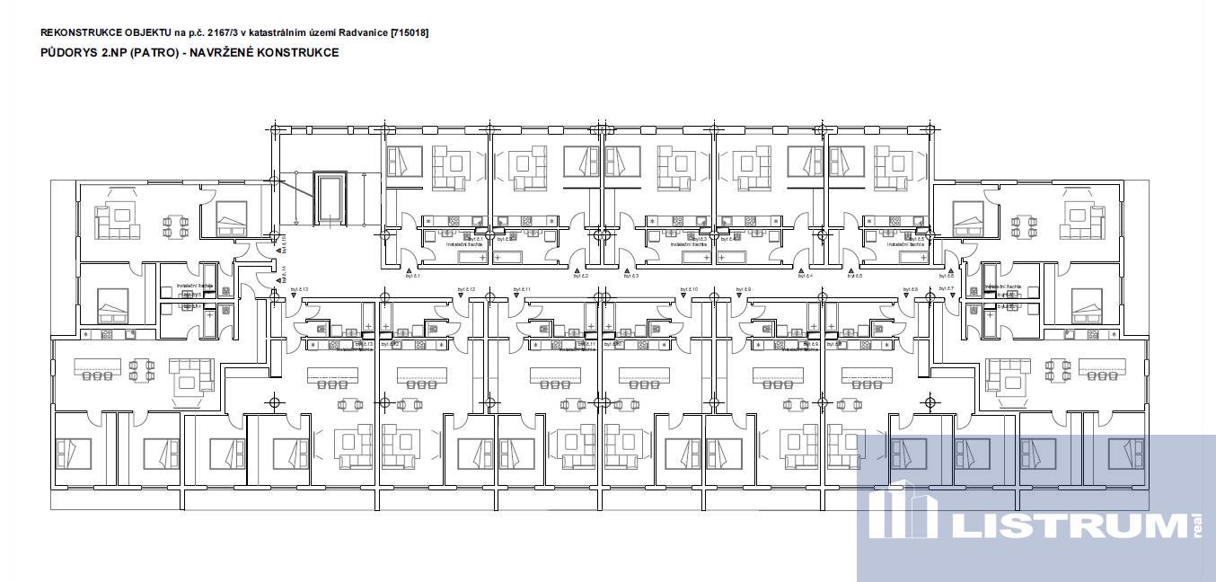
Projekt počítá s vybudováním 30 bytových jednotek ve dvou nadzemních podlažích a s možností využití suterénu pro technické zázemí či skladovací prostory.
Budova s robustní železobetonovou konstrukcí je uvnitř vybourána a nachystána na zahájení rekonstrukce.
Základní informace:
- Zastavěná plocha budovy: 1 356 m
- Celková výměra pozemku: 7 251 m
- Konstrukce: železobetonový skelet robustní a variabilní pro budoucí využití
- Stav: interiér je kompletně vybourán a připraven pro rekonstrukci dle vypracované studie
Projektová studie:
- Suterén skladové prostory, technické zázemí, případně jiné komerční využití
- 1. NP 15 bytových jednotek
- 2. NP 15 bytových jednotek
- Možnost doplnit o kanceláře či menší provozovny dle potřeb investora
Lokalita a občanská vybavenost:
- Nemovitost se nachází v klidnější části města, zároveň pouze 10 minut od centra Ostravy
- Výborná dopravní dostupnost přímo u objektu se nachází autobusová zastávka
- V těsné blízkosti supermarket Penny Market
- KouPark sportovně-rekreační areál pro děti i dospělé ve vzdálenosti 800 m
- Klidné prostředí pro rezidenční bydlení, ale zároveň blízkost centra města pro komerční aktivity
Proč investovat právě zde:
- Železobetonový skelet umožňuje variabilní řešení dispozic a zajišťuje dlouhou životnost stavby
- Hotová studie rekonstrukce ušetří investorovi čas i náklady na přípravu projektu
- Lukrativní lokalita s rostoucí poptávkou po bydlení i komerčních prostorech se snadným parkováním
- Velký rozsah pozemku poskytuje prostor pro další využití nebo rozšíření projektu
- Kombinace skladových, kancelářských a rezidenčních prostor zaručuje široké možnosti budoucího pronájmu a stabilní výnos
Tento projekt je vhodný pro investory, kteří hledají nemovitost s jasně definovaným potenciálem a atraktivní návratností.
Pomocí naší hypoteční kalkulačky si můžete udělat orientační představu o výši měsíčních splátek hypotéky. O vše ostatní se pak postaráme my ve spolupráci s našimi obchodními partnery.
113 364 Kč
* Odhadovaná měsíční splátka vychází z výše úvěru Kč s pevnou úrokovou sazbou % po celou dobu trvání úvěru.
Uživatel serveru RealityMIX.cz (dále jen „Server“) dostupného na internetové adrese (URL) https://www.realitymix.cz, který provozuje společnost DALTEN media s.r.o., se sídlem Na Harfě 916/9a, Praha 9, 190 00, IČO: 271 35 306 (dále jen „Správce“) jako provozovateli tohoto Serveru uděluje svůj výslovný souhlas v souladu s ustanovením § 5 zákona č. 101/2000 Sb. O ochraně osobních údajů a o změně některých zákonů, v platném znění (dále jen „zákon o ochraně osobních údajů“), se zpracováním uživatelem poskytnutých osobních údajů a dalších dat.
Uživatel poskytuje Správci osobní údaje v rozsahu: jméno, příjmení, e-mailová adresa, telefonický kontakt a další data, a to z důvodu projeveného zájmu o nemovitost, kde prostřednictvím služby Serveru Správce osloví Uživatel inzerenta uvedeného v detailu
nemovitosti - Listrum real s.r.o. (IČ 27812332) se zájmem o jeho služby.
Uživatel tyto osobní údaje poskytuje dobrovolně a bere na vědomí, že součástí služeb Správce, které Správce Uživateli poskytuje, je vyhledání všech Uživateli vyhovujících (dle parametrů - cena, typ nemovitosti, lokalita atd.) nemovitostí. Správce za tímto účelem provozuje aplikace Hlídací pes a newsletter. Tyto služby je možné z každého zaslaného emailu odhlásit. Souhlas se zpracováním osobních údajů Uživatel poskytuje Správci na dobu neurčitou s tím, že svůj udělený souhlas může Uživatel kdykoliv na drese správce info@realitymix.cz odvolat. Správce garantuje Uživateli i další práva uvedené v ustanovení §11 a §21 zákoba č. 101/200 Sb. Ve znění pozdějších předpisů.
Více informací o zpracování údajů získáte zde (realitymix.cz/zasady-ochrany-osobnich-udaju)