Pronájem, nebytový prostor 25m2, Ostrava - Vítkovice
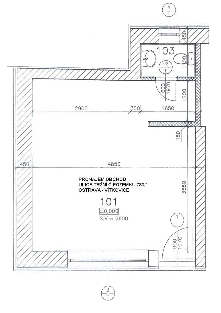
Pronájem nebytového prostoru v centru Ostravy - Vítkovice, na ul. Tržní. Prostor o výměře 25 m2 má samostatný vstup přímo z ulice a nachází se u hlavní ulice Jeremenkova. Prostor je vhodné využít například jako kancelář, provozovnu, zastoupení firmy, prodejnu, salon a jiné. Prostor byl doposud využíván jako kancelář firmy. Před domem je velké parkoviště s možností parkování přímo v objektu. Veškerá občanská vybavenost se nachází v bezprostředním blízkosti. V případě zájmu, je možné se dohodnout i na pronájmu garsonky, která se nachází nad prostorem, případně ji využít taktéž jako kancelář či školící místnost. Nad prostorem je možné umístit vlastní reklamu. Prostor se pronajímá bez vybavení, přiložené fotky jsou jako vizualizace. K dispozici dle dohody.
Cena:
7 200 Kč / (za měsíc)
Poznámka:
+ záloha na elektřinu 700,- + teplo a voda paušální rozpočet, kauce ve výši 2 měsíčních nájmů, hradí se provize RK
Uživatel serveru RealityMIX.cz (dále jen „Server“) dostupného na internetové adrese (URL) https://www.realitymix.cz, který provozuje společnost DALTEN media s.r.o., se sídlem Na Harfě 916/9a, Praha 9, 190 00, IČO: 271 35 306 (dále jen „Správce“) jako provozovateli tohoto Serveru uděluje svůj výslovný souhlas v souladu s ustanovením § 5 zákona č. 101/2000 Sb. O ochraně osobních údajů a o změně některých zákonů, v platném znění (dále jen „zákon o ochraně osobních údajů“), se zpracováním uživatelem poskytnutých osobních údajů a dalších dat.
Uživatel poskytuje Správci osobní údaje v rozsahu: jméno, příjmení, e-mailová adresa, telefonický kontakt a další data, a to z důvodu projeveného zájmu o nemovitost, kde prostřednictvím služby Serveru Správce osloví Uživatel inzerenta uvedeného v detailu
nemovitosti - Nice Property CO. s.r.o. (IČ 07756470) se zájmem o jeho služby.
Uživatel tyto osobní údaje poskytuje dobrovolně a bere na vědomí, že součástí služeb Správce, které Správce Uživateli poskytuje, je vyhledání všech Uživateli vyhovujících (dle parametrů - cena, typ nemovitosti, lokalita atd.) nemovitostí. Správce za tímto účelem provozuje aplikace Hlídací pes a newsletter. Tyto služby je možné z každého zaslaného emailu odhlásit. Souhlas se zpracováním osobních údajů Uživatel poskytuje Správci na dobu neurčitou s tím, že svůj udělený souhlas může Uživatel kdykoliv na drese správce info@realitymix.cz odvolat. Správce garantuje Uživateli i další práva uvedené v ustanovení §11 a §21 zákoba č. 101/200 Sb. Ve znění pozdějších předpisů.
Více informací o zpracování údajů získáte zde (realitymix.cz/zasady-ochrany-osobnich-udaju)