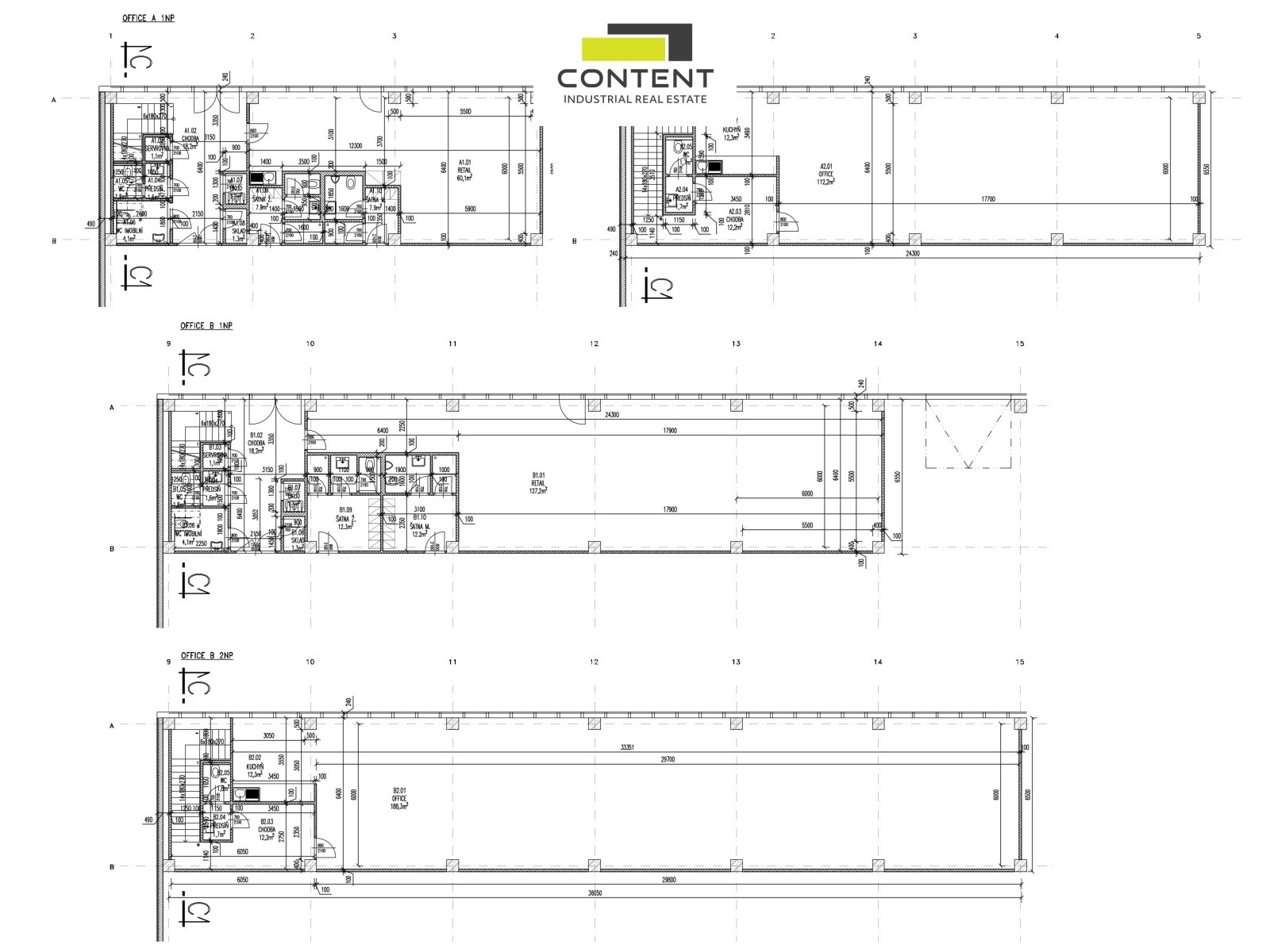
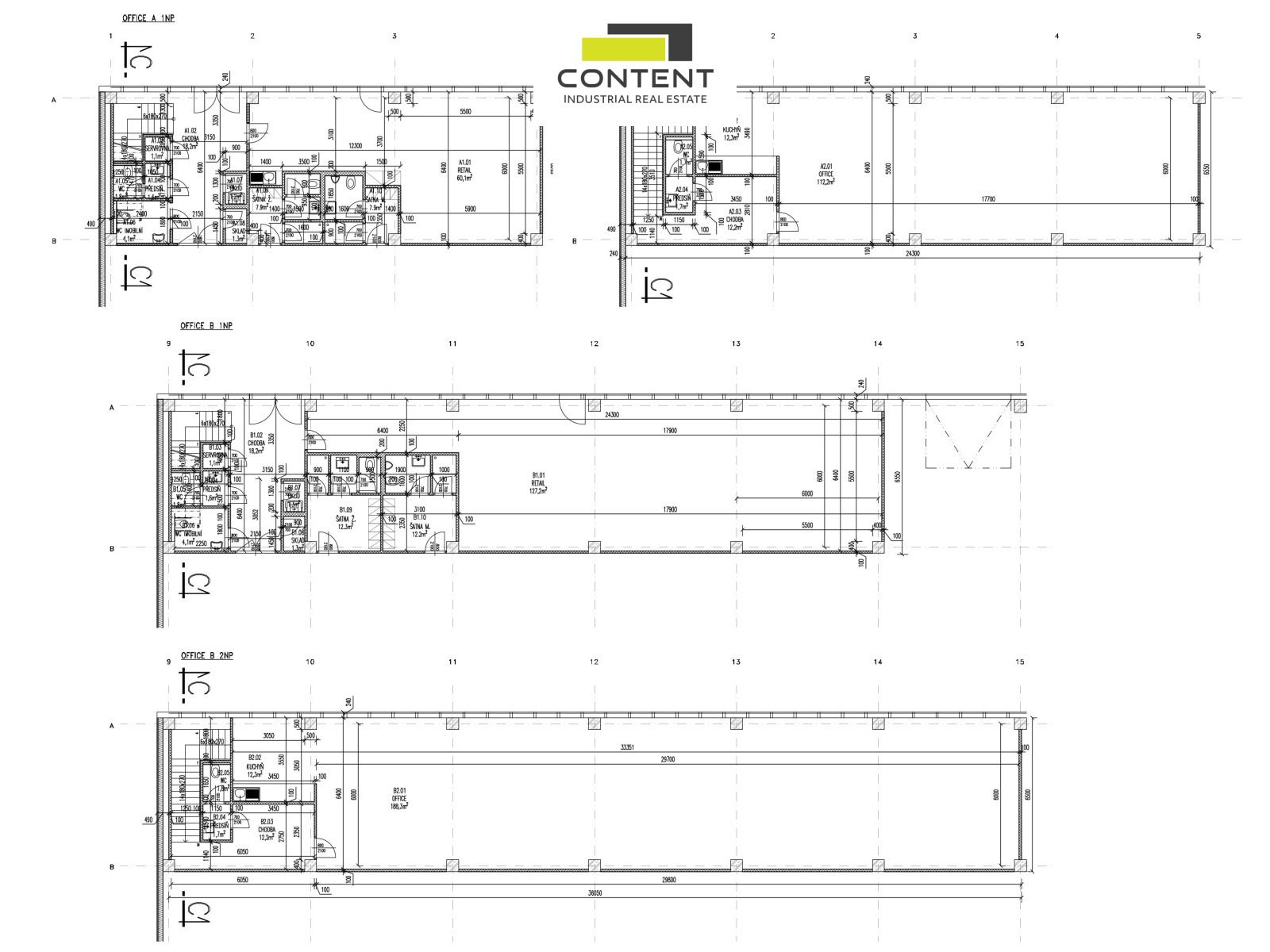
Pronájem novostavby skladových, výrobních prostor 594 m², Ostrava - Zárubek
Pronájem skladu, výrobních prostor Ostrava, Slezská - Zárubek.
V zastoupení majitele a bez provize nabízíme industriální prostory ve výstavbě na velice strategickém místě poblíže OC Nová Karolína administrativního komplexu ORGANICA. Budova bude dodána s nejmodernějšími technologiemi a trendy ze stavebnictví. Jednotky se ideálně hodí jako sídlo firmy se showroomem, prodejnou, servisem, skladem, nebo lehkou výrobou. Umístění areálu je dále ideální na city logistiku, distribuci v rámci centra Ostravy, atd.
- jednotka o velikosti 594 m² ihned k dispozici
- z toho 108 m² showroom + kanceláře v 1.NP a 2.NP
- k dispozici samostatné jednotky od 594 m² - 4608 m² v rámci jedné budovy
- výroba, sklad, servis, dílna, distribuce, kanceláře, výdejny
- možnost klientských změn a úprav dle požadavků nájemníka
- nosnost podlahy minimálně 5 t/m²
- voda, plyn, elektřina, kanalizace
- přímé vjezdy, nakládací rampy
- kanceláře vytápěné tepelným čerpadlem
- hala vytápěná plynovými saharami
- certifikace budovy BREEAM VERY GOOD
- FVE + bateriové úložiště pro udržitelný provoz budovy
Cena bude stanovena dle konkrétních podmínek smlouvy.
Pro více informací nás kontaktujte. V případě zájmu Vám rádi zajistíme prohlídku.
Uživatel serveru RealityMIX.cz (dále jen „Server“) dostupného na internetové adrese (URL) https://www.realitymix.cz, který provozuje společnost DALTEN media s.r.o., se sídlem Na Harfě 916/9a, Praha 9, 190 00, IČO: 271 35 306 (dále jen „Správce“) jako provozovateli tohoto Serveru uděluje svůj výslovný souhlas v souladu s ustanovením § 5 zákona č. 101/2000 Sb. O ochraně osobních údajů a o změně některých zákonů, v platném znění (dále jen „zákon o ochraně osobních údajů“), se zpracováním uživatelem poskytnutých osobních údajů a dalších dat.
Uživatel poskytuje Správci osobní údaje v rozsahu: jméno, příjmení, e-mailová adresa, telefonický kontakt a další data, a to z důvodu projeveného zájmu o nemovitost, kde prostřednictvím služby Serveru Správce osloví Uživatel inzerenta uvedeného v detailu
nemovitosti - CONTENT REALITY s.r.o. (IČ 04001613) se zájmem o jeho služby.
Uživatel tyto osobní údaje poskytuje dobrovolně a bere na vědomí, že součástí služeb Správce, které Správce Uživateli poskytuje, je vyhledání všech Uživateli vyhovujících (dle parametrů - cena, typ nemovitosti, lokalita atd.) nemovitostí. Správce za tímto účelem provozuje aplikace Hlídací pes a newsletter. Tyto služby je možné z každého zaslaného emailu odhlásit. Souhlas se zpracováním osobních údajů Uživatel poskytuje Správci na dobu neurčitou s tím, že svůj udělený souhlas může Uživatel kdykoliv na drese správce info@realitymix.cz odvolat. Správce garantuje Uživateli i další práva uvedené v ustanovení §11 a §21 zákoba č. 101/200 Sb. Ve znění pozdějších předpisů.
Více informací o zpracování údajů získáte zde (realitymix.cz/zasady-ochrany-osobnich-udaju)