V jedné z nejkrásnějších a nejvyhledávanějších částí Beskyd, v obci Ostravice, nabízím ke koupi výjimečné stavební pozemky určené pro náročné klienty, kteří hledají klid, soukromí a nadčasové bydlení v harmonii s přírodou.
Pozemky se nachází v prestižní lokalitě v blízkosti golfového resortu Ostravice, obklopené lesy a otevřenými výhledy na beskydskou krajinu. Místo působí klidně, vzdušně a přirozeně – ideální pro ty, kteří chtějí uniknout ruchu města, aniž by se vzdali komfortu.
Součástí prodeje je platné stavební povolení a kompletní architektonický projekt moderní horské vily, citlivě navržené s ohledem na okolní krajinu, soukromí i nadčasovou eleganci. Díky tomu je možné zahájit výstavbu bez zdlouhavých administrativních procesů a soustředit se pouze na realizaci vysněného domova.
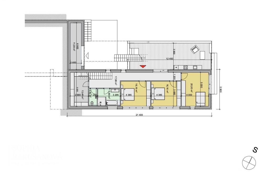
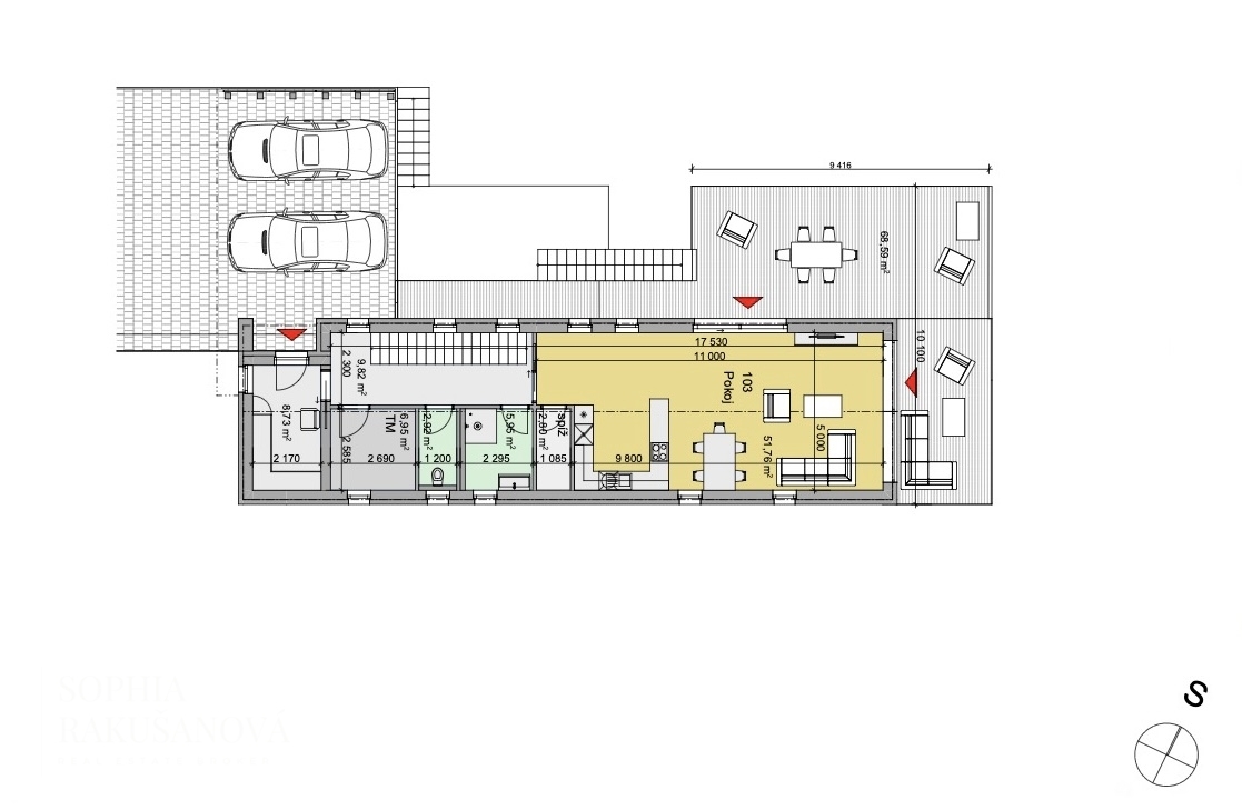
Dům je navržen s užitnou plochou 205 m² bez teras, přičemž celková plocha včetně velkorysých teras činí 347 m². Dispozice 4+kk nabízí dostatek prostoru a soukromí pro celou rodinu, a zároveň vytváří otevřené a přirozené centrum domu pro společné chvíle.
Architektonické řešení klade důraz na nadčasový design, funkčnost a komfort. Velké prosklené plochy umožňují každodenní kontakt s okolní přírodou a přinášejí do interiéru dostatek denního světla. Terasy plynule navazují na obytné prostory a rozšiřují životní prostor směrem do zahrady a okolní krajiny.
Dům je navržen v energetické třídě B, která zajišťuje nízké provozní náklady a vysoký standard bydlení. Součástí projektu jsou moderní technologie, jako je podlahové vytápění, tepelné čerpadlo a rekuperační systém, které společně vytvářejí zdravé vnitřní prostředí a maximální komfort v průběhu celého roku.
Pozemky o výměrách 1 481 m² a 2963m² poskytují dostatek prostoru nejen pro samotný dům, ale i pro zahradu, terasy a klidové zóny, kde si lze naplno vychutnat ticho hor, čistý vzduch a výhledy přes údolí, kde se tyčí Lysá Hora.
Ostravice je dlouhodobě považována za jednu z nejprestižnějších lokalit v Beskydech. Nabízí ideální kombinaci přírody, sportovního vyžití a kvalitní občanské vybavenosti. V okolí najdete golfové hřiště, restaurace, wellness, turistické a cyklistické trasy i možnosti zimních sportů. Výborná dostupnost do Frýdku-Místku a Ostravy zajišťuje komfortní každodenní fungování.
Tato nabídka je určena těm, kteří nehledají kompromis, ale místo s atmosférou, charakterem a dlouhodobou hodnotou – místo, kde vznikne skutečný domov.
Pomocí naší hypoteční kalkulačky si můžete udělat orientační představu o výši měsíčních splátek hypotéky. O vše ostatní se pak postaráme my ve spolupráci s našimi obchodními partnery.
32 390 Kč
* Odhadovaná měsíční splátka vychází z výše úvěru Kč s pevnou úrokovou sazbou % po celou dobu trvání úvěru.
Uživatel serveru RealityMIX.cz (dále jen „Server“) dostupného na internetové adrese (URL) https://www.realitymix.cz, který provozuje společnost DALTEN media s.r.o., se sídlem Na Harfě 916/9a, Praha 9, 190 00, IČO: 271 35 306 (dále jen „Správce“) jako provozovateli tohoto Serveru uděluje svůj výslovný souhlas v souladu s ustanovením § 5 zákona č. 101/2000 Sb. O ochraně osobních údajů a o změně některých zákonů, v platném znění (dále jen „zákon o ochraně osobních údajů“), se zpracováním uživatelem poskytnutých osobních údajů a dalších dat.
Uživatel poskytuje Správci osobní údaje v rozsahu: jméno, příjmení, e-mailová adresa, telefonický kontakt a další data, a to z důvodu projeveného zájmu o nemovitost, kde prostřednictvím služby Serveru Správce osloví Uživatel inzerenta uvedeného v detailu
nemovitosti - Sophia Rakušanová (IČ 21047103) se zájmem o jeho služby.
Uživatel tyto osobní údaje poskytuje dobrovolně a bere na vědomí, že součástí služeb Správce, které Správce Uživateli poskytuje, je vyhledání všech Uživateli vyhovujících (dle parametrů - cena, typ nemovitosti, lokalita atd.) nemovitostí. Správce za tímto účelem provozuje aplikace Hlídací pes a newsletter. Tyto služby je možné z každého zaslaného emailu odhlásit. Souhlas se zpracováním osobních údajů Uživatel poskytuje Správci na dobu neurčitou s tím, že svůj udělený souhlas může Uživatel kdykoliv na drese správce info@realitymix.cz odvolat. Správce garantuje Uživateli i další práva uvedené v ustanovení §11 a §21 zákoba č. 101/200 Sb. Ve znění pozdějších předpisů.
Více informací o zpracování údajů získáte zde (realitymix.cz/zasady-ochrany-osobnich-udaju)