Prodej domu s pozemkem 1480m², Dolní Ostrovec - Písek
Exkluzivně nabízíme k prodeji chalupu určenou ke 2+1 k rekonstrukci v malebné obci Dolní Ostrovec,
která leží v krásném a klidném prostředí jihočeské přírody nedaleko Písku. Obec je obklopena lesy a
loukami, ideální pro milovníky klidu, turistiky a cyklistiky. Díky zastávce Českých drah v obci je zajištěna
pohodlná dopravní dostupnost i bez vlastního automobilu.
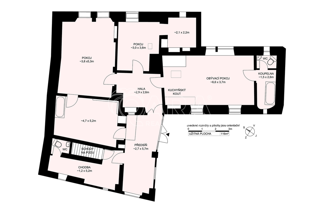
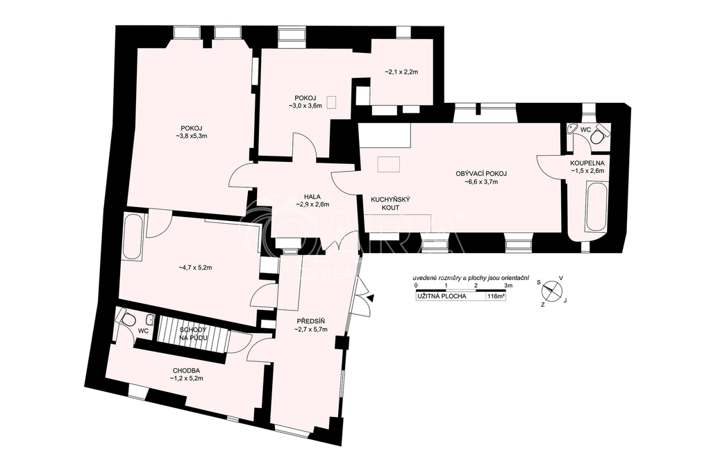
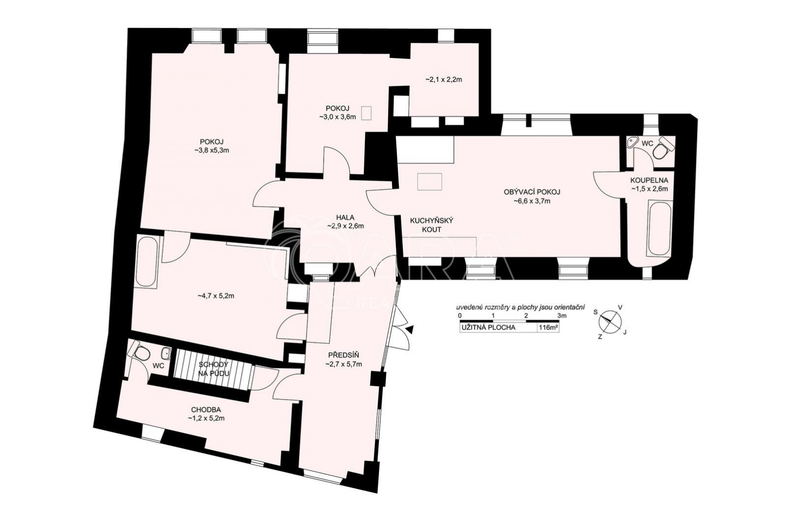
Doporučuji zhlédnutí virtuální prohlídky a plánku, umístěné v galerii.
Chalupa se nachází na pozemku o celkové výměře 1 480 m², z čehož 292 m² tvoří zastavěná plocha a
nádvoří a 1 188 m² přiléhající zahrada s travním porostem, kam se prochází kolem domu. Objekt nabízí tři
obytné místnosti, halu, koupelnu s vanou a WC, samostatné WC a nebytový prostor – bývalou prádelnu.
Dílna se samostatným vchodem.
V domě je zavedena voda z veřejného řádu, užitková voda ve studni, odpady jsou svedeny do jímky.
Vytápění je řešeno lokálně na tuhá paliva v jednotlivých místnostech.
Ohřev vody zajišťuje bojler.
Financování Vám rádi zajistíme.
U dvou snímků byla použita vizualizace pro představu možného stavu po rekonstrukci.
Uvedené výměry jsou orientační. V případě více zájemců bude nemovitost prodána nejlepší nabídce a majitel si vyhrazuje právo vybrat kupujícího na základě jim zvolených kritérií. Veškeré zveřejněné údaje obsažené v tomto inzerátu mají pouze informativní charakter a nejsou nabídkou ve smyslu § 1731 nebo § 1732 občanského zákoníku, ani se nejedná o veřejný příslib dle § 1733 občanského zákoníku
Pro další informace a prohlídku kontaktujte makléřku zakázky Markétu Jenčíkovou.
Pomocí naší hypoteční kalkulačky si můžete udělat orientační představu o výši měsíčních splátek hypotéky. O vše ostatní se pak postaráme my ve spolupráci s našimi obchodními partnery.
7 247 Kč
* Odhadovaná měsíční splátka vychází z výše úvěru Kč s pevnou úrokovou sazbou % po celou dobu trvání úvěru.
Uživatel serveru RealityMIX.cz (dále jen „Server“) dostupného na internetové adrese (URL) https://www.realitymix.cz, který provozuje společnost DALTEN media s.r.o., se sídlem Na Harfě 916/9a, Praha 9, 190 00, IČO: 271 35 306 (dále jen „Správce“) jako provozovateli tohoto Serveru uděluje svůj výslovný souhlas v souladu s ustanovením § 5 zákona č. 101/2000 Sb. O ochraně osobních údajů a o změně některých zákonů, v platném znění (dále jen „zákon o ochraně osobních údajů“), se zpracováním uživatelem poskytnutých osobních údajů a dalších dat.
Uživatel poskytuje Správci osobní údaje v rozsahu: jméno, příjmení, e-mailová adresa, telefonický kontakt a další data, a to z důvodu projeveného zájmu o nemovitost, kde prostřednictvím služby Serveru Správce osloví Uživatel inzerenta uvedeného v detailu
nemovitosti - QARA s.r.o. (IČ 01740113) se zájmem o jeho služby. Tato společnost je součástí seskupení/sítě/franšízového modelu realitních kanceláří, jejich seznam můžete zobrazit kliknutím na tento odkaz.
QARA s.r.o. Ostrava (IČ 01740113) , QARA s.r.o. Brno (IČ 01740113) , QARA s.r.o. (IČ 01740113)
Uživatel tyto osobní údaje poskytuje dobrovolně a bere na vědomí, že součástí služeb Správce, které Správce Uživateli poskytuje, je vyhledání všech Uživateli vyhovujících (dle parametrů - cena, typ nemovitosti, lokalita atd.) nemovitostí. Správce za tímto účelem provozuje aplikace Hlídací pes a newsletter. Tyto služby je možné z každého zaslaného emailu odhlásit. Souhlas se zpracováním osobních údajů Uživatel poskytuje Správci na dobu neurčitou s tím, že svůj udělený souhlas může Uživatel kdykoliv na drese správce info@realitymix.cz odvolat. Správce garantuje Uživateli i další práva uvedené v ustanovení §11 a §21 zákoba č. 101/200 Sb. Ve znění pozdějších předpisů.
Více informací o zpracování údajů získáte zde (realitymix.cz/zasady-ochrany-osobnich-udaju)