Nabízíme k prodeji novostavbu řadového rodinného domu o dispozici 4+kk v obci Ovčáry, která je aktuálně ve výstavbě s plánovaným dokončením 03/2027. Jedná se o moderní bydlení, kde bude vše zcela nové, navržené s důrazem na funkčnost, kvalitu a současný design, zasazené do klidné a příjemné lokality.
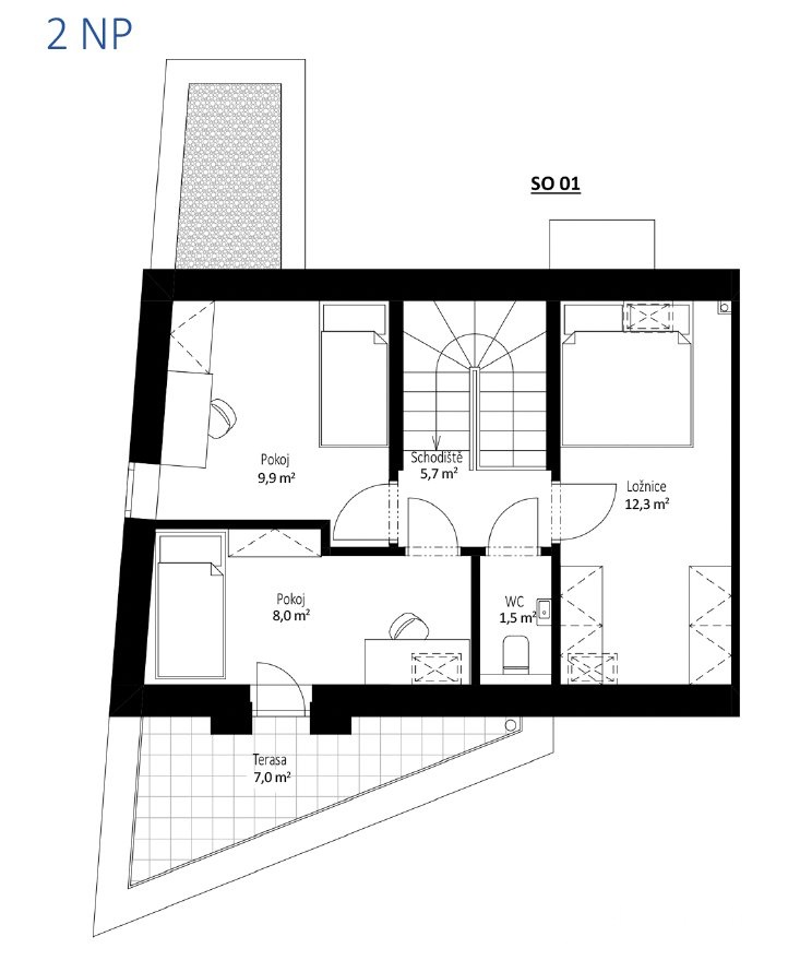
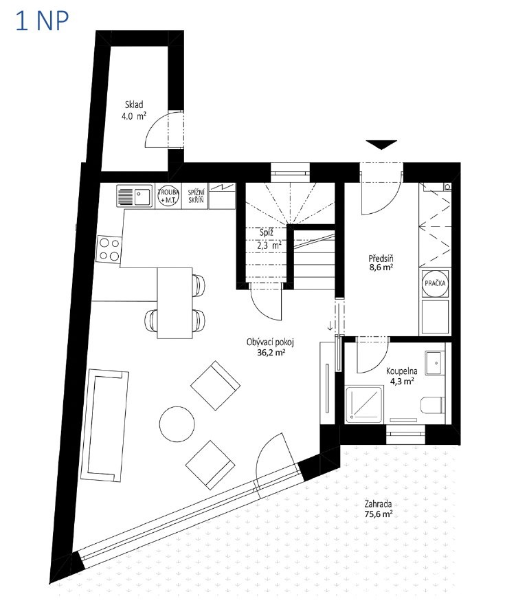
Dům je součástí tří samostatných řadových rodinných domů, přičemž každý z nich stojí na vlastním pozemku a má vlastní přípojky elektřiny, vodovodu i kanalizace. Nabízen je pouze jeden z těchto domů, což z něj činí zajímavou a omezenou příležitost. Dispozice 4+kk nabízí ideální rozložení prostoru pro rodinné bydlení, kdy v přízemí dominuje prostorný obývací pokoj s kuchyňským koutem o velikosti 36,2 m² s přímým vstupem na zahradu, dále zde najdete předsíň, koupelnu, praktickou spíž a samostatný sklad. V patře se nachází ložnice, dva další pokoje, samostatné WC a vstup na terasu.
Celková užitná plocha domu činí 92,8 m², podlahová plocha 99,2 m², k domu náleží zahrada o velikosti 75,6 m² a terasa 7,0 m². Celková plocha pozemku je 192 m². Samozřejmostí jsou dvě parkovací stání přímo u domu.
Dům bude dokončen ve vysokém standardu, který zahrnuje například cihlové pásky Klinker na fasádě, falcovanou střešní krytinu v antracitové barvě, moderní silikonovou omítku a okna s izolačním trojsklem. Interiér nabídne kvalitní vinylové podlahy značky Karndean, interiérové dveře Sapeli, plastová okna Vekra a moderně řešenou koupelnu s velkoformátovými obklady, sprchovým koutem, závěsným WC a kvalitní sanitou. Vytápění zajištěno tepelným čerpadlem a podlahovým topením.
Obec Ovčáry jsou ideálním místem pro ty, kteří chtějí bydlet v klidu menší obce, a přitom mít město na dosah. Najdete zde školu, školku, dětské i fotbalové hřiště, knihovnu a kulturní zázemí. Milovníci přírody ocení blízké jezero Mlejnek, turistické stezky i cyklotrasy vedoucí malebnou krajinou. Díky výbornému autobusovému spojení jste během chvilky v Kolíně a díky napojení na dálnici i rychle v Praze. Tento dům je skvělou volbou pro rodinu, která hledá moderní, úsporné bydlení s atmosférou domova a klidem venkova.
V případě zájmu nebo bližší informace se neváhejte ozvat.
Pomocí naší hypoteční kalkulačky si můžete udělat orientační představu o výši měsíčních splátek hypotéky. O vše ostatní se pak postaráme my ve spolupráci s našimi obchodními partnery.
37 613 Kč
* Odhadovaná měsíční splátka vychází z výše úvěru Kč s pevnou úrokovou sazbou % po celou dobu trvání úvěru.
Uživatel serveru RealityMIX.cz (dále jen „Server“) dostupného na internetové adrese (URL) https://www.realitymix.cz, který provozuje společnost DALTEN media s.r.o., se sídlem Na Harfě 916/9a, Praha 9, 190 00, IČO: 271 35 306 (dále jen „Správce“) jako provozovateli tohoto Serveru uděluje svůj výslovný souhlas v souladu s ustanovením § 5 zákona č. 101/2000 Sb. O ochraně osobních údajů a o změně některých zákonů, v platném znění (dále jen „zákon o ochraně osobních údajů“), se zpracováním uživatelem poskytnutých osobních údajů a dalších dat.
Uživatel poskytuje Správci osobní údaje v rozsahu: jméno, příjmení, e-mailová adresa, telefonický kontakt a další data, a to z důvodu projeveného zájmu o nemovitost, kde prostřednictvím služby Serveru Správce osloví Uživatel inzerenta uvedeného v detailu
nemovitosti - Aktivreality (IČ 04581679) se zájmem o jeho služby.
Uživatel tyto osobní údaje poskytuje dobrovolně a bere na vědomí, že součástí služeb Správce, které Správce Uživateli poskytuje, je vyhledání všech Uživateli vyhovujících (dle parametrů - cena, typ nemovitosti, lokalita atd.) nemovitostí. Správce za tímto účelem provozuje aplikace Hlídací pes a newsletter. Tyto služby je možné z každého zaslaného emailu odhlásit. Souhlas se zpracováním osobních údajů Uživatel poskytuje Správci na dobu neurčitou s tím, že svůj udělený souhlas může Uživatel kdykoliv na drese správce info@realitymix.cz odvolat. Správce garantuje Uživateli i další práva uvedené v ustanovení §11 a §21 zákoba č. 101/200 Sb. Ve znění pozdějších předpisů.
Více informací o zpracování údajů získáte zde (realitymix.cz/zasady-ochrany-osobnich-udaju)