Tento útulný byt je určený pro klienty, kteří hledají dlouhodobý pronájem na klidném místě v Pardubicích, ulice Na Hrádku a ocení blízkost Tyršových sadů s veškerou občanskou vybaveností v docházkové vzdálenosti. Byt se nachází v cihlovém domě.
Základní informace o bytě:
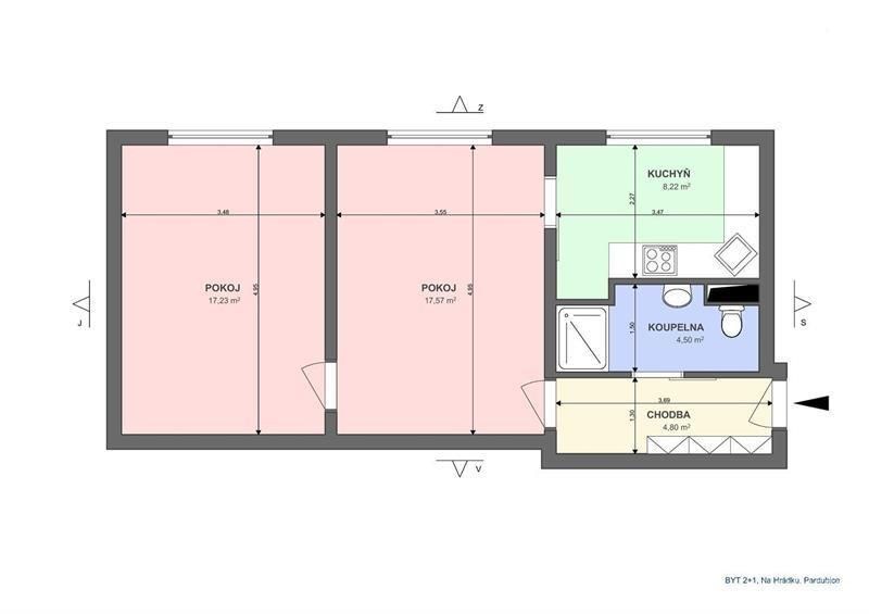
> 2+1 (55 m²)
> 2. nadzemní podlaží
> nevybavený byt
> balkon v mezipatře
> výtah
> orientace na západ do vnitrobloku
Vybavení:
> kuchyňská linka s vestavnými spotřebiči (pečící trouba, mikrovlnná trouba, plynová varná deska, myčka, digestoř), lednice, jídelní stůl se židlemi, vestavěná skříň
> sprchový kout, umyvadlová skříňka s umyvadlem a zrcadlem
Technické parametry:
> vytápění a ohřev vody zajištěno dálkově (Opatovice n.L.)
> na podlaze jsou položeny parkety a dlažba
Koho hledáme?
> hledáme nájemníka, který bude k bytu přistupovat jako ke svému vlastnímu a bude poctivě o tento byt pečovat
> preferujeme zájemce nekuřáky a bez zvířat
> možnost nastěhování 2. 5. 2026
Lokalita:
> vynikající občanská vybavenost v místě (MŠ, obchody, restaurace, pošta, lékař…) a dopravní obslužnost (auto, bus, vlak)
> Tyršovy sady – 2 min chůzí
> Palác Pardubice – 5 minut chůze
> prodejna potravin – 4 min chůzí
> zastávka autobusu – 3 minuty chůze
> Restaurace Nejen Dvorek – 3 min chůzí
Finanční podmínky:
> měsíční nájemné: 14.600 Kč
> celkové zálohy za služby: dle počtu osob (topení, voda, plyn, elektřina)
> nájemce si na sebe nepřepisuje energie
> vratná jistota: 30.000 Kč
> provize zprostředkovatele: 18.000 Kč
Cena:
14 600 Kč / (za měsíc)
Poznámka:
+ záloha na energie (topení, voda, plyn, elektřina)
Datum k nastěhování:
02.05.2026
Dispozice/podlahová plocha:
2+1/55 m²
Číslo zakázky:
REALITYMIX-975108
Podrobné informace
Dispozice bytu:2+1
Číslo podlaží v domě:2
Počet podlaží objektu:5
Celková podlahová plocha:55 m²
Druh objektu:cihlová
Stav objektu:velmi dobrý
Vlastnictví:osobní
Balkon:ano
Doprava:vlak, dálnice, silnice, MHD
Elektřina:Elektro - 230 V
Voda:Zdroj pro celý objekt, Voda - dálkový vodovod
Uživatel serveru RealityMIX.cz (dále jen „Server“) dostupného na internetové adrese (URL) https://www.realitymix.cz, který provozuje společnost DALTEN media s.r.o., se sídlem Na Harfě 916/9a, Praha 9, 190 00, IČO: 271 35 306 (dále jen „Správce“) jako provozovateli tohoto Serveru uděluje svůj výslovný souhlas v souladu s ustanovením § 5 zákona č. 101/2000 Sb. O ochraně osobních údajů a o změně některých zákonů, v platném znění (dále jen „zákon o ochraně osobních údajů“), se zpracováním uživatelem poskytnutých osobních údajů a dalších dat.
Uživatel poskytuje Správci osobní údaje v rozsahu: jméno, příjmení, e-mailová adresa, telefonický kontakt a další data, a to z důvodu projeveného zájmu o nemovitost, kde prostřednictvím služby Serveru Správce osloví Uživatel inzerenta uvedeného v detailu
nemovitosti - reality VAŠATOVÁ s.r.o. (IČ 27535690) se zájmem o jeho služby.
Uživatel tyto osobní údaje poskytuje dobrovolně a bere na vědomí, že součástí služeb Správce, které Správce Uživateli poskytuje, je vyhledání všech Uživateli vyhovujících (dle parametrů - cena, typ nemovitosti, lokalita atd.) nemovitostí. Správce za tímto účelem provozuje aplikace Hlídací pes a newsletter. Tyto služby je možné z každého zaslaného emailu odhlásit. Souhlas se zpracováním osobních údajů Uživatel poskytuje Správci na dobu neurčitou s tím, že svůj udělený souhlas může Uživatel kdykoliv na drese správce info@realitymix.cz odvolat. Správce garantuje Uživateli i další práva uvedené v ustanovení §11 a §21 zákoba č. 101/200 Sb. Ve znění pozdějších předpisů.
Více informací o zpracování údajů získáte zde (realitymix.cz/zasady-ochrany-osobnich-udaju)