Pozemek s projektem na vila dům s třemi BJ Pardubičky
Nabízíme k prodeji stavební pozemek v městské části Pardubičky, který se nachází v klidné oblasti s vynikající občanskou vybaveností. Nejbližší zastávky MHD „Nemocnice“ a „K nemocnici“ obsluhují linky 2, 12, 22, 27 a 28, což zajišťuje výborné spojení do centra i dalších částí města. V okolí jsou také menší obchody, školy, zdravotnická zařízení a další služby.
Jedná se o stavební pozemek p. p. č. 95/8, součástí je p.p.č.703 a p.p.č.701 o celkové výměře 1037 m², zahrnující i podíl 1/2 na komunikaci p. p. č. 95/15 (198 m²) s vyhrazeným parkovacím stáním. Vše se nachází v katastrálním území Pardubičky.
Pozemek má kompletní inženýrské sítě – kanalizační a vodovodní přípojka zakončená šachtou na pozemku, elektropřípojka s elektroměrem a zaplaceným podílem u ČEZ. Je zde vydané územní rozhodnutí na variabilní rodinné vila domy s plochou střechou o maximální zastavěné ploše 230 m². Územní rozhodnutí je trvale platné, protože dva domy již byly realizovány.
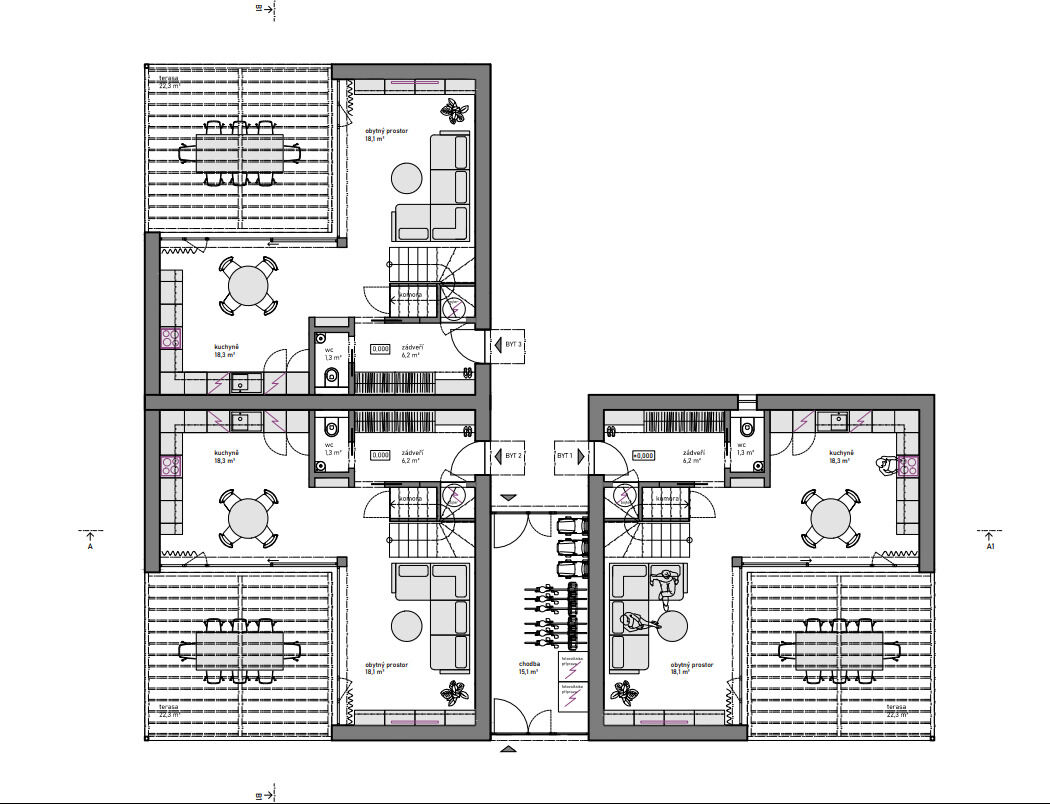
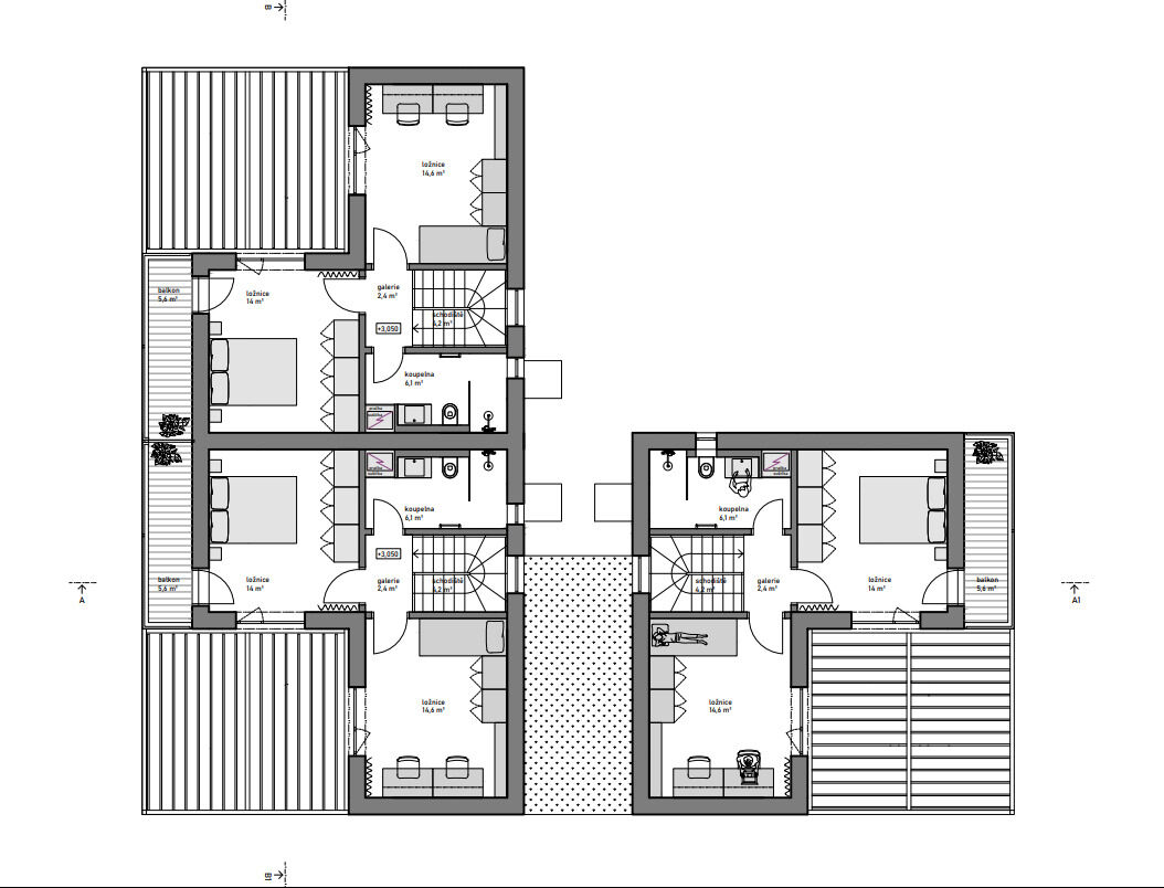
Je připravená studie na vila dům s třemi bytovými jednotkami o výměře 83,3m2. Dům je složen ze tří totožných částí do tvaru křížku, který pozemek člení do čtyř zón-vznikají tak tři soukromé zóny zahrady a společný předprostor domu pro parkování. Každá ze tří částí domu bude samostatnou jednotkou nabízející domov v těsném sepětí se zahradou. V přízemí je vždy obytný prostor s kuchyní a jídelnou otevřený velkými okny na terasu a do přilehlé soukromé zóny zahrady. V patře je pak klidná část s ložnicemi a koupelnou. Výhledy z ložnic jsou vždy do vlastní zahrady. V jižní části pozemku je malé dětské hřiště sloužící společně všem obyvatelům domu.Hřiště je přístupné společnou chodbou, vloženou do středu křížku, s možností uskladnění kol a kočárků.
Díky své poloze, dostupnosti a právně vyřešeným podmínkám pro výstavbu se jedná o atraktivní nabídku pro výstavbu bydlení i investiční příležitost.
Cena:
10 370 000 Kč
Poznámka:
500000Kč je podíl poloviny pozemku komunikace včetně krytu a parkovacího stání
Pomocí naší hypoteční kalkulačky si můžete udělat orientační představu o výši měsíčních splátek hypotéky. O vše ostatní se pak postaráme my ve spolupráci s našimi obchodními partnery.
41 985 Kč
* Odhadovaná měsíční splátka vychází z výše úvěru Kč s pevnou úrokovou sazbou % po celou dobu trvání úvěru.
Uživatel serveru RealityMIX.cz (dále jen „Server“) dostupného na internetové adrese (URL) https://www.realitymix.cz, který provozuje společnost DALTEN media s.r.o., se sídlem Na Harfě 916/9a, Praha 9, 190 00, IČO: 271 35 306 (dále jen „Správce“) jako provozovateli tohoto Serveru uděluje svůj výslovný souhlas v souladu s ustanovením § 5 zákona č. 101/2000 Sb. O ochraně osobních údajů a o změně některých zákonů, v platném znění (dále jen „zákon o ochraně osobních údajů“), se zpracováním uživatelem poskytnutých osobních údajů a dalších dat.
Uživatel poskytuje Správci osobní údaje v rozsahu: jméno, příjmení, e-mailová adresa, telefonický kontakt a další data, a to z důvodu projeveného zájmu o nemovitost, kde prostřednictvím služby Serveru Správce osloví Uživatel inzerenta uvedeného v detailu
nemovitosti - Dehas Investment s.r.o. (IČ 09620389) se zájmem o jeho služby. Tato společnost je součástí seskupení/sítě/franšízového modelu realitních kanceláří, jejich seznam můžete zobrazit kliknutím na tento odkaz.
DEHAS s.r.o. (IČ 26005182) , Dehas Investment s.r.o. (IČ 09620389)
Uživatel tyto osobní údaje poskytuje dobrovolně a bere na vědomí, že součástí služeb Správce, které Správce Uživateli poskytuje, je vyhledání všech Uživateli vyhovujících (dle parametrů - cena, typ nemovitosti, lokalita atd.) nemovitostí. Správce za tímto účelem provozuje aplikace Hlídací pes a newsletter. Tyto služby je možné z každého zaslaného emailu odhlásit. Souhlas se zpracováním osobních údajů Uživatel poskytuje Správci na dobu neurčitou s tím, že svůj udělený souhlas může Uživatel kdykoliv na drese správce info@realitymix.cz odvolat. Správce garantuje Uživateli i další práva uvedené v ustanovení §11 a §21 zákoba č. 101/200 Sb. Ve znění pozdějších předpisů.
Více informací o zpracování údajů získáte zde (realitymix.cz/zasady-ochrany-osobnich-udaju)