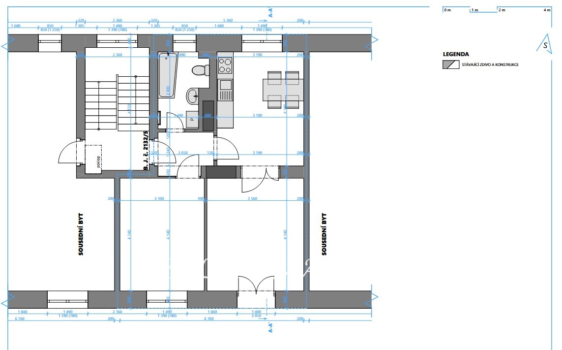
Nabízíme k prodeji byt o dispozici 2+1 s balkónem a půdním prostorem.
Byt se nachází ve 3. nadzemním podlaží zděného bytového domu, v žádané části Pardubic – Dukla, ulice Wolkerova.
Byt má podlahovou plochu 55 m². K bytu náleží půdní prostor o ploše 54 m², přímo nad bytem – možnost vybudování mezonetového bytu.
Na rozšíření bytové jednotky je již vyhotovena studie- viz foto.
Dispozice bytu:
vstupní chodba
koupelna s WC
kuchyň
2x neprůchozí pokoj
balkon
K bytu náleží 2 sklepy, celková plocha všech částí činí 109 m².
Byt prošel kompletní rekonstrukcí, zrovna tak i bytový dům je po revitalizaci ( střecha, zateplení, stoupačky, vchody, atd...).
Nízké měsíční náklady na bydlení. Hospodaření bytového domu je kladné.
V docházkové vzdálenosti se nachází veškerá občanská vybavenost.
Bezproblémové parkování u domu.
V případě zájmu Vám rádi pomůžeme s financováním.
Neváhejte nás kontaktovat pro více informací či prohlídku.
Pomocí naší hypoteční kalkulačky si můžete udělat orientační představu o výši měsíčních splátek hypotéky. O vše ostatní se pak postaráme my ve spolupráci s našimi obchodními partnery.
23 037 Kč
* Odhadovaná měsíční splátka vychází z výše úvěru Kč s pevnou úrokovou sazbou % po celou dobu trvání úvěru.
Prodáváte nemovitost a potřebujete zjistit její reálnou hodnotu?
Uživatel serveru RealityMIX.cz (dále jen „Server“) dostupného na internetové adrese (URL) https://www.realitymix.cz, který provozuje společnost DALTEN media s.r.o., se sídlem Na Harfě 916/9a, Praha 9, 190 00, IČO: 271 35 306 (dále jen „Správce“) jako provozovateli tohoto Serveru uděluje svůj výslovný souhlas v souladu s ustanovením § 5 zákona č. 101/2000 Sb. O ochraně osobních údajů a o změně některých zákonů, v platném znění (dále jen „zákon o ochraně osobních údajů“), se zpracováním uživatelem poskytnutých osobních údajů a dalších dat.
Uživatel poskytuje Správci osobní údaje v rozsahu: jméno, příjmení, e-mailová adresa, telefonický kontakt a další data, a to z důvodu projeveného zájmu o nemovitost, kde prostřednictvím služby Serveru Správce osloví Uživatel inzerenta uvedeného v detailu
nemovitosti - Reality Málková (IČ 74115171) se zájmem o jeho služby.
Uživatel tyto osobní údaje poskytuje dobrovolně a bere na vědomí, že součástí služeb Správce, které Správce Uživateli poskytuje, je vyhledání všech Uživateli vyhovujících (dle parametrů - cena, typ nemovitosti, lokalita atd.) nemovitostí. Správce za tímto účelem provozuje aplikace Hlídací pes a newsletter. Tyto služby je možné z každého zaslaného emailu odhlásit. Souhlas se zpracováním osobních údajů Uživatel poskytuje Správci na dobu neurčitou s tím, že svůj udělený souhlas může Uživatel kdykoliv na drese správce info@realitymix.cz odvolat. Správce garantuje Uživateli i další práva uvedené v ustanovení §11 a §21 zákoba č. 101/200 Sb. Ve znění pozdějších předpisů.
Více informací o zpracování údajů získáte zde (realitymix.cz/zasady-ochrany-osobnich-udaju)