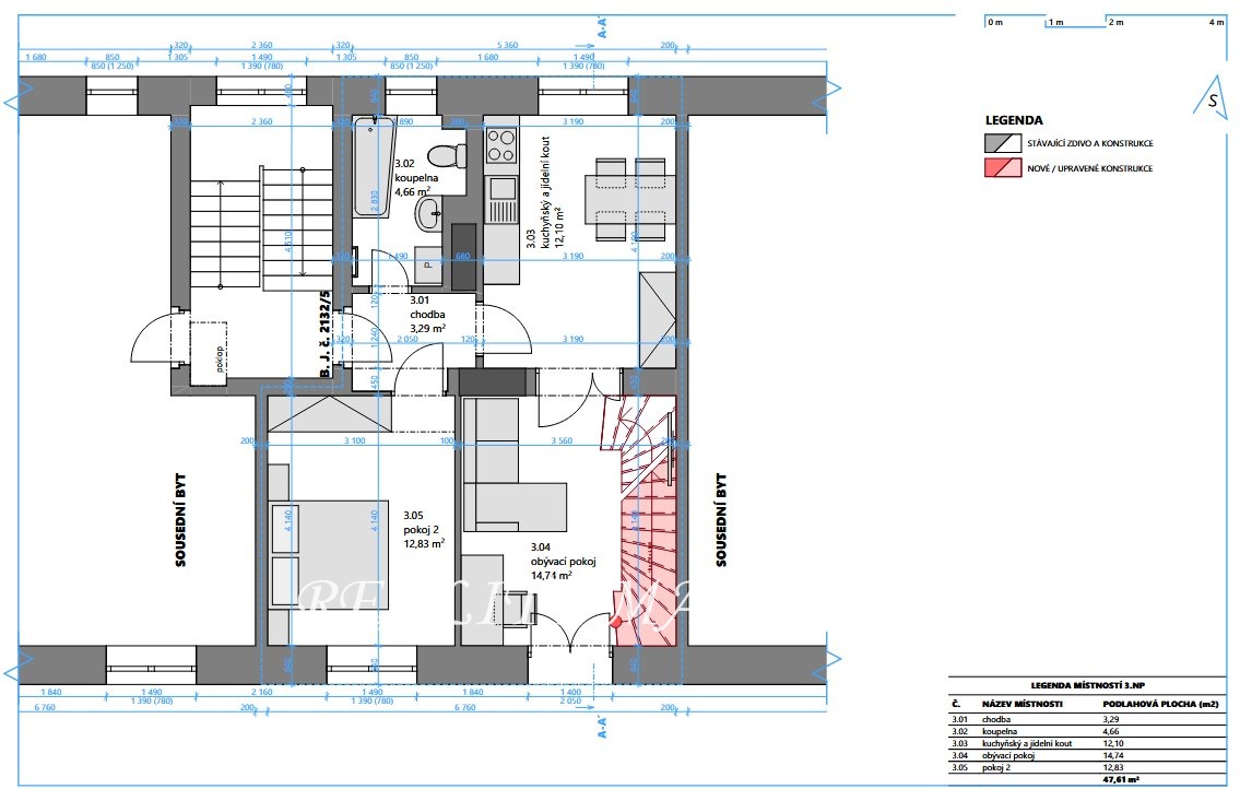
Nabízíme k prodeji zrekonstruovaný byt o dispozici 2+1 s balkónem a půdním prostorem.
Byt se nachází ve 3. nadzemním podlaží zděného bytového domu, v žádané části Pardubic – Dukla, ulice Wolkerova.
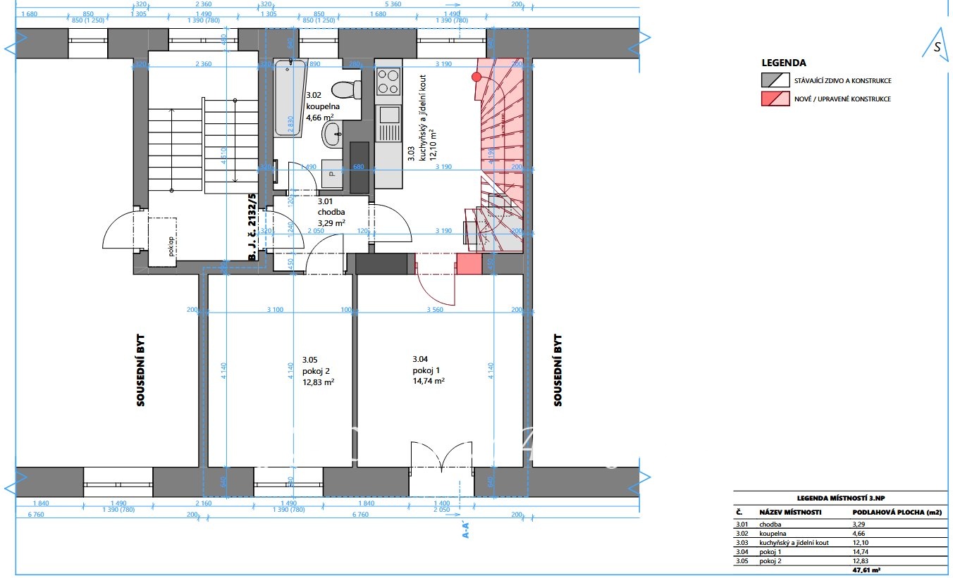
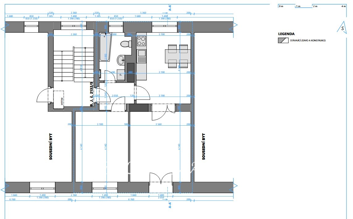
Byt má podlahovou plochu 55 m².
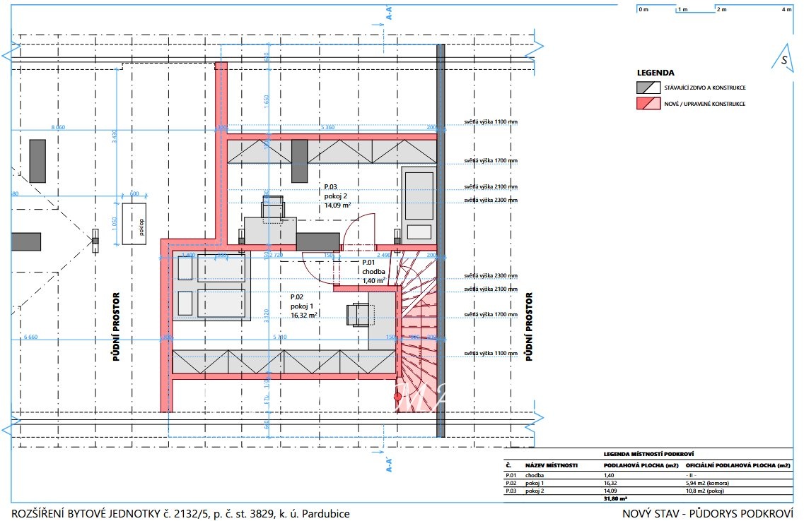
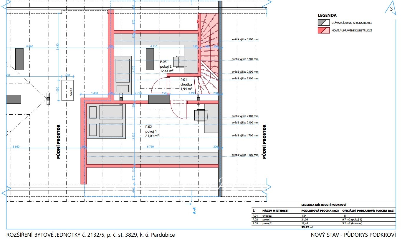
K bytu náleží dále půdní prostor o ploše 54 m², přímo nad bytem – možnost vybudování mezonetového bytu.
Dispozice bytu:
vstupní chodba
koupelna s WC
kuchyň
2x neprůchozí pokoj
balkon
K bytu také náleží 2 sklepy, celková plocha všech částí činí 109 m².
V případě zájmu o rozšíření bytové jednotky je možné v tuto chvíli předat zpracovanou studii včetně další potřebné dokumentace.
Byt prošel kompletní rekonstrukcí, zrovna tak i bytový dům je po revitalizaci ( střecha, zateplení, stoupačky, vchody, atd...).
Nízké měsíční náklady na bydlení. Hospodaření bytového domu je kladné.
V docházkové vzdálenosti se nachází veškerá občanská vybavenost.
Bezproblémové parkování u domu.
V případě zájmu Vám rádi pomůžeme s financováním.
Neváhejte nás kontaktovat pro více informací či prohlídku.
Cena:
Cena na vyžádání
Poznámka:
volejte makléři
Dispozice/podlahová plocha:
2+1/109 m²
Číslo zakázky:
REALITYMIX-00656
Podrobné informace
Dispozice bytu:2+1
Číslo podlaží v domě:3
Počet podlaží objektu:1
Celková podlahová plocha:109 m²
Druh objektu:cihlová
Stav objektu:po rekonstrukci
Vlastnictví:osobní
Balkon:1 m²
Sklep:5 m²
Umístění objektu:klidná část obce
Doprava:vlak, dálnice, silnice, MHD, autobus
Elektřina:Elektro - 230 V
Voda:Voda - dálkový vodovod
Telekomunikace:Internet
Plyn:Plynovod
Topení:Ústřední - dálkové
Odpad:Kanalizace
Energetická náročnost budovy:D - Méně úsporná
Ukazatel energetické náročnosti budovy:171 kWh/m²
Energetický ukazatel podle vyhlášky:č. 78/2013 Sb.
Uživatel serveru RealityMIX.cz (dále jen „Server“) dostupného na internetové adrese (URL) https://www.realitymix.cz, který provozuje společnost DALTEN media s.r.o., se sídlem Na Harfě 916/9a, Praha 9, 190 00, IČO: 271 35 306 (dále jen „Správce“) jako provozovateli tohoto Serveru uděluje svůj výslovný souhlas v souladu s ustanovením § 5 zákona č. 101/2000 Sb. O ochraně osobních údajů a o změně některých zákonů, v platném znění (dále jen „zákon o ochraně osobních údajů“), se zpracováním uživatelem poskytnutých osobních údajů a dalších dat.
Uživatel poskytuje Správci osobní údaje v rozsahu: jméno, příjmení, e-mailová adresa, telefonický kontakt a další data, a to z důvodu projeveného zájmu o nemovitost, kde prostřednictvím služby Serveru Správce osloví Uživatel inzerenta uvedeného v detailu
nemovitosti - Reality Málková (IČ 74115171) se zájmem o jeho služby.
Uživatel tyto osobní údaje poskytuje dobrovolně a bere na vědomí, že součástí služeb Správce, které Správce Uživateli poskytuje, je vyhledání všech Uživateli vyhovujících (dle parametrů - cena, typ nemovitosti, lokalita atd.) nemovitostí. Správce za tímto účelem provozuje aplikace Hlídací pes a newsletter. Tyto služby je možné z každého zaslaného emailu odhlásit. Souhlas se zpracováním osobních údajů Uživatel poskytuje Správci na dobu neurčitou s tím, že svůj udělený souhlas může Uživatel kdykoliv na drese správce info@realitymix.cz odvolat. Správce garantuje Uživateli i další práva uvedené v ustanovení §11 a §21 zákoba č. 101/200 Sb. Ve znění pozdějších předpisů.
Více informací o zpracování údajů získáte zde (realitymix.cz/zasady-ochrany-osobnich-udaju)