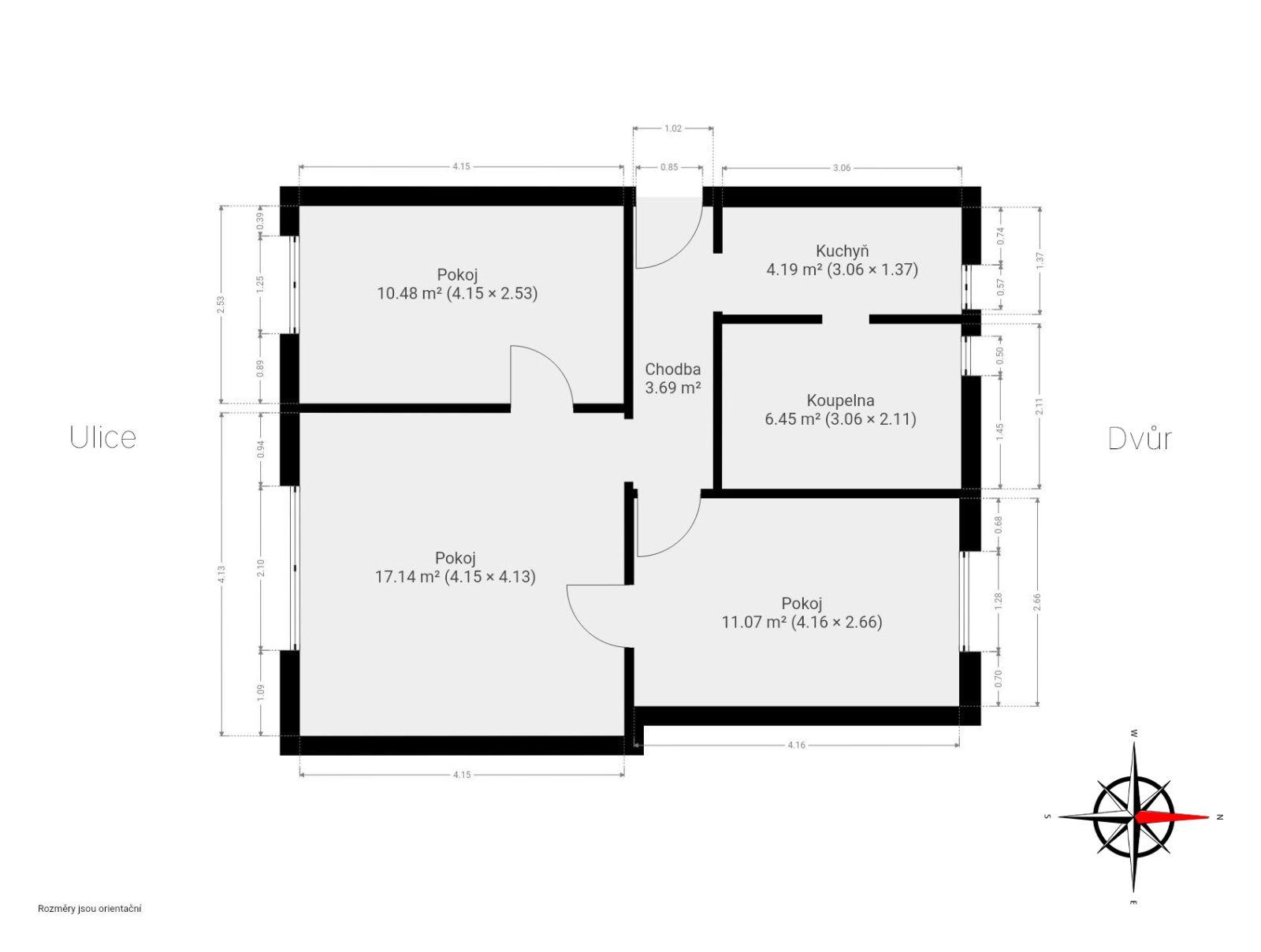
Nabízím vám k prodeji bytovou jednotku o dispozici 3+kk (původně 2+1) se dvěma sklepy o celkové ploše 62,93 m² (51,74 m² podlahová), která se nachází ve zvýšeném přízemí původního cihlového domu, v ulici K Blahobytu 2438.
Byt nyní disponuje třemi pokoji. Největším z nich je obývací pokoj o velikosti 17 m². A společně s druhým menším pokojem o velikosti zhruba 10 m² jsou orientované do jednosměrné ulice na jižní světovou stranu. V těchto pokojích jsou původní parkety. V celém bytě jsou plastová okna s dvojskly. Na protější straně bytu naleznete ložnici s orientaci do severního vnitrobloku, zde je podlaha betonová.
Ložnice vznikla přesunem kuchyňské linky do původní předsíně. Prostorná koupelna s toaletou velikostně pojmula jak sprchový kout, tak vanu. Z chodby se dostanete jak do ložnice, tak do obývacího pokoje. Přímo pod bytem se nachází prostorný sklep s vlastní elektřinou dotaženou z bytové jednotky.
Vytápění bytu je dálkové (Opatovice) a ohřev vody je zde plynovou karmou.
Dvůr ve vnitrobloku je volně k užívání, např. k věšení prádla. Bytová jednotka je v původním stavu. Ač byla několik let pronajímána, vyžaduje kompletní rekonstrukci od podlah až po strop.
Samotnou lokalitu není třeba představovat, nachází se v samém centru Pardubic.
K této nemovitosti byla zpracována webová stránka, kde naleznete kompletní informace. Odkaz je uveden na konci videa. Inzertní portály neumožňují vložení odkazu :-).
Uvidíme se na prohlídce.
Pomocí naší hypoteční kalkulačky si můžete udělat orientační představu o výši měsíčních splátek hypotéky. O vše ostatní se pak postaráme my ve spolupráci s našimi obchodními partnery.
17 774 Kč
* Odhadovaná měsíční splátka vychází z výše úvěru Kč s pevnou úrokovou sazbou % po celou dobu trvání úvěru.
Prodáváte nemovitost a potřebujete zjistit její reálnou hodnotu?
Uživatel serveru RealityMIX.cz (dále jen „Server“) dostupného na internetové adrese (URL) https://www.realitymix.cz, který provozuje společnost DALTEN media s.r.o., se sídlem Na Harfě 916/9a, Praha 9, 190 00, IČO: 271 35 306 (dále jen „Správce“) jako provozovateli tohoto Serveru uděluje svůj výslovný souhlas v souladu s ustanovením § 5 zákona č. 101/2000 Sb. O ochraně osobních údajů a o změně některých zákonů, v platném znění (dále jen „zákon o ochraně osobních údajů“), se zpracováním uživatelem poskytnutých osobních údajů a dalších dat.
Uživatel poskytuje Správci osobní údaje v rozsahu: jméno, příjmení, e-mailová adresa, telefonický kontakt a další data, a to z důvodu projeveného zájmu o nemovitost, kde prostřednictvím služby Serveru Správce osloví Uživatel inzerenta uvedeného v detailu
nemovitosti - ID reality spol. s.r.o. (IČ 27506606) se zájmem o jeho služby.
Uživatel tyto osobní údaje poskytuje dobrovolně a bere na vědomí, že součástí služeb Správce, které Správce Uživateli poskytuje, je vyhledání všech Uživateli vyhovujících (dle parametrů - cena, typ nemovitosti, lokalita atd.) nemovitostí. Správce za tímto účelem provozuje aplikace Hlídací pes a newsletter. Tyto služby je možné z každého zaslaného emailu odhlásit. Souhlas se zpracováním osobních údajů Uživatel poskytuje Správci na dobu neurčitou s tím, že svůj udělený souhlas může Uživatel kdykoliv na drese správce info@realitymix.cz odvolat. Správce garantuje Uživateli i další práva uvedené v ustanovení §11 a §21 zákoba č. 101/200 Sb. Ve znění pozdějších předpisů.
Více informací o zpracování údajů získáte zde (realitymix.cz/zasady-ochrany-osobnich-udaju)