Prodej rodinného domu 142 m², pozemek 424 m² Pardubice - Drozdice
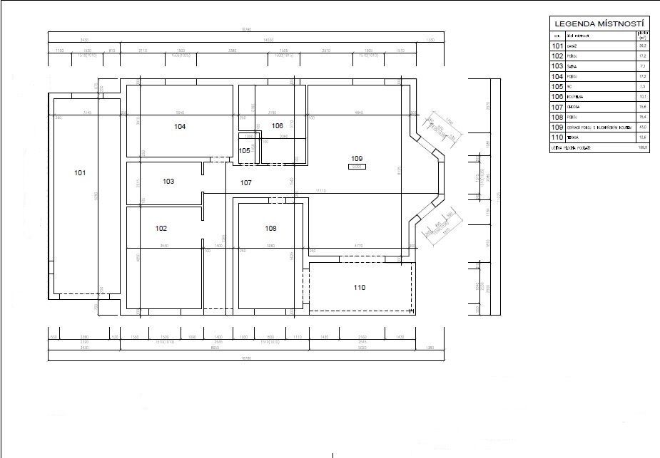
K prodeji nabízíme prostorný rodinný dům ve fázi výstavby, situovaný v klidné části obce Drozdice. Jednopodlažní dům postavený z ytongu je navržen v dispozici 4+kk a poskytuje pohodlné bydlení pro celou rodinu. Vstupní zádveří (4,46 m²) navazuje na technickou místnost (1,2 m²) a prostornou chodbu (10,29 m²). Dále zde najdete pokoj (16,95 m²), praktickou šatnu (7,02 m²), pracovnu (17,12 m²) i komfortní ložnici (16,6 m²). Srdcem domu je prostorný obývací pokoj (30,48 m²) propojený s kuchyní (8,3 m²) a spíží (2,2 m²). K dispozici je rovněž koupelna (8,9 m²) a samostatné WC (1,26 m²).
Pozemek má celkovou rozlohu 424 m², zastavěná plocha činí 155 m². Přípojky elektřiny, plynu a vody se nacházejí na hranici pozemku. Lokalita nabízí skvělou dostupnost – do Chrudimi dojedete za 8 minut, do Pardubic za 10 minut. V blízkosti domu je zastávka MHD č. 12 s přímým spojením do Pardubic. Dům je ve stádiu rozestavěnosti, průkaz energetické náročnosti budovy bude doložen v rámci stavebního povolení.
Drozdice jsou situovány nad pravým břehem řeky Chrudimky, v sousedství chráněných přírodních oblastí Drozdická a Nemošická stráň, které lákají svým bohatstvím fauny a flóry. Ideální místo pro pohodové rodinné bydlení v blízkosti přírody a zároveň s výbornou dostupností do města.
Pomocí naší hypoteční kalkulačky si můžete udělat orientační představu o výši měsíčních splátek hypotéky. O vše ostatní se pak postaráme my ve spolupráci s našimi obchodními partnery.
7 409 Kč
* Odhadovaná měsíční splátka vychází z výše úvěru Kč s pevnou úrokovou sazbou % po celou dobu trvání úvěru.
Uživatel serveru RealityMIX.cz (dále jen „Server“) dostupného na internetové adrese (URL) https://www.realitymix.cz, který provozuje společnost DALTEN media s.r.o., se sídlem Na Harfě 916/9a, Praha 9, 190 00, IČO: 271 35 306 (dále jen „Správce“) jako provozovateli tohoto Serveru uděluje svůj výslovný souhlas v souladu s ustanovením § 5 zákona č. 101/2000 Sb. O ochraně osobních údajů a o změně některých zákonů, v platném znění (dále jen „zákon o ochraně osobních údajů“), se zpracováním uživatelem poskytnutých osobních údajů a dalších dat.
Uživatel poskytuje Správci osobní údaje v rozsahu: jméno, příjmení, e-mailová adresa, telefonický kontakt a další data, a to z důvodu projeveného zájmu o nemovitost, kde prostřednictvím služby Serveru Správce osloví Uživatel inzerenta uvedeného v detailu
nemovitosti - ADRAS REALITY s.r.o. (IČ 28561325) se zájmem o jeho služby.
Uživatel tyto osobní údaje poskytuje dobrovolně a bere na vědomí, že součástí služeb Správce, které Správce Uživateli poskytuje, je vyhledání všech Uživateli vyhovujících (dle parametrů - cena, typ nemovitosti, lokalita atd.) nemovitostí. Správce za tímto účelem provozuje aplikace Hlídací pes a newsletter. Tyto služby je možné z každého zaslaného emailu odhlásit. Souhlas se zpracováním osobních údajů Uživatel poskytuje Správci na dobu neurčitou s tím, že svůj udělený souhlas může Uživatel kdykoliv na drese správce info@realitymix.cz odvolat. Správce garantuje Uživateli i další práva uvedené v ustanovení §11 a §21 zákoba č. 101/200 Sb. Ve znění pozdějších předpisů.
Více informací o zpracování údajů získáte zde (realitymix.cz/zasady-ochrany-osobnich-udaju)