Prodej rodinného domu se zahradním domkem, pozemek 945 m2, Pardubice - Svítkov
Nabízíme prodej rozestavěného rodinného domu o dispozici 5+kk v ulici U Bylanky, ve vyhledávané a klidné části Pardubic, městské části Svítkov. Rodinný dům s velkorysým vnitřním uspořádání je v současné době ve fázi pokročilé hrubé stavby a nachází se na pozemku o celkové výměře 945 m2. Nabízí zastavěnou plochu 174 m² a užitnou plochu 218 m2: Disponuje pěti pokoji, množstvím úložných prostor a technickým zázemím, včetně dvou šaten, pracoven a jedné technické místnosti.
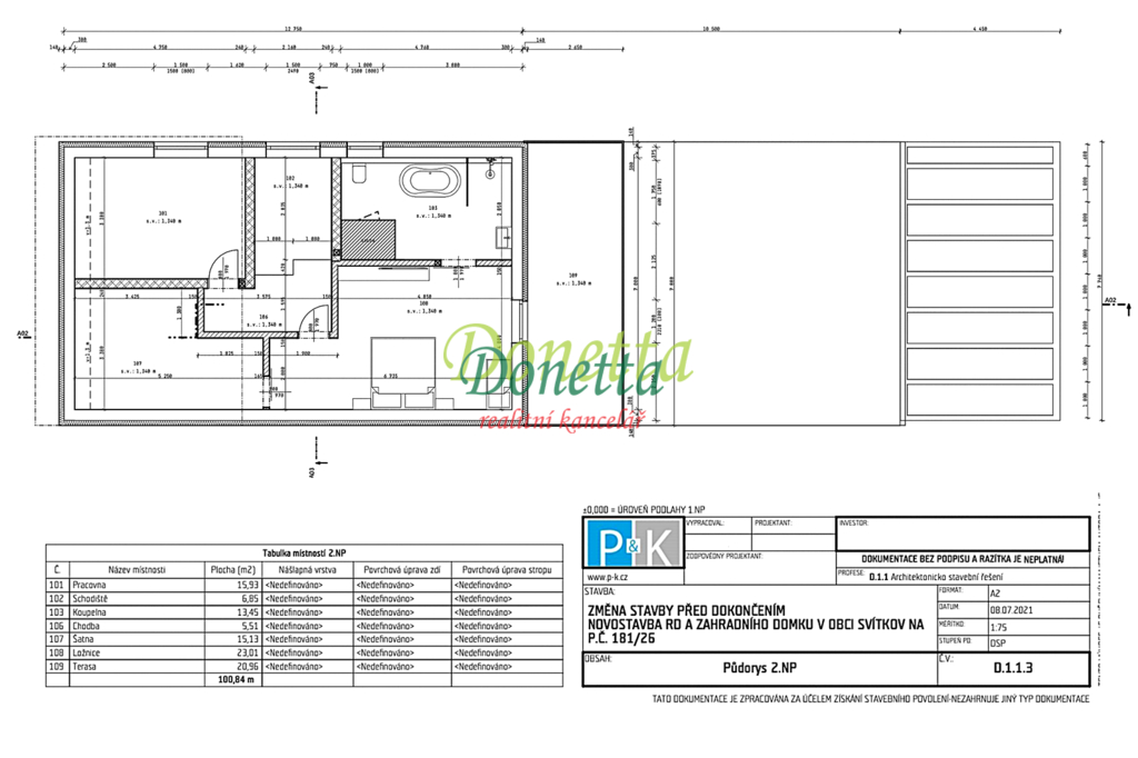
Dispozice domu zahrnuje v přízemí: vstupní předsíň, šatnu, technickou místnost, sklad, koupelnu, samostatné WC, dva pokoje (každý 15,93 m²), schodiště a prostorný obývací pokoj (44,56 m²) s kuchyňským koutem, jídelnou a přístupem na zahradu. Ve druhém podlaží je chodba, samostatný pokoj/pracovna (15,93 m2) a ložnice (23,01 m²) s vlastní koupelnou, šatnou a přístupem na terasu o velikosti 20,96 m².
Stavba je založena na nových základových pasech v nezámrzné hloubce. Obvodové zdivo je z cihelných bloků Porotherm s tloušťkou 300 mm a zateplením EPS o tloušťce 140 mm. Nosné příčky jsou z Porothermu (240 mm) a nenosné z Porothermu (150 mm). Střecha je částečně sedlová s betonovou krytinou a částečně plochá s asfaltovým povrchem opatřeným kačírkem. První podlaží má strop tvořený betonovou konstrukcí Spiroll. Zateplení střechy zahrnuje minerální vatu (2 x 160 mm u sedlové střechy) a EPS (240 mm u ploché střechy). Objekt je vyztužen železobetonovým věncem v několika výškových úrovních. Plastová okna a dveře zajišťují moderní vzhled i funkčnost. Podlahové vytápění je řešeno teplovodním systémem s tepelným čerpadlem jako zdrojem energie.
V zadní části pozemku se nachází, ve fázi před dokončením, objekt samostatné stavby zahradního domku se zastavěnou plochou 58,89 m2. Tento objekt má vstupní chodbu, koupelnu se sprchovým koutem, umyvadlem a toaletou, pokoj/pracovnu (9,52 m2) a pokoj (24,1 m2) se vstupem na zahradu. V budoucnu je možné využívat jako hostinský domek či prostor pro rodinné akce či oslavy.
Parkování je plánováno za vjezdovou branou na vlastním pozemku.
Skvělá dostupnost veškerých služeb a centra města.
Pro více informací nebo sjednání termínu prohlídky neváhejte kontaktovat realitního makléře.
Pomocí naší hypoteční kalkulačky si můžete udělat orientační představu o výši měsíčních splátek hypotéky. O vše ostatní se pak postaráme my ve spolupráci s našimi obchodními partnery.
40 447 Kč
* Odhadovaná měsíční splátka vychází z výše úvěru Kč s pevnou úrokovou sazbou % po celou dobu trvání úvěru.
Uživatel serveru RealityMIX.cz (dále jen „Server“) dostupného na internetové adrese (URL) https://www.realitymix.cz, který provozuje společnost DALTEN media s.r.o., se sídlem Na Harfě 916/9a, Praha 9, 190 00, IČO: 271 35 306 (dále jen „Správce“) jako provozovateli tohoto Serveru uděluje svůj výslovný souhlas v souladu s ustanovením § 5 zákona č. 101/2000 Sb. O ochraně osobních údajů a o změně některých zákonů, v platném znění (dále jen „zákon o ochraně osobních údajů“), se zpracováním uživatelem poskytnutých osobních údajů a dalších dat.
Uživatel poskytuje Správci osobní údaje v rozsahu: jméno, příjmení, e-mailová adresa, telefonický kontakt a další data, a to z důvodu projeveného zájmu o nemovitost, kde prostřednictvím služby Serveru Správce osloví Uživatel inzerenta uvedeného v detailu
nemovitosti - DONETTA s.r.o., realitní kancelář (IČ 25997441) se zájmem o jeho služby.
Uživatel tyto osobní údaje poskytuje dobrovolně a bere na vědomí, že součástí služeb Správce, které Správce Uživateli poskytuje, je vyhledání všech Uživateli vyhovujících (dle parametrů - cena, typ nemovitosti, lokalita atd.) nemovitostí. Správce za tímto účelem provozuje aplikace Hlídací pes a newsletter. Tyto služby je možné z každého zaslaného emailu odhlásit. Souhlas se zpracováním osobních údajů Uživatel poskytuje Správci na dobu neurčitou s tím, že svůj udělený souhlas může Uživatel kdykoliv na drese správce info@realitymix.cz odvolat. Správce garantuje Uživateli i další práva uvedené v ustanovení §11 a §21 zákoba č. 101/200 Sb. Ve znění pozdějších předpisů.
Více informací o zpracování údajů získáte zde (realitymix.cz/zasady-ochrany-osobnich-udaju)