Prodej souboru 8 budov (staveb) ve výrobně skladovacím areálu; podlahová plocha 5.239 m2, průmyslová
Prodej souboru 8 budov (staveb) ve výrobně skladovacím areálu; podlahová plocha 5.239 m2, průmyslová část Semtín, Pardubice
Jedná se o transparentní prodej formou elektronického výběrového řízení. Více informací na: www.verejnedrazby.cz/A7719
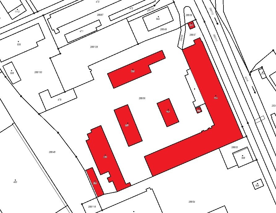
Budovy (stavby) jsou situovány v areálu průmyslové zóny. Stavby jsou umístěny na pozemcích ve vlastnictví třetí strany a tvoří relativně samostatný soubor uvnitř průmyslové zóny, který ale není od okolních staveb v areálu nijak oddělen. Lokalita se nachází v jihozápadní části průmyslové zóny, nedaleko od oblouku komunikace č. 211, která v této části vytváří hranici průmyslové zóny. Komunikace je vedena z Pardubic severozápadním směrem do města Lázně Bohdaneč a následně do Chlumce nad Cidlinou.
Administrativní budova M15/1 - podlahová plocha 888 m2
Hala M15 - podlahová plocha 2899 m2
Hala M15/3 - podlahová plocha 683 m2
Hala M15/10 - podlahová plocha 360 m2
Hala M15/8 - podlahová plocha 290 m2
Hala M15/5 - podlahová plocha 119 m2
Administrativní budova M15/1: Stavba je tvaru dvou na sebe navazujících obdélníků a je s dvěma nadzemními podlažími bez podsklepení.
Dispoziční řešení:
Zúžená část budovy tvoří severovýchodní křídlo. Vstup do budovy je samostatný pro I. a pro II. NP,. V I. NP je hlavním komunikačním prostorem chodba v podélné ose stavby, z které je přístup do většiny místností v podlaží. V I. NP jsou umístěny sprchy, umývárny, šatny zaměstnanců a sociální zařízení. Schodiště do II. NP není z I. NP přístupné, vedle schodišťového prostoru je umístěna výměníková stanice. Vstup do II. NP je samostatný. Dispozice vychází z podobného uspořádání jako v I. NP, většina místností je přístupná z podélné chodby v ose stavby. V zúžené severovýchodní části stavby je umístěna zasedací místnost, druhá menší zasedací místnost se nachází u jihozápadního štítu. Veškeré ostatní místnosti jsou užívány jako kanceláře, které doplňují tři malé sklady, sociální zařízení pro muže a ženy a čajová kuchyně.
Kompletní informace k halám jsou uvedeny ve znaleckém posudku - k dispozici přímo na kartě výběrového řízení.
Jako příslušenství jsou považovány přístřešky:
Přístřešek na pozemku st. 947 - 24 m2
Přístřešek na pozemku st. 955 - 17 m2
Adresa: Semtín 273, 533 53 Pardubice VII - Semtín
Forma prodeje: tříkolové elektronické výběrové řízení
Minimální požadovaná cena: 28.900.000,- Kč
Kauce: 1.445.000,- Kč
Termín složení kauce a doručení podepsané Smlouvy o složení kauce: do 7.10.2025 do 15:00 hod.
Termín podání cenové nabídky (2.kolo): do 8.10.2025 do 12:00 hod.
Termín podání finální nabídky (3.kolo): do 8.10.2025 do 14:00 hod.
Pomocí naší hypoteční kalkulačky si můžete udělat orientační představu o výši měsíčních splátek hypotéky. O vše ostatní se pak postaráme my ve spolupráci s našimi obchodními partnery.
117 008 Kč
* Odhadovaná měsíční splátka vychází z výše úvěru Kč s pevnou úrokovou sazbou % po celou dobu trvání úvěru.
Uživatel serveru RealityMIX.cz (dále jen „Server“) dostupného na internetové adrese (URL) https://www.realitymix.cz, který provozuje společnost DALTEN media s.r.o., se sídlem Na Harfě 916/9a, Praha 9, 190 00, IČO: 271 35 306 (dále jen „Správce“) jako provozovateli tohoto Serveru uděluje svůj výslovný souhlas v souladu s ustanovením § 5 zákona č. 101/2000 Sb. O ochraně osobních údajů a o změně některých zákonů, v platném znění (dále jen „zákon o ochraně osobních údajů“), se zpracováním uživatelem poskytnutých osobních údajů a dalších dat.
Uživatel poskytuje Správci osobní údaje v rozsahu: jméno, příjmení, e-mailová adresa, telefonický kontakt a další data, a to z důvodu projeveného zájmu o nemovitost, kde prostřednictvím služby Serveru Správce osloví Uživatel inzerenta uvedeného v detailu
nemovitosti - GAUTE, a.s. (IČ 25543709) se zájmem o jeho služby. Tato společnost je součástí seskupení/sítě/franšízového modelu realitních kanceláří, jejich seznam můžete zobrazit kliknutím na tento odkaz.
Bramley, s.r.o. (IČ 26306735) , GAUTE, a.s. (IČ 25543709)
Uživatel tyto osobní údaje poskytuje dobrovolně a bere na vědomí, že součástí služeb Správce, které Správce Uživateli poskytuje, je vyhledání všech Uživateli vyhovujících (dle parametrů - cena, typ nemovitosti, lokalita atd.) nemovitostí. Správce za tímto účelem provozuje aplikace Hlídací pes a newsletter. Tyto služby je možné z každého zaslaného emailu odhlásit. Souhlas se zpracováním osobních údajů Uživatel poskytuje Správci na dobu neurčitou s tím, že svůj udělený souhlas může Uživatel kdykoliv na drese správce info@realitymix.cz odvolat. Správce garantuje Uživateli i další práva uvedené v ustanovení §11 a §21 zákoba č. 101/200 Sb. Ve znění pozdějších předpisů.
Více informací o zpracování údajů získáte zde (realitymix.cz/zasady-ochrany-osobnich-udaju)