Nabízíme k pronájmu komerční jednotku 148 m2, určenou pro malé a střední firmy, které potřebují kombinaci skladových prostor a kancelářského zázemí. Jednotka je součástí moderního projektu GL Park Pardubice, navrženého jako soubor samostatných nebytových jednotek s vlastním parkováním a profesionální správou areálu.
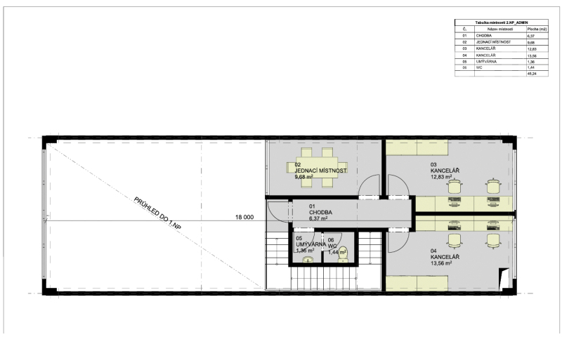
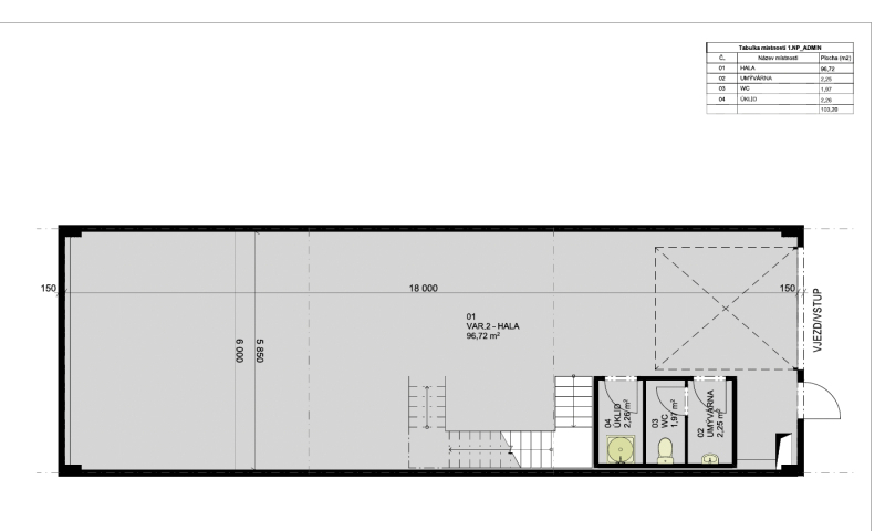
Jednotka má celkovou plochu cca 148 m2 a je dispozičně řešena ve dvou podlažích. V 1. NP se nachází skladová hala s technickým a sociálním zázemím o velikosti 103 m2. Ve 2. NP je vyhrazeno administrativní části, kde jsou tři samostatné kanceláře, chodba a sociální zázemí o celkové velikosti 45 m2. Toto uspořádání umožňuje jasné oddělení provozu od administrativy a vytváří komfortní pracovní prostředí.
Objekt je postaven jako prefabrikovaná železobetonová konstrukce opláštěná panely Kingspan. Podlaha v hale je z drátkobetonu s vysokou únosností až 8 000 kg/m2 vhodná i pro náročnější provoz. Součástí jednotky jsou sekční garážová vrata, plastová okna, ocelové vstupní dveře a kompletní elektroinstalace včetně třífázového přívodu 50 A, vlastního měření a přípravy na wallbox. Vytápění je řešeno tepelným čerpadlem vzduch/voda, připravena je také příprava na fotovoltaiku. Do jednotky je přiveden optický internet.
Velkou výhodou je dokončení jednotky dle individuálních požadavků budoucího nájemce, a to přímo na míru konkrétnímu provozu - dispoziční úpravy, vybavení kanceláří, povrchy, technologie či další technické řešení lze po dohodě přizpůsobit potřebám zájemce.
K jednotce náleží 2 parkovací stání přímo před objektem, další parkovací místa jsou k dispozici v rámci areálu. Areál má komunikace o šířce 6 m a je spravován společností GL Park Pardubice s.r.o., která zajišťuje údržbu, úklid, ostrahu a vyúčtování služeb.
Tyto prostory nabízejí nejlepší poměr ceny a funkce v rámci projektu a je ideální volbou pro firmy, které hledají dlouhodobé, reprezentativní a flexibilní zázemí pro své podnikání.
Pro více informací o nájemném, službách a podmínkách pronájmu, případně o dokončení jednotky na míru, nebo pro sjednání prohlídky nás neváhejte kontaktovat.
Uživatel serveru RealityMIX.cz (dále jen „Server“) dostupného na internetové adrese (URL) https://www.realitymix.cz, který provozuje společnost DALTEN media s.r.o., se sídlem Na Harfě 916/9a, Praha 9, 190 00, IČO: 271 35 306 (dále jen „Správce“) jako provozovateli tohoto Serveru uděluje svůj výslovný souhlas v souladu s ustanovením § 5 zákona č. 101/2000 Sb. O ochraně osobních údajů a o změně některých zákonů, v platném znění (dále jen „zákon o ochraně osobních údajů“), se zpracováním uživatelem poskytnutých osobních údajů a dalších dat.
Uživatel poskytuje Správci osobní údaje v rozsahu: jméno, příjmení, e-mailová adresa, telefonický kontakt a další data, a to z důvodu projeveného zájmu o nemovitost, kde prostřednictvím služby Serveru Správce osloví Uživatel inzerenta uvedeného v detailu
nemovitosti - Bidli reality, a.s. (IČ 06790763) se zájmem o jeho služby. Tato společnost je součástí seskupení/sítě/franšízového modelu realitních kanceláří, jejich seznam můžete zobrazit kliknutím na tento odkaz.
Hypocentrum modré pyramidy - Praha (IČ ) , Hypocentrum modré pyramidy - Brno (IČ ) , Hypocentrum Modré pyramidy - Hradec Králové (IČ ) , Hypocentrum Modré pyramidy - České Budějovice (IČ ) , Hypocentrum Modré pyramidy - Pardubice (IČ ) , Hypocentrum Modré pyramidy - Plzeň (IČ ) , Hypocentrum Modré pyramidy - Ústí nad Labem (IČ ) , Hypocentrum Modré pyramidy - Ostrava (IČ ) , Hypocentrum Modré pyramidy - Olomouc (IČ ) , Bidli reality, a.s. (IČ 06790763)
Uživatel tyto osobní údaje poskytuje dobrovolně a bere na vědomí, že součástí služeb Správce, které Správce Uživateli poskytuje, je vyhledání všech Uživateli vyhovujících (dle parametrů - cena, typ nemovitosti, lokalita atd.) nemovitostí. Správce za tímto účelem provozuje aplikace Hlídací pes a newsletter. Tyto služby je možné z každého zaslaného emailu odhlásit. Souhlas se zpracováním osobních údajů Uživatel poskytuje Správci na dobu neurčitou s tím, že svůj udělený souhlas může Uživatel kdykoliv na drese správce info@realitymix.cz odvolat. Správce garantuje Uživateli i další práva uvedené v ustanovení §11 a §21 zákoba č. 101/200 Sb. Ve znění pozdějších předpisů.
Více informací o zpracování údajů získáte zde (realitymix.cz/zasady-ochrany-osobnich-udaju)