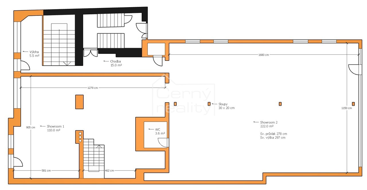
Pronájem obchodních prostor 370 m2, Showroom 220 m2, v centru Pardubic
Pronájem obchodních prostor 370 m2, v centru Pardubic, na adrese Smetanovo náměstí 48. Jedná se o nebytové prostory s výlohami do ulice Smetanovo náměstí a velký showroom 222 m2 s výlohami a příjezdem od parkovacího domu, resp. Penny marketu. Před obchodem je městské parkoviště pro cca 12 vozidel a možnost podélného stání na ulici před objektem. Dispozice prostor:1.NP : skládající se z obchodní plochy - showroomu 220 m2 - otočen k parkovacímu domu, WC, technická místnost 4 m2, sklad na chodbě 1 m2, výloha do ulice Smetanovo náměstí 6 m2, nebytový prostor 110 m2 se schodištěm - otočen do Smetanova náměstí,2.NP : WC muži 5 m2, WC ženy 4 m2, WC inv. 2 m2, chodba 12 m2, výtah 1,5 m2, Prostory o celkové výměře 370 m2.Před showroomem je parkoviště pro 5 vozidel. Jedná se o lukrativní místo (za divadlem) v samém centru Krajského města. Pro více informací a prohlídku volejte makléře. ID 48026.
Cena:
75 000 Kč / (za měsíc)
Poznámka:
+ energie a služby (10.000,-Kč)
Datum k nastěhování:
01.06.2026
Číslo zakázky:
REALITYMIX-721
Podrobné informace
Plocha:26 m²
Plocha parcely:370 m²
Druh objektu:cihlová
Stav objektu:velmi dobrý
Druh prostor:Obchodní
Ostatní:Bezbarierový přístup, Parkoviště, Sociální zařízení
Uživatel serveru RealityMIX.cz (dále jen „Server“) dostupného na internetové adrese (URL) https://www.realitymix.cz, který provozuje společnost DALTEN media s.r.o., se sídlem Na Harfě 916/9a, Praha 9, 190 00, IČO: 271 35 306 (dále jen „Správce“) jako provozovateli tohoto Serveru uděluje svůj výslovný souhlas v souladu s ustanovením § 5 zákona č. 101/2000 Sb. O ochraně osobních údajů a o změně některých zákonů, v platném znění (dále jen „zákon o ochraně osobních údajů“), se zpracováním uživatelem poskytnutých osobních údajů a dalších dat.
Uživatel poskytuje Správci osobní údaje v rozsahu: jméno, příjmení, e-mailová adresa, telefonický kontakt a další data, a to z důvodu projeveného zájmu o nemovitost, kde prostřednictvím služby Serveru Správce osloví Uživatel inzerenta uvedeného v detailu
nemovitosti - Reality Černý s.r.o. (IČ 62064304 ) se zájmem o jeho služby.
Uživatel tyto osobní údaje poskytuje dobrovolně a bere na vědomí, že součástí služeb Správce, které Správce Uživateli poskytuje, je vyhledání všech Uživateli vyhovujících (dle parametrů - cena, typ nemovitosti, lokalita atd.) nemovitostí. Správce za tímto účelem provozuje aplikace Hlídací pes a newsletter. Tyto služby je možné z každého zaslaného emailu odhlásit. Souhlas se zpracováním osobních údajů Uživatel poskytuje Správci na dobu neurčitou s tím, že svůj udělený souhlas může Uživatel kdykoliv na drese správce info@realitymix.cz odvolat. Správce garantuje Uživateli i další práva uvedené v ustanovení §11 a §21 zákoba č. 101/200 Sb. Ve znění pozdějších předpisů.
Více informací o zpracování údajů získáte zde (realitymix.cz/zasady-ochrany-osobnich-udaju)