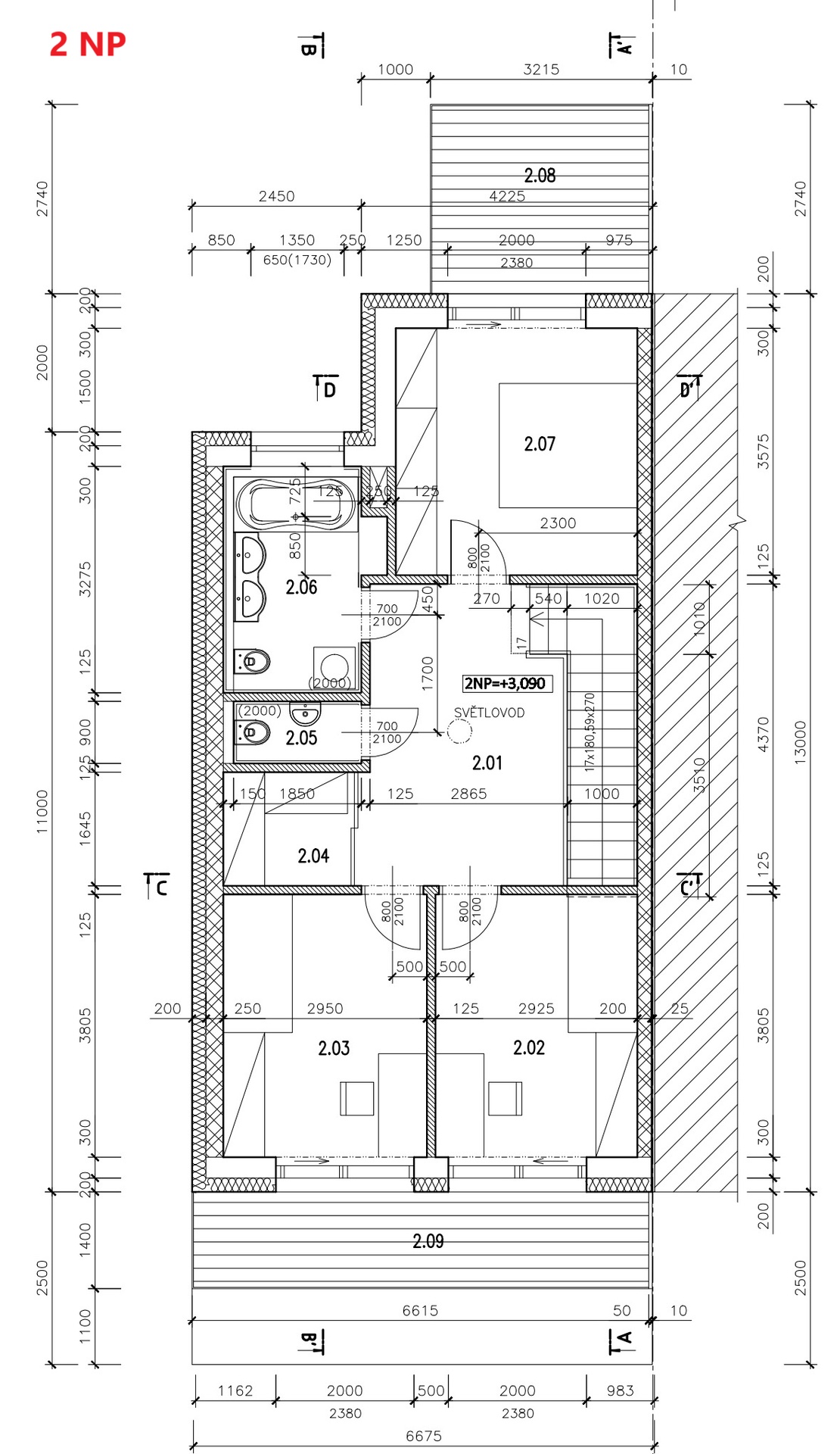
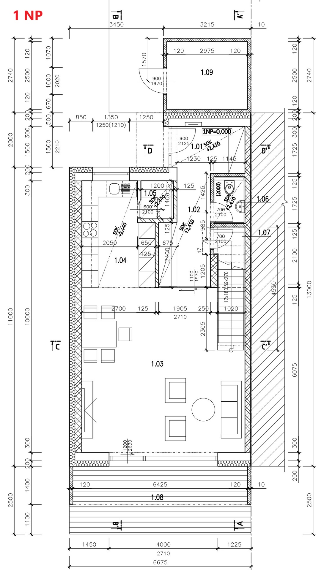
Nový moderní dispozičně zdařilý rodinný dům č. 11 v atraktivní lokalitě, Pasohlávky. Novostavba s užitnou plochou 134 m² na pozemku o rozloze 214 m². Dům je energeticky velmi úsporný (třída A) a disponuje třemi terasami o celkové rozloze 34 m² + dvě parkovací místa. Cihlová konstrukce budovy zaručuje dlouhou životnost a kvalitu. Ideální pro rodinu hledající pohodlné a moderní bydlení v klidné lokalitě s možností relaxace. Neopomeňte si tuto jedinečnou nabídku prohlédnout!
Jedná se o řadový rodinný dům 4+kk na pobřeží Mušovských jezer ve druhé etapě výstavby projektu Rezidence Pasohlávky. Výstavba byla zahájena a stylově bude navazovat na designovou eleganci a kvalitu první úspěšné etapy. Dům nabídne moderní a funkční dispozice, maximálně využitý prostor, dvě parkovací místa a pohodlné bydlení pro celou rodinu. Navržená dispozice může mít několik modifikací, jejich návrhy rádi zašleme, například až na 5+kk.
Zajištěn bude také dostatek užitkové vody pro závlahu a to z retenční nádrže.
Nenechte si ujít příležitost stát se součástí exkluzivního projektu! Pokud hledáte komfortní bydlení, které bude reflektovat váš vkus a výjimečný životní styl, kde se spojí luxus, malebná příroda a slunečné podnebí, pak je Rezidence Pasohlávky tím pravým místem pro vás.
Pomocí naší hypoteční kalkulačky si můžete udělat orientační představu o výši měsíčních splátek hypotéky. O vše ostatní se pak postaráme my ve spolupráci s našimi obchodními partnery.
44 640 Kč
* Odhadovaná měsíční splátka vychází z výše úvěru Kč s pevnou úrokovou sazbou % po celou dobu trvání úvěru.
Uživatel serveru RealityMIX.cz (dále jen „Server“) dostupného na internetové adrese (URL) https://www.realitymix.cz, který provozuje společnost DALTEN media s.r.o., se sídlem Na Harfě 916/9a, Praha 9, 190 00, IČO: 271 35 306 (dále jen „Správce“) jako provozovateli tohoto Serveru uděluje svůj výslovný souhlas v souladu s ustanovením § 5 zákona č. 101/2000 Sb. O ochraně osobních údajů a o změně některých zákonů, v platném znění (dále jen „zákon o ochraně osobních údajů“), se zpracováním uživatelem poskytnutých osobních údajů a dalších dat.
Uživatel poskytuje Správci osobní údaje v rozsahu: jméno, příjmení, e-mailová adresa, telefonický kontakt a další data, a to z důvodu projeveného zájmu o nemovitost, kde prostřednictvím služby Serveru Správce osloví Uživatel inzerenta uvedeného v detailu
nemovitosti - GAUTE, a.s. (IČ 25543709) se zájmem o jeho služby. Tato společnost je součástí seskupení/sítě/franšízového modelu realitních kanceláří, jejich seznam můžete zobrazit kliknutím na tento odkaz.
Bramley, s.r.o. (IČ 26306735) , GAUTE, a.s. (IČ 25543709)
Uživatel tyto osobní údaje poskytuje dobrovolně a bere na vědomí, že součástí služeb Správce, které Správce Uživateli poskytuje, je vyhledání všech Uživateli vyhovujících (dle parametrů - cena, typ nemovitosti, lokalita atd.) nemovitostí. Správce za tímto účelem provozuje aplikace Hlídací pes a newsletter. Tyto služby je možné z každého zaslaného emailu odhlásit. Souhlas se zpracováním osobních údajů Uživatel poskytuje Správci na dobu neurčitou s tím, že svůj udělený souhlas může Uživatel kdykoliv na drese správce info@realitymix.cz odvolat. Správce garantuje Uživateli i další práva uvedené v ustanovení §11 a §21 zákoba č. 101/200 Sb. Ve znění pozdějších předpisů.
Více informací o zpracování údajů získáte zde (realitymix.cz/zasady-ochrany-osobnich-udaju)