Prodej novostavby 4kk s garáží, 166 m2, zahrada 212 m2, Velké Chvalovice
Konečně dost místa. K životu, k dýchání, ke snům a to hned. Nemovitost je v družstevním vlastnictví, počáteční vklad tvoří 20% z hodnoty nemovitosti. Zbytek splácíte formou nájmu. Možnost převodu do osobního vlastnictví po doplacení anuity je již po 5 letech.
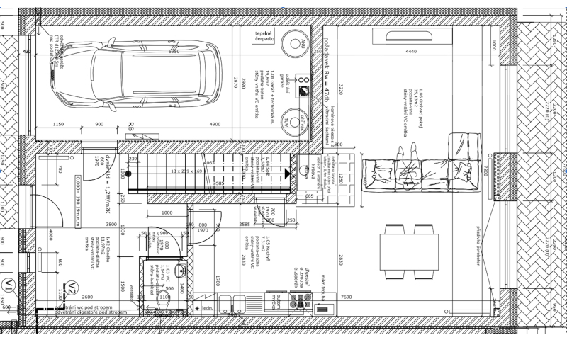
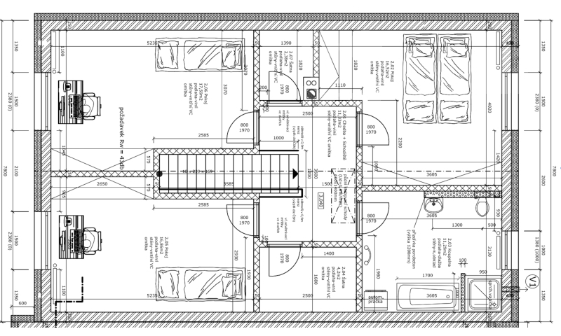
Na kraji Velkých Chvalovic, klidné části města Pečky, vznikla nová ulice s příznačným názvem Za Statkem. Právě zde na vás čeká úplně nový rodinný dům, který spojuje komfort moderní novostavby, dostatek prostoru i výhledy do krajiny. Dispozice 4+kk a celková plocha 166 m2, vám zajistí pohodlí, o kterém jste vždy snili.
V přízemí se nachází garáž a hlavní obytná zóna - srdce domu - tedy kuchyňský kout propojený s velkorysým obývacím prostorem o výměře 42 m2. V patře následně klidová část, tedy 3 pokoje, koupelna se sprchovým koutem i vanou a dostatek úložného prostoru. Velká okna přinášejí do interiéru příjemné světlo a umožňují přímý vstup na soukromou zahradu o rozloze 212 m2. Ta je jako stvořená pro víkendová grilování, dětské hry nebo klidné večery pod širým nebem.
Dům je vybaven kvalitními materiály a prvky, které potěší oko i praktičností - vinylové podlahy, moderní interiérové dveře, plastová okna s izolačním trojsklem, designová sanita značky SAT, baterie SIKO a elegantní obklady Rako Betonico. O vytápění se stará tepelné čerpadlo typu vzduch-voda od značky Willy, což znamená nízké provozní náklady a energetickou efektivitu.
Rodinné domy v této lokalitě jsou napojeny na obecní vodovod a kanalizaci. Kromě vlastní garáže máte k dispozici i parkovací stání přímo před domem. Sedlová střecha s betonovou krytinou v antracitovém odstínu elegantně ladí s celkovým vzhledem stavby.
Velké Chvalovice těží z vynikající polohy. Dálnice D11 je vzdálená jen 7 kilometrů, takže se do Prahy dostanete autem za přibližně 23 minut. Pokud preferujete hromadnou dopravu, vlak z Peček vás do centra Prahy dopraví za půl hodiny. Navíc je zde také autobusové spojení do Kolína, Poděbrad či Českého Brodu.
Město Pečky nabízí vše, co potřebuje moderní rodina - školku, školu, ZUŠ, lékaře, obchody, kulturní centrum, knihovnu, restaurace i sportovní vyžití včetně sportovní haly a různých oddílů. V okolí najdete krásnou přírodu, cyklostezky, lesy, historické památky i přírodní koupání.
Tato novostavba je připravena na to, stát se vaším domovem. A možná i začátkem úplně nové životní etapy.
Zavolejte si o případné další dotazy a hlavně prohlídku - rád vás domem osobně provedu.
Pomocí naší hypoteční kalkulačky si můžete udělat orientační představu o výši měsíčních splátek hypotéky. O vše ostatní se pak postaráme my ve spolupráci s našimi obchodními partnery.
7 684 Kč
* Odhadovaná měsíční splátka vychází z výše úvěru Kč s pevnou úrokovou sazbou % po celou dobu trvání úvěru.
Uživatel serveru RealityMIX.cz (dále jen „Server“) dostupného na internetové adrese (URL) https://www.realitymix.cz, který provozuje společnost DALTEN media s.r.o., se sídlem Na Harfě 916/9a, Praha 9, 190 00, IČO: 271 35 306 (dále jen „Správce“) jako provozovateli tohoto Serveru uděluje svůj výslovný souhlas v souladu s ustanovením § 5 zákona č. 101/2000 Sb. O ochraně osobních údajů a o změně některých zákonů, v platném znění (dále jen „zákon o ochraně osobních údajů“), se zpracováním uživatelem poskytnutých osobních údajů a dalších dat.
Uživatel poskytuje Správci osobní údaje v rozsahu: jméno, příjmení, e-mailová adresa, telefonický kontakt a další data, a to z důvodu projeveného zájmu o nemovitost, kde prostřednictvím služby Serveru Správce osloví Uživatel inzerenta uvedeného v detailu
nemovitosti - Bidli reality, a.s. (IČ 06790763) se zájmem o jeho služby. Tato společnost je součástí seskupení/sítě/franšízového modelu realitních kanceláří, jejich seznam můžete zobrazit kliknutím na tento odkaz.
Hypocentrum modré pyramidy - Praha (IČ ) , Hypocentrum modré pyramidy - Brno (IČ ) , Hypocentrum Modré pyramidy - Hradec Králové (IČ ) , Hypocentrum Modré pyramidy - České Budějovice (IČ ) , Hypocentrum Modré pyramidy - Pardubice (IČ ) , Hypocentrum Modré pyramidy - Plzeň (IČ ) , Hypocentrum Modré pyramidy - Ústí nad Labem (IČ ) , Hypocentrum Modré pyramidy - Ostrava (IČ ) , Hypocentrum Modré pyramidy - Olomouc (IČ ) , Bidli reality, a.s. (IČ 06790763)
Uživatel tyto osobní údaje poskytuje dobrovolně a bere na vědomí, že součástí služeb Správce, které Správce Uživateli poskytuje, je vyhledání všech Uživateli vyhovujících (dle parametrů - cena, typ nemovitosti, lokalita atd.) nemovitostí. Správce za tímto účelem provozuje aplikace Hlídací pes a newsletter. Tyto služby je možné z každého zaslaného emailu odhlásit. Souhlas se zpracováním osobních údajů Uživatel poskytuje Správci na dobu neurčitou s tím, že svůj udělený souhlas může Uživatel kdykoliv na drese správce info@realitymix.cz odvolat. Správce garantuje Uživateli i další práva uvedené v ustanovení §11 a §21 zákoba č. 101/200 Sb. Ve znění pozdějších předpisů.
Více informací o zpracování údajů získáte zde (realitymix.cz/zasady-ochrany-osobnich-udaju)