Nabízím k prodeji rodinný dům v obci Pečky, necelých pět minut pěšky od vlakového a autobusového nádraží. Velmi dobré spojení do Prahy. Autem na Černý Most za půl hodiny a vlakem do centra Prahy za 1 hodinu. Za 20 minut jste na nádraží v Kolíně.
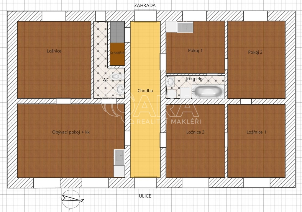
Tento dům smíšené konstrukce je v řadové zástavbě a nabízí dostatek místností pro velkou rodinu. Celková zastavěná plocha domu činí 154 m, zatímco užitná plocha je 99 m. Součástí parcely je také zahrada za domem o celkové výměře 261 m. Na zahradě je meruňka a ořech. Na hranici pozemku je studna s užitkovou vodou a je používaná napůl se sousedy. Další prostory najdete na půdě, která má v ploše přes 100 m a její prostor tak můžete využít pro další zvětšení domu, například sklad či jiné prostory.
Prvních pět snímků inzerce jsou vizualizace interiéru a exteriéru domu po rekonstrukci.
Dům je před rekonstrukcí, což poskytuje nové možnosti pro úpravy dle individuálních představ budoucího majitele. Pod domem se nachází sklep s plochou 7 m.
Dům je připojen na obecní vodovod a na kanalizaci. Také na plynovod a elektřinu s napětím 230 V. Internetové přípojka na VDSL, což zajišťuje rychlé a spolehlivé připojení.
Vytápění je řešeno prostřednictvím WAW topných těles, zatímco teplá voda v koupelně se ohřívá po staru v kotli na tuhá paliva. V koupelně je k dispozici vana.
Nemovitost se nachází v příjemném prostředí a při rekonstrukci má potenciál stát se útulným domovem podle individuálních představ.
Pro tento dům najdete další informace na internetové stránce kterou Vám rádi zašleme na vyžádání. SMS nebo emailem. Některé realitní servery nepovolují uvádět externí odkazy do inzerce.
V případě zájmu o prohlídku mě neváhejte kontaktovat.
Energetický štítek v kategorii G.
Uvedené velikosti a rozměry nejsou potvrzeny plány, proto jsou uvedené údaje bez záruky přesnosti. Rozměry budovy a vnitřních prostor byly určeny odhadem.
Cena:
3 990 000 Kč
Poznámka:
Konečná cena včetně Kupní smlouvy, advokátní úschovy a zpracování výhodného úvěru.
Pomocí naší hypoteční kalkulačky si můžete udělat orientační představu o výši měsíčních splátek hypotéky. O vše ostatní se pak postaráme my ve spolupráci s našimi obchodními partnery.
16 154 Kč
* Odhadovaná měsíční splátka vychází z výše úvěru Kč s pevnou úrokovou sazbou % po celou dobu trvání úvěru.
Uživatel serveru RealityMIX.cz (dále jen „Server“) dostupného na internetové adrese (URL) https://www.realitymix.cz, který provozuje společnost DALTEN media s.r.o., se sídlem Na Harfě 916/9a, Praha 9, 190 00, IČO: 271 35 306 (dále jen „Správce“) jako provozovateli tohoto Serveru uděluje svůj výslovný souhlas v souladu s ustanovením § 5 zákona č. 101/2000 Sb. O ochraně osobních údajů a o změně některých zákonů, v platném znění (dále jen „zákon o ochraně osobních údajů“), se zpracováním uživatelem poskytnutých osobních údajů a dalších dat.
Uživatel poskytuje Správci osobní údaje v rozsahu: jméno, příjmení, e-mailová adresa, telefonický kontakt a další data, a to z důvodu projeveného zájmu o nemovitost, kde prostřednictvím služby Serveru Správce osloví Uživatel inzerenta uvedeného v detailu
nemovitosti - QARA s.r.o. (IČ 01740113) se zájmem o jeho služby. Tato společnost je součástí seskupení/sítě/franšízového modelu realitních kanceláří, jejich seznam můžete zobrazit kliknutím na tento odkaz.
QARA s.r.o. Ostrava (IČ 01740113) , QARA s.r.o. Brno (IČ 01740113) , QARA s.r.o. (IČ 01740113)
Uživatel tyto osobní údaje poskytuje dobrovolně a bere na vědomí, že součástí služeb Správce, které Správce Uživateli poskytuje, je vyhledání všech Uživateli vyhovujících (dle parametrů - cena, typ nemovitosti, lokalita atd.) nemovitostí. Správce za tímto účelem provozuje aplikace Hlídací pes a newsletter. Tyto služby je možné z každého zaslaného emailu odhlásit. Souhlas se zpracováním osobních údajů Uživatel poskytuje Správci na dobu neurčitou s tím, že svůj udělený souhlas může Uživatel kdykoliv na drese správce info@realitymix.cz odvolat. Správce garantuje Uživateli i další práva uvedené v ustanovení §11 a §21 zákoba č. 101/200 Sb. Ve znění pozdějších předpisů.
Více informací o zpracování údajů získáte zde (realitymix.cz/zasady-ochrany-osobnich-udaju)