Představujeme vám exkluzivní nabídku moderního řadového rodinného domu na ulici Ráčkova v Petřvaldě
Tato lokalita je jako stvořená pro rodinné bydlení. Klidné prostředí obklopené zelení, skvělá dostupnost do centra města i okolních obcí a kompletní občanská vybavenost v dosahu.
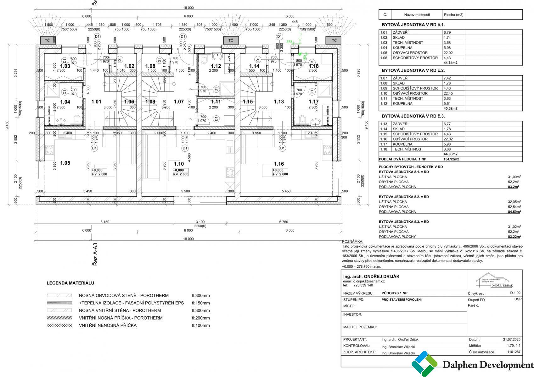
Projekt zahrnuje řadové domy s užitnou plochou 83 m2 a 85 m2 a zahradou o výměře od 281 m. Každý dům nabízí promyšlenou dispozici 4+kk ve dvou podlažích s moderní architekturou včetně ploché střechy.
V přízemí se nachází světlý a vzdušný obývací pokoj propojený s kuchyní, který poskytuje dostatek místa i pro velký jídelní stůl. Přímý vstup na zahradu umožní pohodlné propojení interiéru s exteriérem a poskytuje tak ideální zázemí pro rodinný život. V patře jsou situovány ložnice a prostorná koupelna, což zajistí soukromí i pohodlí. Praktickým doplňkem je také pracovna či pokoj pro hosty a technická místnost se šatnou.
Velkou předností je poloha pozemků a příjemný výhled do zeleně, který navozuje pocit klidu a soukromí. Před domem bude parkovací stání i prostor pro okrasné výsadby. Zahrada bude kompletně oplocena. Na přání lze dům doplnit například o venkovní žaluzie, terasu či bazén, případně i další technologie. Detailní informace o stavbě, použitých materiálech i možnostech těchto nadstandardních úprav vám poskytneme na vyžádání.
Rádi vám také nabídneme možnost individuálních úprav, pokud byste měli specifické požadavky na jiné dispoziční řešení nebo vybavení.
Detailní informace o projektu, standardech a možnostech úprav vám rádi poskytneme. K této nemovitosti máte připravené podrobné informace na: https://www.rezidencerackova.cz
Pomocí naší hypoteční kalkulačky si můžete udělat orientační představu o výši měsíčních splátek hypotéky. O vše ostatní se pak postaráme my ve spolupráci s našimi obchodními partnery.
26 681 Kč
* Odhadovaná měsíční splátka vychází z výše úvěru Kč s pevnou úrokovou sazbou % po celou dobu trvání úvěru.
Uživatel serveru RealityMIX.cz (dále jen „Server“) dostupného na internetové adrese (URL) https://www.realitymix.cz, který provozuje společnost DALTEN media s.r.o., se sídlem Na Harfě 916/9a, Praha 9, 190 00, IČO: 271 35 306 (dále jen „Správce“) jako provozovateli tohoto Serveru uděluje svůj výslovný souhlas v souladu s ustanovením § 5 zákona č. 101/2000 Sb. O ochraně osobních údajů a o změně některých zákonů, v platném znění (dále jen „zákon o ochraně osobních údajů“), se zpracováním uživatelem poskytnutých osobních údajů a dalších dat.
Uživatel poskytuje Správci osobní údaje v rozsahu: jméno, příjmení, e-mailová adresa, telefonický kontakt a další data, a to z důvodu projeveného zájmu o nemovitost, kde prostřednictvím služby Serveru Správce osloví Uživatel inzerenta uvedeného v detailu
nemovitosti - Dalphen Development, s.r.o. (IČ 21852456) se zájmem o jeho služby.
Uživatel tyto osobní údaje poskytuje dobrovolně a bere na vědomí, že součástí služeb Správce, které Správce Uživateli poskytuje, je vyhledání všech Uživateli vyhovujících (dle parametrů - cena, typ nemovitosti, lokalita atd.) nemovitostí. Správce za tímto účelem provozuje aplikace Hlídací pes a newsletter. Tyto služby je možné z každého zaslaného emailu odhlásit. Souhlas se zpracováním osobních údajů Uživatel poskytuje Správci na dobu neurčitou s tím, že svůj udělený souhlas může Uživatel kdykoliv na drese správce info@realitymix.cz odvolat. Správce garantuje Uživateli i další práva uvedené v ustanovení §11 a §21 zákoba č. 101/200 Sb. Ve znění pozdějších předpisů.
Více informací o zpracování údajů získáte zde (realitymix.cz/zasady-ochrany-osobnich-udaju)