Žádáme RK aby nás nekontaktovaly s nabídkou k zastoupení.
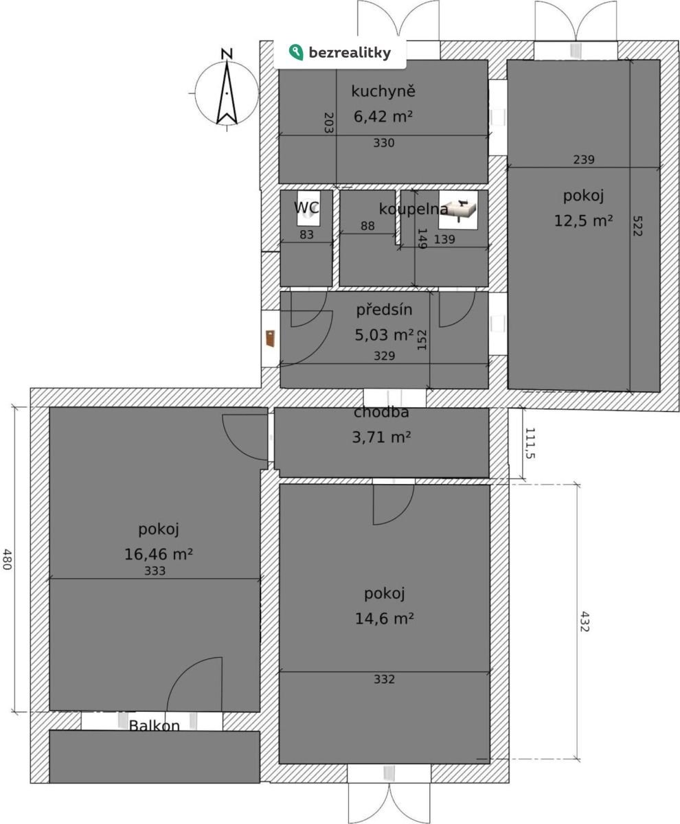
Jako přímý majitel nabízím k prodeji byt 3+1 o výměře 64 m² ve třetím patře cihlového domu s výtahem. Navenek nenápadný dům v Kollárově ulici je pečlivě udržovaný a v docházkové vzdálenosti od centra města a veškeré občanské vybavenosti. Kuchyň a obývací pokoj jsou situovány do ulice, ale oba pokoje mají výhled do vnitrobloku plného zeleně a na Píseckou věž.
Byt prošel kvalitní rekonstrukcí – má dvě ložnice, obývací pokoj, koupelnu, samostatné WC a kuchyň vyrobenou truhlářem na míru a vybavenou kvalitními spotřebiči.
Obývací místnosti mají všechny parketové podlahy, v případě dětského pokoje momentálně zakryto kobercem. Kuchyň, předsíň a chodbička mají vinylové podlahy. Koupelna je obložena kvalitním materiálem Rako Defile, stejně tak jsou kvalitní zařizovací předměty.
K bytu patří prostorný balkon (7,2 m²), ideální pro ranní kávu, a sklep (2,5 m²), který nabízí další úložný prostor.
V domě je také možnost používat kolárnu. Dvůr uvnitř vnitrobloku je rozsáhlý a umožňuje nejen parkování ale poskytuje prostor i pro další činností (hraní s dětmi, pikniky apod.).
S neustále stoupající hustotou silničního provozu je neocenitelná výhoda možnost parkování v uzavřeném dvoře. Byt je v osobním vlastnictví. Energetický štítek budovy: G (typické pro starší zástavbu). Tato nemovitost je určena výhradně přímým zájemcům o koupi. Na inzerát můžete také reagovat přímo na webu Bezrealitky: https://www.bezrealitky.cz/nemovitosti-byty-domy/955364-nabidka-prodej-bytu-kollarova-pisek
Pomocí naší hypoteční kalkulačky si můžete udělat orientační představu o výši měsíčních splátek hypotéky. O vše ostatní se pak postaráme my ve spolupráci s našimi obchodními partnery.
23 483 Kč
* Odhadovaná měsíční splátka vychází z výše úvěru Kč s pevnou úrokovou sazbou % po celou dobu trvání úvěru.
Prodáváte nemovitost a potřebujete zjistit její reálnou hodnotu?
* Umístění na mapě je na základě GPS informací dodaných realitní kanceláří.
* Pozice na mapě je pouze orientační.
Souhlas se zpracováním osobních údajů
Uživatel serveru RealityMIX.cz (dále jen „Server“) dostupného na internetové adrese (URL) https://www.realitymix.cz, který provozuje společnost DALTEN media s.r.o., se sídlem Na Harfě 916/9a, Praha 9, 190 00, IČO: 271 35 306 (dále jen „Správce“) jako provozovateli tohoto Serveru uděluje svůj výslovný souhlas v souladu s ustanovením § 5 zákona č. 101/2000 Sb. O ochraně osobních údajů a o změně některých zákonů, v platném znění (dále jen „zákon o ochraně osobních údajů“), se zpracováním uživatelem poskytnutých osobních údajů a dalších dat.
Uživatel poskytuje Správci osobní údaje v rozsahu: jméno, příjmení, e-mailová adresa, telefonický kontakt a další data, a to z důvodu projeveného zájmu o nemovitost, kde prostřednictvím služby Serveru Správce osloví Uživatel inzerenta uvedeného v detailu
nemovitosti - Bezrealitky s.r.o. (IČ 08063168) se zájmem o jeho služby.
Uživatel tyto osobní údaje poskytuje dobrovolně a bere na vědomí, že součástí služeb Správce, které Správce Uživateli poskytuje, je vyhledání všech Uživateli vyhovujících (dle parametrů - cena, typ nemovitosti, lokalita atd.) nemovitostí. Správce za tímto účelem provozuje aplikace Hlídací pes a newsletter. Tyto služby je možné z každého zaslaného emailu odhlásit. Souhlas se zpracováním osobních údajů Uživatel poskytuje Správci na dobu neurčitou s tím, že svůj udělený souhlas může Uživatel kdykoliv na drese správce info@realitymix.cz odvolat. Správce garantuje Uživateli i další práva uvedené v ustanovení §11 a §21 zákoba č. 101/200 Sb. Ve znění pozdějších předpisů.
Více informací o zpracování údajů získáte zde (realitymix.cz/zasady-ochrany-osobnich-udaju)