Představuji k prodeji byt o dispozici 2+kk nacházející se na adrese Karlova 1037/38, Plzeň.
Podívejte se na samostatnou stránku bytu – odkaz ve videoprohlídce .
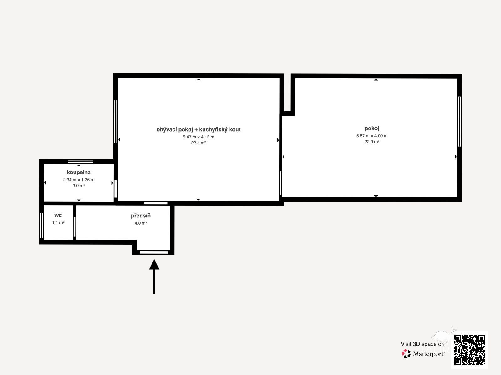
Kompletní představu o prostorovém uspořádání bytu získáte prohlédnutím 3D virtuální prohlídky zde v inzerci.
Lokalita:
Dům s bytovou jednotkou se nachází v širším centru Plzně, které se vyznačuje bohatou občanskou vybaveností. V bezprostředním okolí se nacházejí školy, školky, restaurace, kavárny, obchody i další služby pro každodenní život a například na náměstí je to pouhých 5 minut chůze. Velkou výhodou je také výborná dostupnost MHD, včetně blízkosti centrálního autobusového nádraží, což zajišťuje pohodlné spojení do okolních měst nebo na dálkové trasy.
Byt:
Bytová jednotka o výměře 50,8 m² je situována ve 3. patře, které je zároveň posledním podlažím domu. Dispozice bytu zahrnuje vstupní chodbu, obývací pokoj s kuchyňským koutem, samostatnou ložnici, koupelnu a oddělené WC. Byt se prodává včetně kuchyňské linky s elektrickým sporákem a vybavením koupelny, jinak je ponechán nezařízený, což novému majiteli umožňuje upravit si interiér dle vlastních představ.
Technické informace:
Byt je napojen na veřejný vodovod a kanalizaci. Vytápění a ohřev vody jsou řešeny vlastním plynovým kotlem umístěným přímo v bytě.
Bytový dům:
Jedná se o menší cihlový bytový dům o čtyřech nadzemních podlažích bez výtahu. Dům prošel několika úpravami, disponuje například novou fasádou nebo plastovými okny s dvojskly. Součástí domu je také vnitroblok, který mohou obyvatelé využívat například k posezení či odpočinku.
Tento byt doporučuji především díky jeho dobrému technickému stavu bez nutnosti okamžitých investic, praktické dispozici a atraktivní lokalitě.
Pro koupi bytu zajistím kompletní realitní a právní servis.
Kontaktujte mě pro domluvení prohlídky:
Jan Štěpánek
TAURUM reality
Pomocí naší hypoteční kalkulačky si můžete udělat orientační představu o výši měsíčních splátek hypotéky. O vše ostatní se pak postaráme my ve spolupráci s našimi obchodními partnery.
17 369 Kč
* Odhadovaná měsíční splátka vychází z výše úvěru Kč s pevnou úrokovou sazbou % po celou dobu trvání úvěru.
Prodáváte nemovitost a potřebujete zjistit její reálnou hodnotu?
Uživatel serveru RealityMIX.cz (dále jen „Server“) dostupného na internetové adrese (URL) https://www.realitymix.cz, který provozuje společnost DALTEN media s.r.o., se sídlem Na Harfě 916/9a, Praha 9, 190 00, IČO: 271 35 306 (dále jen „Správce“) jako provozovateli tohoto Serveru uděluje svůj výslovný souhlas v souladu s ustanovením § 5 zákona č. 101/2000 Sb. O ochraně osobních údajů a o změně některých zákonů, v platném znění (dále jen „zákon o ochraně osobních údajů“), se zpracováním uživatelem poskytnutých osobních údajů a dalších dat.
Uživatel poskytuje Správci osobní údaje v rozsahu: jméno, příjmení, e-mailová adresa, telefonický kontakt a další data, a to z důvodu projeveného zájmu o nemovitost, kde prostřednictvím služby Serveru Správce osloví Uživatel inzerenta uvedeného v detailu
nemovitosti - TAURUM reality s.r.o. (IČ 05904498) se zájmem o jeho služby.
Uživatel tyto osobní údaje poskytuje dobrovolně a bere na vědomí, že součástí služeb Správce, které Správce Uživateli poskytuje, je vyhledání všech Uživateli vyhovujících (dle parametrů - cena, typ nemovitosti, lokalita atd.) nemovitostí. Správce za tímto účelem provozuje aplikace Hlídací pes a newsletter. Tyto služby je možné z každého zaslaného emailu odhlásit. Souhlas se zpracováním osobních údajů Uživatel poskytuje Správci na dobu neurčitou s tím, že svůj udělený souhlas může Uživatel kdykoliv na drese správce info@realitymix.cz odvolat. Správce garantuje Uživateli i další práva uvedené v ustanovení §11 a §21 zákoba č. 101/200 Sb. Ve znění pozdějších předpisů.
Více informací o zpracování údajů získáte zde (realitymix.cz/zasady-ochrany-osobnich-udaju)