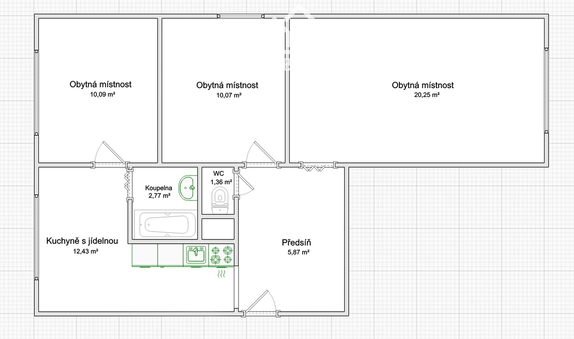
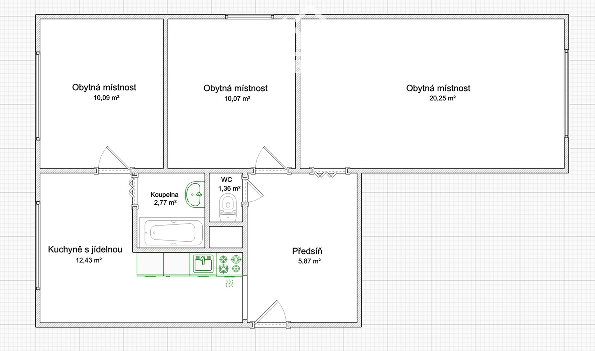
Hledáte byt, kde máte vše doslova pár kroků od dveří? Nabízíme k prodeji příjemný byt 3+1 v 1. NP panelového domu v Těšínské ulici. Díky své poloze a kompletní občanské vybavenosti v okolí je tento byt perfektní volbou pro rodiny s dětmi i pro osoby hledající bezbariérový přístup.
Klíčové vlastnosti bytu
Rekonstruované jádro a kuchyně: V roce 2000 prošel byt modernizací bytového jádra a instalací nové kuchyňské linky. Je ve velmi udržovaném stavu, připraven k nastěhování nebo drobným úpravám dle vašeho vkusu.
Nízké provozní náklady: Vytápění i ohřev vody jsou řešeny dálkově, což spolu se zateplením domu zajišťuje velmi úsporný provoz domácnosti.
Plastová okna: Samozřejmostí jsou kvalitní plastová okna, která skvěle izolují hluk i teplo.
Úložné prostory
K bytu náleží také praktická komora v mezipatře, kterou využijete pro uložení sezónních věcí, sportovního vybavení nebo jako příruční sklad.
Lokalita, kterou si zamilujete
Doubravka je vyhlášená svým klidem a zelení. Z Těšínské ulice máte vše na dosah.
Pro děti: Přímo za domem se nachází dětské hřiště, kde si děti mohou bezpečně hrát. Pár minut chůze vás dělí od oblíbeného Lobezského parku, ideálního pro procházky a sport.
Dostupnost: Zastávka trolejbusu je jen pár kroků od domu – v centru Plzně jste za 10 minut.
Služby: Nákupní centra, školy, školky a veškerá vybavenost Doubravky jsou v bezprostřední blízkosti.
Technologie: V domě je k dispozici vysokorychlostní internet.
Hledáte-li bydlení s nízkými náklady na skvělé adrese, tento byt je přesně pro vás. Neváhejte mě kontaktovat pro prohlídku. Těším se, až vám tento byt ukážu osobně!
Pomocí naší hypoteční kalkulačky si můžete udělat orientační představu o výši měsíčních splátek hypotéky. O vše ostatní se pak postaráme my ve spolupráci s našimi obchodními partnery.
21 134 Kč
* Odhadovaná měsíční splátka vychází z výše úvěru Kč s pevnou úrokovou sazbou % po celou dobu trvání úvěru.
Prodáváte nemovitost a potřebujete zjistit její reálnou hodnotu?
Uživatel serveru RealityMIX.cz (dále jen „Server“) dostupného na internetové adrese (URL) https://www.realitymix.cz, který provozuje společnost DALTEN media s.r.o., se sídlem Na Harfě 916/9a, Praha 9, 190 00, IČO: 271 35 306 (dále jen „Správce“) jako provozovateli tohoto Serveru uděluje svůj výslovný souhlas v souladu s ustanovením § 5 zákona č. 101/2000 Sb. O ochraně osobních údajů a o změně některých zákonů, v platném znění (dále jen „zákon o ochraně osobních údajů“), se zpracováním uživatelem poskytnutých osobních údajů a dalších dat.
Uživatel poskytuje Správci osobní údaje v rozsahu: jméno, příjmení, e-mailová adresa, telefonický kontakt a další data, a to z důvodu projeveného zájmu o nemovitost, kde prostřednictvím služby Serveru Správce osloví Uživatel inzerenta uvedeného v detailu
nemovitosti - REALITNÍ KANCELÁŘ PUBEC s.r.o. (IČ 26331004) se zájmem o jeho služby.
Uživatel tyto osobní údaje poskytuje dobrovolně a bere na vědomí, že součástí služeb Správce, které Správce Uživateli poskytuje, je vyhledání všech Uživateli vyhovujících (dle parametrů - cena, typ nemovitosti, lokalita atd.) nemovitostí. Správce za tímto účelem provozuje aplikace Hlídací pes a newsletter. Tyto služby je možné z každého zaslaného emailu odhlásit. Souhlas se zpracováním osobních údajů Uživatel poskytuje Správci na dobu neurčitou s tím, že svůj udělený souhlas může Uživatel kdykoliv na drese správce info@realitymix.cz odvolat. Správce garantuje Uživateli i další práva uvedené v ustanovení §11 a §21 zákoba č. 101/200 Sb. Ve znění pozdějších předpisů.
Více informací o zpracování údajů získáte zde (realitymix.cz/zasady-ochrany-osobnich-udaju)