Máme pro Vás připraven nový projekt pod názvem „Byty Na Okraji“.
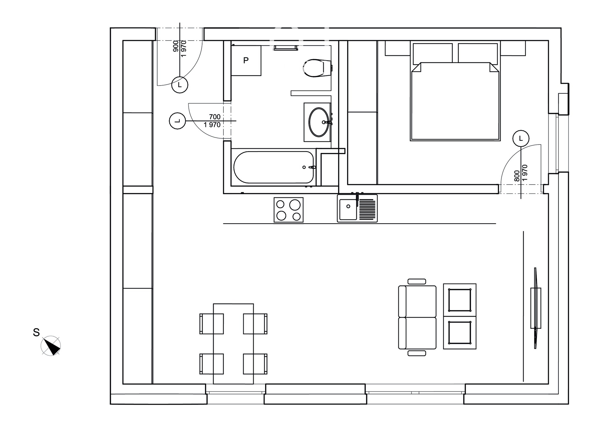
Předmětná jednotka 2kk o výměře 55 m2 se bude nacházet ve zvýšeném přízemí (okna ca 2 metry nad terénem) cihelného domu s výtahem. Orientace bytu - jih, vnitroblok.
Dům bude situován v lokalitě Předních Skvrňan a nabídne klidné místo spojené s dobrou dostupností centra města i nájezdu na páteřní infrastrukturu. Půjde o menší bytový dům zasazený do původní zástavby v ulici Na Okraji.
Složen bude výhradně z bytových jednotek. Půjde zejména o malometrážní byty (1kk, 2kk) s podlahovou plochou od cca 30 m2 až do 60 m2. V ceně bytu bude dokončení v daném standardu (bez kuchyňské linky a finálního osvětlení). Prezentované vizualizace se zařízením jsou pouze ilustrativní.
Bytový dům je projektován jako nízkoenergetický, energetická třída B. Náklady na Vaše nové bydlení budou velmi nízké, což jistě v budoucnosti oceníte. Vytápění bude řešeno dálkově (Plzeňská Teplárna). K tomuto konkrétnímu bytu lze ještě dokoupit garážové parkovací stání (není povinnost).
Výstavba zahájena, předpokládané dokončení červen 2027. Pro bližší informace mne neváhejte kontaktovat.
Pomocí naší hypoteční kalkulačky si můžete udělat orientační představu o výši měsíčních splátek hypotéky. O vše ostatní se pak postaráme my ve spolupráci s našimi obchodními partnery.
22 470 Kč
* Odhadovaná měsíční splátka vychází z výše úvěru Kč s pevnou úrokovou sazbou % po celou dobu trvání úvěru.
Prodáváte nemovitost a potřebujete zjistit její reálnou hodnotu?
Uživatel serveru RealityMIX.cz (dále jen „Server“) dostupného na internetové adrese (URL) https://www.realitymix.cz, který provozuje společnost DALTEN media s.r.o., se sídlem Na Harfě 916/9a, Praha 9, 190 00, IČO: 271 35 306 (dále jen „Správce“) jako provozovateli tohoto Serveru uděluje svůj výslovný souhlas v souladu s ustanovením § 5 zákona č. 101/2000 Sb. O ochraně osobních údajů a o změně některých zákonů, v platném znění (dále jen „zákon o ochraně osobních údajů“), se zpracováním uživatelem poskytnutých osobních údajů a dalších dat.
Uživatel poskytuje Správci osobní údaje v rozsahu: jméno, příjmení, e-mailová adresa, telefonický kontakt a další data, a to z důvodu projeveného zájmu o nemovitost, kde prostřednictvím služby Serveru Správce osloví Uživatel inzerenta uvedeného v detailu
nemovitosti - REALITNÍ KANCELÁŘ PUBEC s.r.o. (IČ 26331004) se zájmem o jeho služby.
Uživatel tyto osobní údaje poskytuje dobrovolně a bere na vědomí, že součástí služeb Správce, které Správce Uživateli poskytuje, je vyhledání všech Uživateli vyhovujících (dle parametrů - cena, typ nemovitosti, lokalita atd.) nemovitostí. Správce za tímto účelem provozuje aplikace Hlídací pes a newsletter. Tyto služby je možné z každého zaslaného emailu odhlásit. Souhlas se zpracováním osobních údajů Uživatel poskytuje Správci na dobu neurčitou s tím, že svůj udělený souhlas může Uživatel kdykoliv na drese správce info@realitymix.cz odvolat. Správce garantuje Uživateli i další práva uvedené v ustanovení §11 a §21 zákoba č. 101/200 Sb. Ve znění pozdějších předpisů.
Více informací o zpracování údajů získáte zde (realitymix.cz/zasady-ochrany-osobnich-udaju)