Máme pro Vás zajímavou nabídku obchodních, kancelářských, dílenských i skladových prostor včetně adekvátního zázemí a parkovacích ploch v rámci Plzně.
Co je konkrétně v domě na Skvrňanské ulici k dispozici naleznete v půdorysech a fotografiích. Stručně popisně:
1 NP (z ulice Skvrňanská): obchodní či kancelářské prostory s kuchyňskou a sociálním zázemím
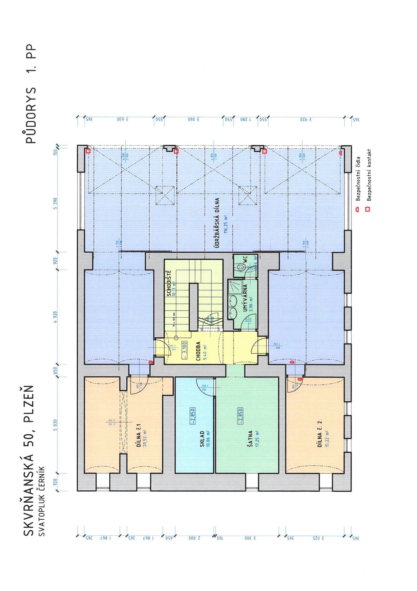
1 PP (příjezd z druhé strany Charvátovou ulicí): víceúčelové výrobní a skladové prostory (zkolaudováno jako dílna) se sprchou a sociálním zázemím
Obchodní a kancelářské prostory s celkovou výměrou 107 m2 sestávají vždy ze dvou místností situovaných zrcadlově po každé straně vstupní chodby - u jedné z kanceláří je k dispozici kuchyňka a sociální zařízení. Z obou prostor je vstup na větší vyvýšenou terasu 77 m2 orientovanou do vnitrobloku.
Suterénní prostory nabízejí 63 m2 sklepních skladových místností, sociální zařízení se sprchou a 116 m2 dílny, která nabízí tři široká rolovací vrata s výjezdem do dvora vnitrobloku, kde jsou k dispozici parkovací místa. Celkem je k dispozici až 8 parkovacích míst ve vnitrobloku a z hlavní ulice. Cena za stání - ca 1.000,- Kč.
Vytápění všech prostor zajišťuje plynový kotel, ohřev vody el. bojler a průtokový ohřívač.
Část výrobních a skladových prostor je aktuálně pronajatá, k dispozici bude od 1.6. Celé 1 NP + ca polovina 1 PP je k dispozici ihned.
Pro bližší informaci či domluvu prohlídky mne neváhejte kontaktovat.
Cena:
30 000 Kč / (za měsíc)
Poznámka:
+ DPH (v případě plátce), + režie (dohodou dle předmětu činnosti), + kauce, + parkování (dle počtu p
Uživatel serveru RealityMIX.cz (dále jen „Server“) dostupného na internetové adrese (URL) https://www.realitymix.cz, který provozuje společnost DALTEN media s.r.o., se sídlem Na Harfě 916/9a, Praha 9, 190 00, IČO: 271 35 306 (dále jen „Správce“) jako provozovateli tohoto Serveru uděluje svůj výslovný souhlas v souladu s ustanovením § 5 zákona č. 101/2000 Sb. O ochraně osobních údajů a o změně některých zákonů, v platném znění (dále jen „zákon o ochraně osobních údajů“), se zpracováním uživatelem poskytnutých osobních údajů a dalších dat.
Uživatel poskytuje Správci osobní údaje v rozsahu: jméno, příjmení, e-mailová adresa, telefonický kontakt a další data, a to z důvodu projeveného zájmu o nemovitost, kde prostřednictvím služby Serveru Správce osloví Uživatel inzerenta uvedeného v detailu
nemovitosti - REALITNÍ KANCELÁŘ PUBEC s.r.o. (IČ 26331004) se zájmem o jeho služby.
Uživatel tyto osobní údaje poskytuje dobrovolně a bere na vědomí, že součástí služeb Správce, které Správce Uživateli poskytuje, je vyhledání všech Uživateli vyhovujících (dle parametrů - cena, typ nemovitosti, lokalita atd.) nemovitostí. Správce za tímto účelem provozuje aplikace Hlídací pes a newsletter. Tyto služby je možné z každého zaslaného emailu odhlásit. Souhlas se zpracováním osobních údajů Uživatel poskytuje Správci na dobu neurčitou s tím, že svůj udělený souhlas může Uživatel kdykoliv na drese správce info@realitymix.cz odvolat. Správce garantuje Uživateli i další práva uvedené v ustanovení §11 a §21 zákoba č. 101/200 Sb. Ve znění pozdějších předpisů.
Více informací o zpracování údajů získáte zde (realitymix.cz/zasady-ochrany-osobnich-udaju)