Prodej investičního bytu 2+KK ve Vrchlického ulici v Plzni
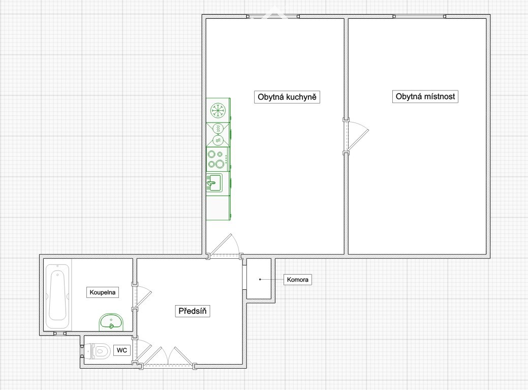
Nabízíme Vám ke koupi investiční byt o dispozici 2+KK a výměře 53,76 m2 ve Vrchlického ulici v Plzni. Byt je umístěný ve 4. patře zděného domu s výtahem. Dispozičně je byt rozdělený na vstupní předsíň s úložným prostorem, obývací pokoj s kuchyňským koutem, ložnici, koupelnu s vanou, samostatné WC a malou komoru. Byt je v původní stavu, koupelna a WC jsou zděné. Plastová okna jsou orientovaná západním směrem.
Bytový dům, ve kterém se byt nachází, prošel revitalizací zahrnující zateplení domu, novou fasádu, výtah, výměnu oken, stoupaček a další údržbu domu.
Byt se nachází v bezprostřední blízkosti Fakultní nemocnice Plzeň - Bory. Je vhodný jak pro investici, tak na klasické bydlení. Velkou výhodou je kompletní veškerá občanská vybavenost v blízkém okolí a skvělá dostupnost na MHD.
Koupi bytu je možné bez problému financovat hypotečním úvěrem, s jehož zajištěním Vám rádi pomůžeme. V případě dalších dotazů, nebo pokud budete mít zájem o prohlídku bytu, se neváhejte obrátit na našeho makléře Michala Maška.
Cena:
Rezervováno
Dispozice/podlahová plocha:
2+kk/53 m²
Číslo zakázky:
REALITYMIX-21348MA
Podrobné informace
Dispozice bytu:2+kk
Číslo podlaží v domě:5
Počet podlaží objektu:6
Celková podlahová plocha:53 m²
Druh objektu:cihlová
Stav objektu:dobrý
Vlastnictví:osobní
Sklep:6 m²
Umístění objektu:centrum obce
Doprava:vlak, MHD
Elektřina:Elektro - 230 V
Voda:Voda - dálkový vodovod
Telekomunikace:Internet
Plyn:Plynovod
Topení:Lokální - plynové
Odpad:Kanalizace
Ostatní rozvody:Kabelová televize
Energetická náročnost budovy:D - Méně úsporná
Ukazatel energetické náročnosti budovy:201 kWh/m²
Energetický ukazatel podle vyhlášky:č. 78/2013 Sb.
Uživatel serveru RealityMIX.cz (dále jen „Server“) dostupného na internetové adrese (URL) https://www.realitymix.cz, který provozuje společnost DALTEN media s.r.o., se sídlem Na Harfě 916/9a, Praha 9, 190 00, IČO: 271 35 306 (dále jen „Správce“) jako provozovateli tohoto Serveru uděluje svůj výslovný souhlas v souladu s ustanovením § 5 zákona č. 101/2000 Sb. O ochraně osobních údajů a o změně některých zákonů, v platném znění (dále jen „zákon o ochraně osobních údajů“), se zpracováním uživatelem poskytnutých osobních údajů a dalších dat.
Uživatel poskytuje Správci osobní údaje v rozsahu: jméno, příjmení, e-mailová adresa, telefonický kontakt a další data, a to z důvodu projeveného zájmu o nemovitost, kde prostřednictvím služby Serveru Správce osloví Uživatel inzerenta uvedeného v detailu
nemovitosti - REALITNÍ KANCELÁŘ PUBEC s.r.o. (IČ 26331004) se zájmem o jeho služby.
Uživatel tyto osobní údaje poskytuje dobrovolně a bere na vědomí, že součástí služeb Správce, které Správce Uživateli poskytuje, je vyhledání všech Uživateli vyhovujících (dle parametrů - cena, typ nemovitosti, lokalita atd.) nemovitostí. Správce za tímto účelem provozuje aplikace Hlídací pes a newsletter. Tyto služby je možné z každého zaslaného emailu odhlásit. Souhlas se zpracováním osobních údajů Uživatel poskytuje Správci na dobu neurčitou s tím, že svůj udělený souhlas může Uživatel kdykoliv na drese správce info@realitymix.cz odvolat. Správce garantuje Uživateli i další práva uvedené v ustanovení §11 a §21 zákoba č. 101/200 Sb. Ve znění pozdějších předpisů.
Více informací o zpracování údajů získáte zde (realitymix.cz/zasady-ochrany-osobnich-udaju)