Popis nemovitosti
Na první pohled nenápadný, ovšem uvnitř nabízí velkorysý prostor pro pohodlné bydlení s veškerým komfortem, který si umíte představit. Takový je rodinný dům v Plzni – Černicích, v jedinečné lokalitě v sousedství podobných rodinných domů, nedaleko řeky Úhlavy a přitom v dosahu městské dopravy a ruchu velkoměsta.
Podívejte se ve fotodokumentaci na video nahrávku a fotografie domu.
Informace k domu
Dům byl postaven před 25 lety, tedy je v nejlepším věku. Jedná se o kvalitní stavbu, ve své době v nadstandardních parametrech. Kvalitu stavby ovšem oceníme i dnes.
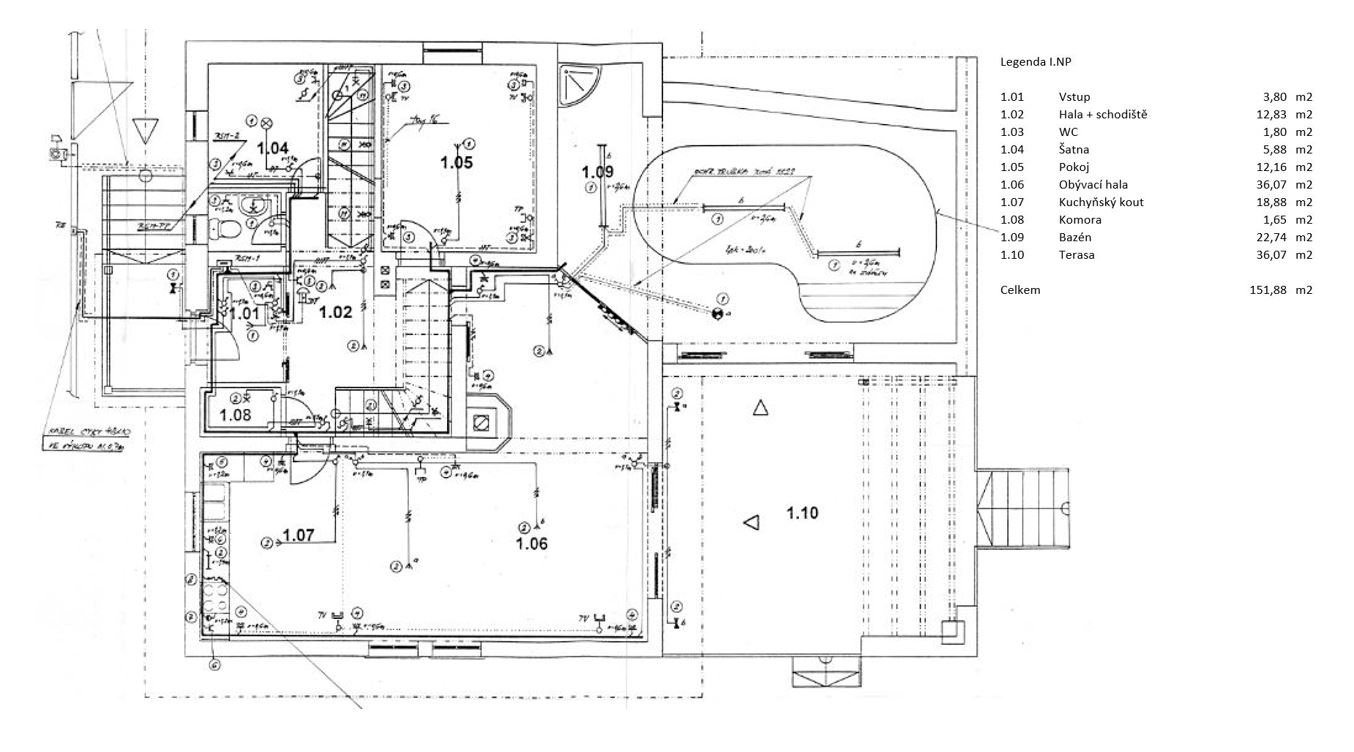
Hlavní obytný prostor začíná prostornou vstupní halou, jejímž hlavním prvkem je točité schodiště s kovaným zábradlím.
V této části domu se dále nachází šatna, koupelna s WC a pokoj, který sloužil jako pracovna. Obývací část dále pokračuje kuchyňským koutem s plně vybavenou kuchyňskou linkou.
Krbová kamna nejen pro dlouhé zimní večery dodávají obývacímu prostoru nádech příjemné domácí atmosféry. Navazující prostor bazénu za prosklenými dveřmi je pak už jen třešinkou na dortu. Z bazénu můžete pohodlně vstoupit na terasu, přičemž zde máte naprosté soukromí. Privátní prostory domu jsou důmyslně ukryty před zvědavými zraky sousedů i kolemjdoucích.
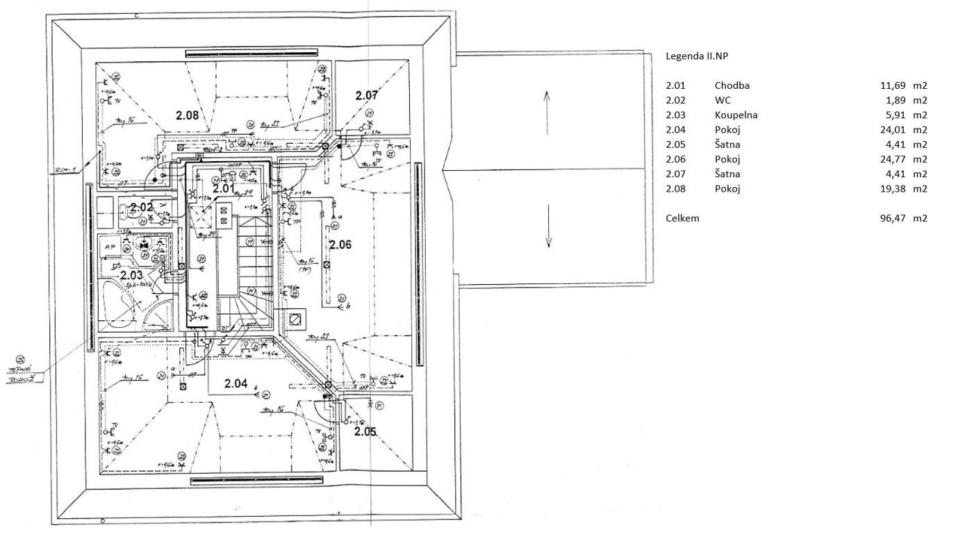
V prvním patře domu jsou 3 ložnice, koupelna s vanou a sprchovým koutem a samostatné WC. Z každého pokoje si můžete užít nádherný výhled do okolí.
Přízemí domu pak je věnováno výhradně technickému zázemí domu, je zde sklep, garáž pro dvě auta, technická místnost s plynovým kotlem, prostor pro skladování dřeva do krbu, a další prostory, které lze využít dle libosti příštího majitele.
Vytápění domu a teplou vodu zajišťuje plynový kotel.
Na střeše jsou umístěny solární panely, které vyrábějí energii nejen pro potřeby domu, ale energie je rovněž na základě platné smlouvy vykupována státním operátorem trhu s elektřinou OTE, což ve výsledku znamená, že výnosy z takto vyrobené energie pokryjí náklady domu na spotřebu, ale přináší i menší zisk. Smlouva je platná do roku 2029.
Celková podlahová plocha obytných místností tvoří 340m2.
Z toho technické zázemí představuje 96m2.
Celková plocha zahrady činí 349m2.
Pozemek celkem včetně zastavěných ploch a nádvoří tvoří 551m2.
Blízké okolí
Dům leží v klidné části Plzně ve čtvrti Bručná. Veškerá občanská vybavenost je dostupná trolejbusy MHD, které vás pohodlně dovezou až do centra města.
Základní i mateřské školy jsou vzdálené několik minut pěší chůze. Pohodlně se dopravíte i MHD.
Nedaleko je nákupní centrum Olympia, poliklinika Slovany, park Homolka, kavárny, restaurace i zařízení sportovního vyžití.
Procházky kolem nedaleké řeky Úhlavy jsou samozřejmostí.
Pro koupi zajistím kompletní realitní a právní servis a výhodné financování hypotečním úvěrem.
Zavolejte mi, nebo napište, domluvíme si prohlídku, nemovitost Vám ráda ukážu.
Pomocí naší hypoteční kalkulačky si můžete udělat orientační představu o výši měsíčních splátek hypotéky. O vše ostatní se pak postaráme my ve spolupráci s našimi obchodními partnery.
73 282 Kč
* Odhadovaná měsíční splátka vychází z výše úvěru Kč s pevnou úrokovou sazbou % po celou dobu trvání úvěru.
Uživatel serveru RealityMIX.cz (dále jen „Server“) dostupného na internetové adrese (URL) https://www.realitymix.cz, který provozuje společnost DALTEN media s.r.o., se sídlem Na Harfě 916/9a, Praha 9, 190 00, IČO: 271 35 306 (dále jen „Správce“) jako provozovateli tohoto Serveru uděluje svůj výslovný souhlas v souladu s ustanovením § 5 zákona č. 101/2000 Sb. O ochraně osobních údajů a o změně některých zákonů, v platném znění (dále jen „zákon o ochraně osobních údajů“), se zpracováním uživatelem poskytnutých osobních údajů a dalších dat.
Uživatel poskytuje Správci osobní údaje v rozsahu: jméno, příjmení, e-mailová adresa, telefonický kontakt a další data, a to z důvodu projeveného zájmu o nemovitost, kde prostřednictvím služby Serveru Správce osloví Uživatel inzerenta uvedeného v detailu
nemovitosti - WOW Reality s.r.o. (IČ 06442463) se zájmem o jeho služby.
Uživatel tyto osobní údaje poskytuje dobrovolně a bere na vědomí, že součástí služeb Správce, které Správce Uživateli poskytuje, je vyhledání všech Uživateli vyhovujících (dle parametrů - cena, typ nemovitosti, lokalita atd.) nemovitostí. Správce za tímto účelem provozuje aplikace Hlídací pes a newsletter. Tyto služby je možné z každého zaslaného emailu odhlásit. Souhlas se zpracováním osobních údajů Uživatel poskytuje Správci na dobu neurčitou s tím, že svůj udělený souhlas může Uživatel kdykoliv na drese správce info@realitymix.cz odvolat. Správce garantuje Uživateli i další práva uvedené v ustanovení §11 a §21 zákoba č. 101/200 Sb. Ve znění pozdějších předpisů.
Více informací o zpracování údajů získáte zde (realitymix.cz/zasady-ochrany-osobnich-udaju)