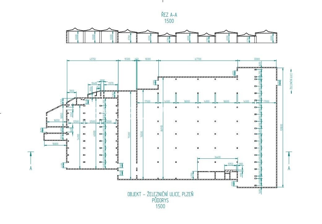
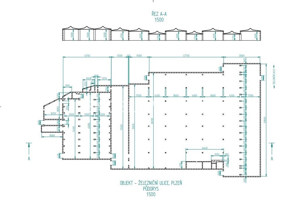
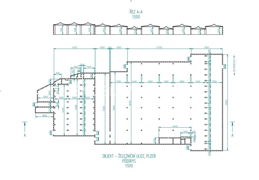
Pronájem velkokapacitního skladu 2 521 m2, Plzeň-Východní Předměstí
K dlouhodobému pronájmu nabízíme skladové haly v Železniční ulici o velikosti 2 521 m2. Unikátní prostory s možností pronájmu až 14 528 m2. Přístup k halám 24/7/365. Areál je střežený kamerovým systémem, HLS a je oplocený. Nově vybudované sociální zařízení. Světlá výška je 10 m a výška vjezdu 4,9 m. Areál je dobře dostupný i pro nákladní auta. Velkou výhodou je i lokalita, která je dobře dostupná a blízko centra. Využijte jedinečnou příležitost pronájmu skladových prostor v blízkosti centra. V případě zájmu nás neváhejte kontaktovat pro více informací nebo pro prohlídku prostoru.
K dispozici jsou dva dieselové vysokozdvižné vozíky značky Linde a vysokorychlostní internet.
Uživatel serveru RealityMIX.cz (dále jen „Server“) dostupného na internetové adrese (URL) https://www.realitymix.cz, který provozuje společnost DALTEN media s.r.o., se sídlem Na Harfě 916/9a, Praha 9, 190 00, IČO: 271 35 306 (dále jen „Správce“) jako provozovateli tohoto Serveru uděluje svůj výslovný souhlas v souladu s ustanovením § 5 zákona č. 101/2000 Sb. O ochraně osobních údajů a o změně některých zákonů, v platném znění (dále jen „zákon o ochraně osobních údajů“), se zpracováním uživatelem poskytnutých osobních údajů a dalších dat.
Uživatel poskytuje Správci osobní údaje v rozsahu: jméno, příjmení, e-mailová adresa, telefonický kontakt a další data, a to z důvodu projeveného zájmu o nemovitost, kde prostřednictvím služby Serveru Správce osloví Uživatel inzerenta uvedeného v detailu
nemovitosti - ENGEL & VÖLKERS (IČ 27533328) se zájmem o jeho služby.
Uživatel tyto osobní údaje poskytuje dobrovolně a bere na vědomí, že součástí služeb Správce, které Správce Uživateli poskytuje, je vyhledání všech Uživateli vyhovujících (dle parametrů - cena, typ nemovitosti, lokalita atd.) nemovitostí. Správce za tímto účelem provozuje aplikace Hlídací pes a newsletter. Tyto služby je možné z každého zaslaného emailu odhlásit. Souhlas se zpracováním osobních údajů Uživatel poskytuje Správci na dobu neurčitou s tím, že svůj udělený souhlas může Uživatel kdykoliv na drese správce info@realitymix.cz odvolat. Správce garantuje Uživateli i další práva uvedené v ustanovení §11 a §21 zákoba č. 101/200 Sb. Ve znění pozdějších předpisů.
Více informací o zpracování údajů získáte zde (realitymix.cz/zasady-ochrany-osobnich-udaju)