Prodej stavebního pozemku 1 000 m², s možností realizaci moderního rodinného domu 4+kk – Podbořany
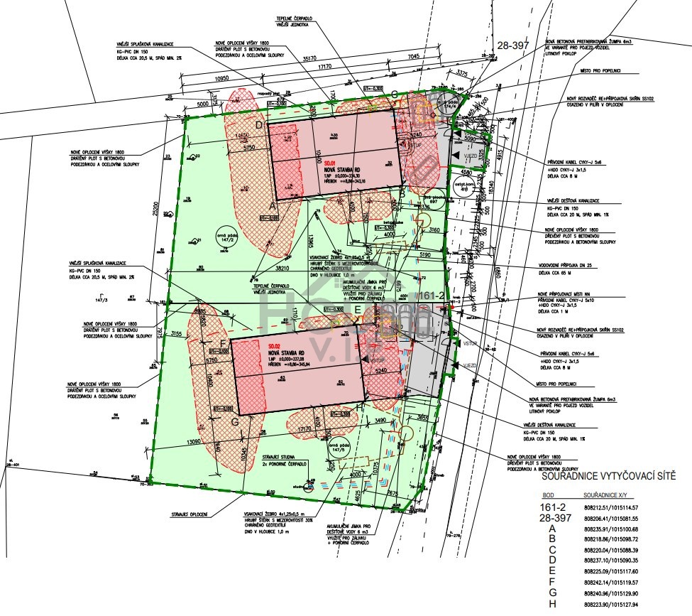
Nabízíme k prodeji slunný stavební pozemek o výměře 1 000 m² v klidné části obce Podbořany s krásným výhledem do zeleně. Součástí prodeje je projekt moderního rodinného domu 4+kk o užitné ploše 194 m², jehož realizace může být provedena přímo současným vlastníkem pozemku – stavební firmou s dlouholetou zkušeností v oboru. Schválení stavebního povolení očekáváme začátkem roku 2026.
Podmínka koupě:
Realizace stavby může být provedena vlastníkem pozemku s rozsáhlými zkušenostmi s výstavbou podobných projektů, který zajistí kompletní výstavbu od základů až po dokončení, dle domluveného rozsahu a standardu. Je také možné koupit pozemek ihned s hotovým projektem za uvedenou cenu a realizovat projekt svépomocí.
Cena zahrnuje: pozemek 1 000 m², stavební povolení s projektem a přípojky na inženýrské sítě.
Za příplatek je realizace hrubé stavby (základy, nosné konstrukce, střecha, zateplení, okna, dveře, schodiště) + možnost dokončení na klíč dle vizualizace nebo individuálních požadavků.
Hlavní parametry plánované stavby:
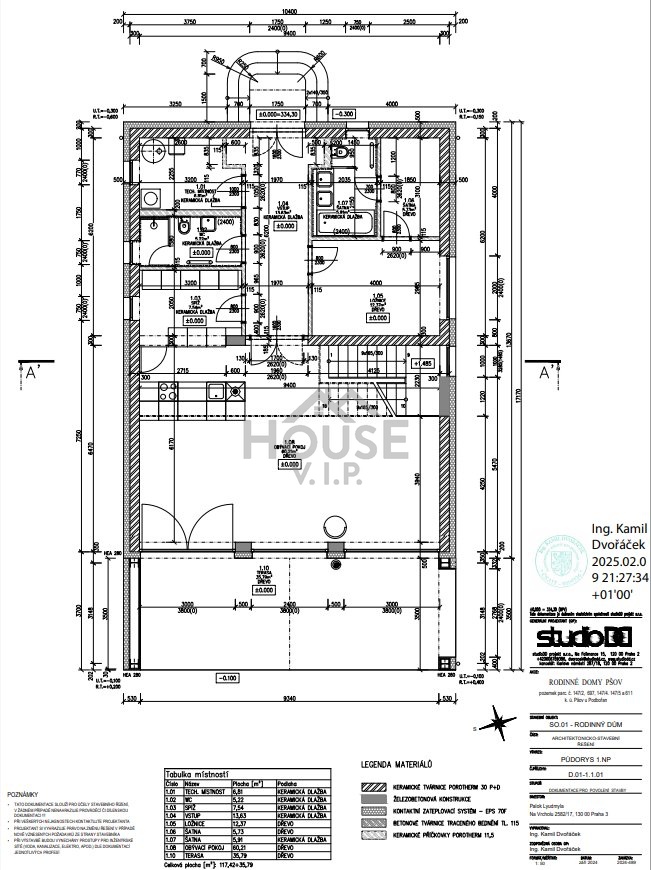
Zastavěná plocha: 178,57 m².
Podlahová plocha: 194,25 m².
• 1. NP: 117,42 m² + terasa 35,79 m².
• 2. NP: 76,83 m².
Výška stavby: 8,86 m.
Lokalita: tichá část obce, 350 m od zastávky autobusu směr Žatec.
Plná občanská vybavenost v Podbořanech, dobrá dostupnost do větších měst.
Projekt domu navržen s důrazem na kvalitu materiálů, energetickou úspornost a komfortní bydlení.
Bonus: na prodej je také sousední pozemek o stejné výměře 1 000 m² se stejnou možností realizace.
Konstrukce: dutinové keramické tvárnice, železobetonový monolitický strop (250 mm).
Vytápění: tepelné čerpadlo + krbová vložka.
Další technologie: fotovoltaika, domovní ČOV, přípojka vody ze stávající studny.
Energetická náročnost:
Plánovaný PENB třídy "A" – nízkoenergetický až pasivní dům s velmi nízkými provozními náklady.
Pokud hledáte krásný pozemek s jistotou profesionální a kvalitní realizace moderní stavby, tato nabídka je ideální kombinací investice a budoucího komfortního bydlení.
Pomocí naší hypoteční kalkulačky si můžete udělat orientační představu o výši měsíčních splátek hypotéky. O vše ostatní se pak postaráme my ve spolupráci s našimi obchodními partnery.
6 842 Kč
* Odhadovaná měsíční splátka vychází z výše úvěru Kč s pevnou úrokovou sazbou % po celou dobu trvání úvěru.
Uživatel serveru RealityMIX.cz (dále jen „Server“) dostupného na internetové adrese (URL) https://www.realitymix.cz, který provozuje společnost DALTEN media s.r.o., se sídlem Na Harfě 916/9a, Praha 9, 190 00, IČO: 271 35 306 (dále jen „Správce“) jako provozovateli tohoto Serveru uděluje svůj výslovný souhlas v souladu s ustanovením § 5 zákona č. 101/2000 Sb. O ochraně osobních údajů a o změně některých zákonů, v platném znění (dále jen „zákon o ochraně osobních údajů“), se zpracováním uživatelem poskytnutých osobních údajů a dalších dat.
Uživatel poskytuje Správci osobní údaje v rozsahu: jméno, příjmení, e-mailová adresa, telefonický kontakt a další data, a to z důvodu projeveného zájmu o nemovitost, kde prostřednictvím služby Serveru Správce osloví Uživatel inzerenta uvedeného v detailu
nemovitosti - House ViP, s.r.o. (IČ 06880754) se zájmem o jeho služby.
Uživatel tyto osobní údaje poskytuje dobrovolně a bere na vědomí, že součástí služeb Správce, které Správce Uživateli poskytuje, je vyhledání všech Uživateli vyhovujících (dle parametrů - cena, typ nemovitosti, lokalita atd.) nemovitostí. Správce za tímto účelem provozuje aplikace Hlídací pes a newsletter. Tyto služby je možné z každého zaslaného emailu odhlásit. Souhlas se zpracováním osobních údajů Uživatel poskytuje Správci na dobu neurčitou s tím, že svůj udělený souhlas může Uživatel kdykoliv na drese správce info@realitymix.cz odvolat. Správce garantuje Uživateli i další práva uvedené v ustanovení §11 a §21 zákoba č. 101/200 Sb. Ve znění pozdějších předpisů.
Více informací o zpracování údajů získáte zde (realitymix.cz/zasady-ochrany-osobnich-udaju)