Nabízíme k prodeji zajímavou nemovitost v obci Pozořice – dva rodinné domy se samostatnými čísly popisnými, které jsou stavebně propojeny a v současnosti tvoří jeden funkční celek. Nemovitost nabízí velmi variabilní využití – ideální například pro vícegenerační bydlení nebo kombinaci vlastního bydlení s pronájmem části domu.
Dům je situován ve svahu nad úrovní komunikace, což zajišťuje větší soukromí a zároveň příjemné výhledy do okolí.
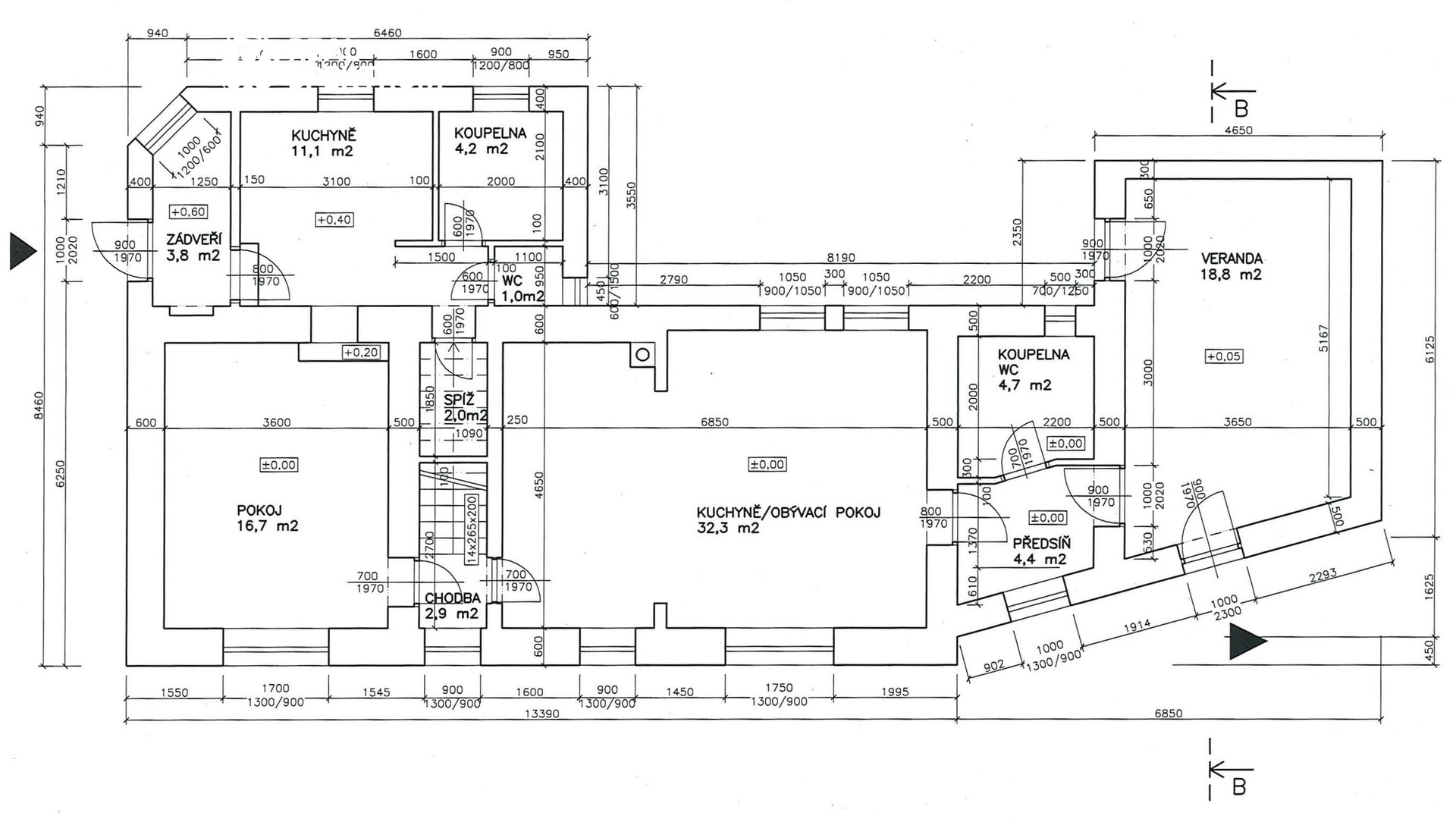
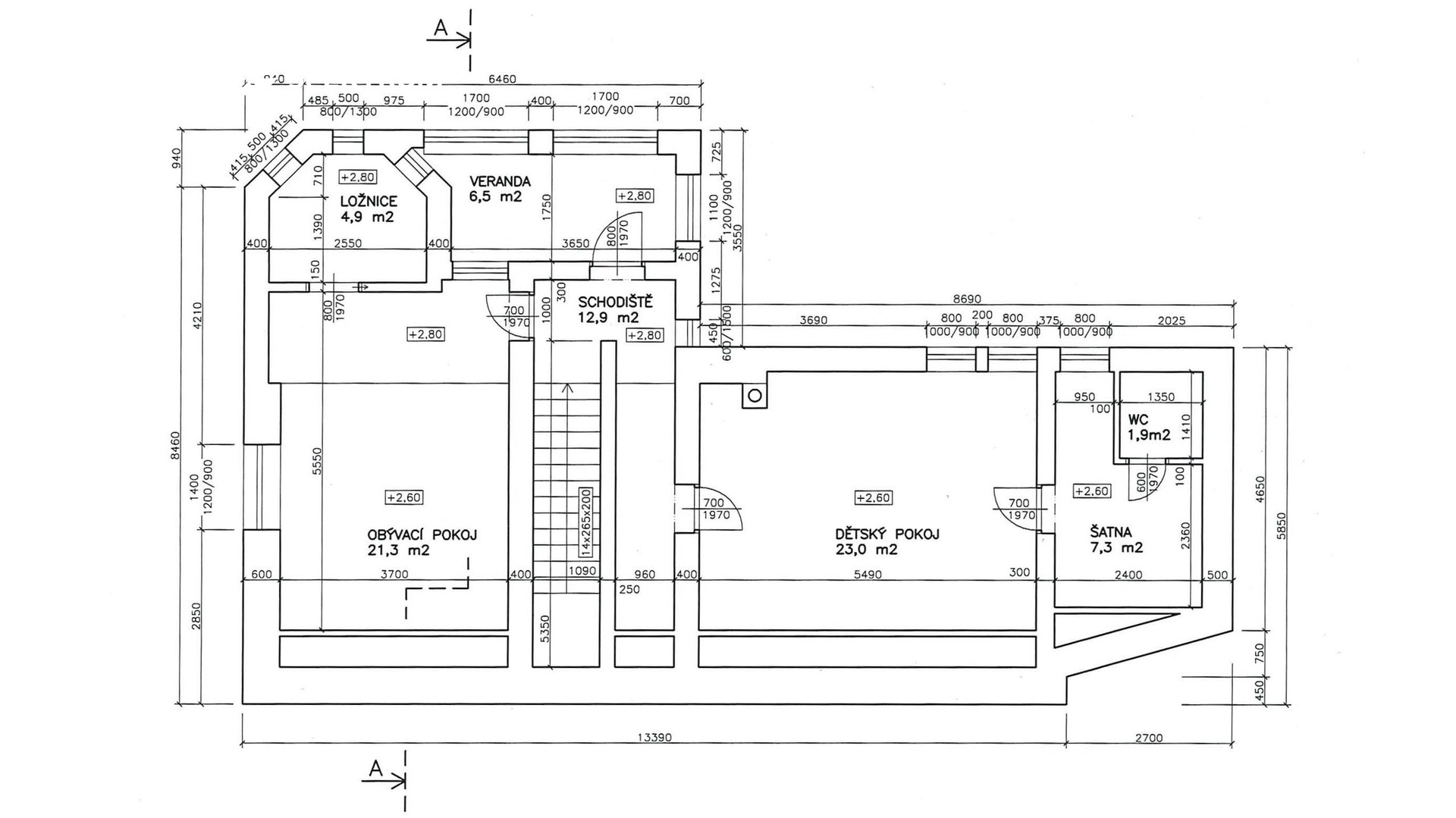
Nemovitost je v dobrém stavebně-technickém stavu a od konce 90. let prošla postupnou modernizací. Bylo provedeno zateplení domu, nové izolace a kompletní výměna elektroinstalace do mědi. Konstrukčně se jedná o smíšené zdivo. Vytápění je zajištěno vlastním plynovým kotlem.
Dispozičně je dům rozdělen na dvě samostatné bytové jednotky:
1+1
3+kk se zimní zahradou
Celková užitná plocha domu je přibližně 175 m².
K domu náleží pozemek o celkové výměře 596 m², jehož součástí je také zahrada o výměře 400 m². Na zahradě se nachází kulna a prostorný skleník, které ocení zejména zájemci o pěstování nebo zahradničení.
Obec Pozořice nabízí příjemné bydlení v blízkosti přírody a zároveň dobrou dostupnost do Brna. V obci je k dispozici základní občanská vybavenost – mateřská a základní škola, obchody, restaurace, lékař i sportovní zázemí.
Díky kombinaci dvou čísel popisných, dvou bytových jednotek, zahrady a solidního technického stavu představuje tato nemovitost zajímavou příležitost jak pro rodinné bydlení, tak i pro investici.
Pro více informací nebo domluvení prohlídky mě neváhejte kontaktovat.
Pomocí naší hypoteční kalkulačky si můžete udělat orientační představu o výši měsíčních splátek hypotéky. O vše ostatní se pak postaráme my ve spolupráci s našimi obchodními partnery.
33 159 Kč
* Odhadovaná měsíční splátka vychází z výše úvěru Kč s pevnou úrokovou sazbou % po celou dobu trvání úvěru.
Uživatel serveru RealityMIX.cz (dále jen „Server“) dostupného na internetové adrese (URL) https://www.realitymix.cz, který provozuje společnost DALTEN media s.r.o., se sídlem Na Harfě 916/9a, Praha 9, 190 00, IČO: 271 35 306 (dále jen „Správce“) jako provozovateli tohoto Serveru uděluje svůj výslovný souhlas v souladu s ustanovením § 5 zákona č. 101/2000 Sb. O ochraně osobních údajů a o změně některých zákonů, v platném znění (dále jen „zákon o ochraně osobních údajů“), se zpracováním uživatelem poskytnutých osobních údajů a dalších dat.
Uživatel poskytuje Správci osobní údaje v rozsahu: jméno, příjmení, e-mailová adresa, telefonický kontakt a další data, a to z důvodu projeveného zájmu o nemovitost, kde prostřednictvím služby Serveru Správce osloví Uživatel inzerenta uvedeného v detailu
nemovitosti - REAL SPEKTRUM, a.s. (IČ 25314718) se zájmem o jeho služby.
Uživatel tyto osobní údaje poskytuje dobrovolně a bere na vědomí, že součástí služeb Správce, které Správce Uživateli poskytuje, je vyhledání všech Uživateli vyhovujících (dle parametrů - cena, typ nemovitosti, lokalita atd.) nemovitostí. Správce za tímto účelem provozuje aplikace Hlídací pes a newsletter. Tyto služby je možné z každého zaslaného emailu odhlásit. Souhlas se zpracováním osobních údajů Uživatel poskytuje Správci na dobu neurčitou s tím, že svůj udělený souhlas může Uživatel kdykoliv na drese správce info@realitymix.cz odvolat. Správce garantuje Uživateli i další práva uvedené v ustanovení §11 a §21 zákoba č. 101/200 Sb. Ve znění pozdějších předpisů.
Více informací o zpracování údajů získáte zde (realitymix.cz/zasady-ochrany-osobnich-udaju)