Hledáte nemovitost, která se nezastaví před ničím? V prestižní Mánesově ulici, přímo v srdci pražských Vinohrad, nabízíme unikátní investiční koncept, který kombinuje luxusní bydlení
s dravým obchodním potenciálem.
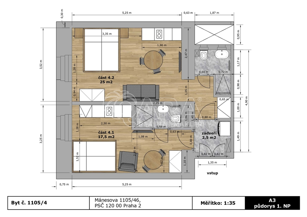
Tento atypický prostor o rozloze 45 m² prošel kompletní, nákladnou rekonstrukcí a inteligentním rozdělením na dvě plně nezávislá, designová studia. Zapomeňte na běžné byty – toto je "výnosový stroj" připravený k okamžitému provozu.
Investiční DNA: Maximální výkon a flexibilita
Tento byt je navržen pro investory, kteří rozumí moderním trendům (Airbnb, Booking, firemní pronájmy):
Rekordní výnos: Roční doložitelný příjem z nájmů za obě studia je 1 006 000 Kč.
V nejsilnějších měsících dokázala jednotka (obě studia dohromady) vygenerovat příjem až 150 000 Kč.
Efektivita 2 v 1: Rozdělení na dvě studia (17,5 m² a 25 m²) zvyšuje tržní nájemné o 20–30 % oproti standardnímu bytu 2+kk.
Bezstarostný start: Byt lze převzít se zavedenou správou a kalendářem obsazeným až do října 2026. Vy jen inkasujete.
Strategická pojistka: Pokud preferujete stabilitu, dvě nezávislé jednotky minimalizují riziko výpadku příjmu při dlouhodobém pronájmu.
Design & Standardy (vybavení za 1,3 mil. Kč v ceně)
Nekupujete jen metry čtvereční, ale kompletní produkt "na klíč". Interiér byl navržen s důrazem na vysokou odolnost a estetiku:
Komplet vybaveno: Nábytek na míru, dvě špičkové kuchyňské linky a designové koupelny.
Chytré řešení: Společná chodba (2,5 m²) se servisní zónou (pračka, sušička) odděluje soukromí obou studií.
Historický genius loci: Vysoké stropy, zachované historické prvky domu a moderní technologie v dokonalé symbióze.
Lokalita, která nezná slovo "pokles"
Mánesova ulice je synonymem pro prémiové pražské bydlení.
Pár kroků: Riegrovy sady a náměstí Jiřího z Poděbrad (vyhlášené trhy a gastro scéna). Stanice tramvají a metra Náměstí Míru, Jiřího z Poděbrad a Muzeum jsou kousek od bytu.
Status: Adresa, která je magnetem pro bonitní klientelu, digitální nomády i management firem.
Technické parametry:
Plocha: 45 m² (rozděleno na 17,5 m², 25 m² a 2,5 m² chodbu).
Podlaží: Přízemí s okny do ulice (ideální pro rychlý check-in/check-out hostů).
Náklady: Velmi nízké měsíční poplatky (2 640 Kč + elektřina).
Právní stav: Osobní vlastnictví, kolaudováno jako byt (bezproblémové financování hypotékou).
Tato nemovitost je určena pro vizionáře, kteří nehledají průměr, ale chtějí vlastnit unikát v nejžádanější části Prahy.
Prohlídky realizujeme i o víkendech. Přijďte se podívat, jak vypadá investice, která dává smysl od prvního dne.
Pomocí naší hypoteční kalkulačky si můžete udělat orientační představu o výši měsíčních splátek hypotéky. O vše ostatní se pak postaráme my ve spolupráci s našimi obchodními partnery.
45 224 Kč
* Odhadovaná měsíční splátka vychází z výše úvěru Kč s pevnou úrokovou sazbou % po celou dobu trvání úvěru.
Prodáváte nemovitost a potřebujete zjistit její reálnou hodnotu?
Uživatel serveru RealityMIX.cz (dále jen „Server“) dostupného na internetové adrese (URL) https://www.realitymix.cz, který provozuje společnost DALTEN media s.r.o., se sídlem Na Harfě 916/9a, Praha 9, 190 00, IČO: 271 35 306 (dále jen „Správce“) jako provozovateli tohoto Serveru uděluje svůj výslovný souhlas v souladu s ustanovením § 5 zákona č. 101/2000 Sb. O ochraně osobních údajů a o změně některých zákonů, v platném znění (dále jen „zákon o ochraně osobních údajů“), se zpracováním uživatelem poskytnutých osobních údajů a dalších dat.
Uživatel poskytuje Správci osobní údaje v rozsahu: jméno, příjmení, e-mailová adresa, telefonický kontakt a další data, a to z důvodu projeveného zájmu o nemovitost, kde prostřednictvím služby Serveru Správce osloví Uživatel inzerenta uvedeného v detailu
nemovitosti - QARA s.r.o. (IČ 01740113) se zájmem o jeho služby. Tato společnost je součástí seskupení/sítě/franšízového modelu realitních kanceláří, jejich seznam můžete zobrazit kliknutím na tento odkaz.
QARA s.r.o. Ostrava (IČ 01740113) , QARA s.r.o. Brno (IČ 01740113) , QARA s.r.o. (IČ 01740113)
Uživatel tyto osobní údaje poskytuje dobrovolně a bere na vědomí, že součástí služeb Správce, které Správce Uživateli poskytuje, je vyhledání všech Uživateli vyhovujících (dle parametrů - cena, typ nemovitosti, lokalita atd.) nemovitostí. Správce za tímto účelem provozuje aplikace Hlídací pes a newsletter. Tyto služby je možné z každého zaslaného emailu odhlásit. Souhlas se zpracováním osobních údajů Uživatel poskytuje Správci na dobu neurčitou s tím, že svůj udělený souhlas může Uživatel kdykoliv na drese správce info@realitymix.cz odvolat. Správce garantuje Uživateli i další práva uvedené v ustanovení §11 a §21 zákoba č. 101/200 Sb. Ve znění pozdějších předpisů.
Více informací o zpracování údajů získáte zde (realitymix.cz/zasady-ochrany-osobnich-udaju)