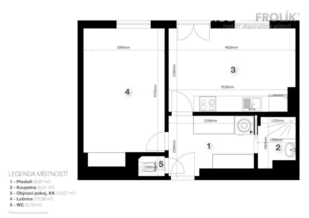
Tenhle byt si rozhodně nenechte ujít! Precizně a vkusně zrekonstruovaný, do detailu promyšlený! To je byt 2+kk, o výměře cca 40 m2, v 1. patře dobře udržovaného cihlového domu bez výtahu, v ulici Velvarská v Praze 6 - Dejvicích.
Budete to mít kousek na metro Dejvická, za nákupy i za společenským vyžitím. Francouzské okno Vám přinese kousek přírody i domů, protože budete mít výhled do pěkného parku. A před domem Vás bude každý den vítat pěkná zahrádka s posezením.
Dům bude v budoucích letech ještě vylepšený - plánuje se nová fasáda, okna, kotelna.
V bytě je využitý každý kousek plochy. Kuchyňský kout v sobě skrývá vestavěné spotřebiče (indukční varná deska, elektrická trouba, digestoř, myčka, lednice s mrazákem). Před kuchyní je místo na malý gauč a TV, u francouzského okna na jídelní stolek, případně i s osvětlením nad ním. V ložnici je šatní skříň ve zdi. Další velké skříně jsou v chodbě. V jedné z nich se skrývá i elektrický bojler na ohřev teplé vody. Topení je v domě centrální, z plynové kotelny v suterénu. Radiátory budete mít i v chodbě a koupelně. Koupelna má okno do velkého světlíku, takže byt se dá krásně větrat. Prádlo si usušíte v sušičce. Vstupní dveře do bytu jsou bezpečnostní, okna plastová s dvojskly a žaluziemi. V suterénu domu budete mít i sklípek a vedle domu pěkné společné posezení.
Kromě nájemného budete platit zálohu na domovní služby (voda, topení, úklid, odpad) 2.900 Kč/měs. + elektřinu (odhad 2.000 Kč). Ta bude napsaná na Vás. Platba nájemného a záloh bude vždy na 1 měsíc předem, jistota je 2 nájmy, provize 1 nájem.
Ještě váháte? Přijďte se co nejdříve podívat osobně, protože byt je ve skutečnosti ještě hezčí, než na fotkách! A věřím tomu, že Vás nadchne!
Byt je připravený k okamžitému nastěhování.
PENB není zpracované, podle zákona tedy musím uvádět třídu G.
Cena:
25 000 Kč / (za měsíc)
Poznámka:
+ poplatky
Datum k nastěhování:
22.04.2026
Dispozice/podlahová plocha:
2+kk/40 m²
Číslo zakázky:
REALITYMIX-0581
Podrobné informace
Dispozice bytu:2+kk
Číslo podlaží v domě:2
Počet podlaží objektu:5
Užitná plocha:40 m²
Celková podlahová plocha:40 m²
Druh objektu:cihlová
Stav objektu:po rekonstrukci
Vlastnictví:osobní
Sklep:2 m²
Umístění objektu:rušná část obce
Doprava:vlak, silnice, MHD, autobus
Elektřina:Elektro - 230 V
Voda:Voda - dálkový vodovod
Telekomunikace:Telefon, Internet
Plyn:Plynovod
Odpad:Kanalizace
Ostatní rozvody:Kabelová televize, Kabelové rozvody
Uživatel serveru RealityMIX.cz (dále jen „Server“) dostupného na internetové adrese (URL) https://www.realitymix.cz, který provozuje společnost DALTEN media s.r.o., se sídlem Na Harfě 916/9a, Praha 9, 190 00, IČO: 271 35 306 (dále jen „Správce“) jako provozovateli tohoto Serveru uděluje svůj výslovný souhlas v souladu s ustanovením § 5 zákona č. 101/2000 Sb. O ochraně osobních údajů a o změně některých zákonů, v platném znění (dále jen „zákon o ochraně osobních údajů“), se zpracováním uživatelem poskytnutých osobních údajů a dalších dat.
Uživatel poskytuje Správci osobní údaje v rozsahu: jméno, příjmení, e-mailová adresa, telefonický kontakt a další data, a to z důvodu projeveného zájmu o nemovitost, kde prostřednictvím služby Serveru Správce osloví Uživatel inzerenta uvedeného v detailu
nemovitosti - Reality FROLÍK | privátní realitní makléř (IČ 04557191) se zájmem o jeho služby.
Uživatel tyto osobní údaje poskytuje dobrovolně a bere na vědomí, že součástí služeb Správce, které Správce Uživateli poskytuje, je vyhledání všech Uživateli vyhovujících (dle parametrů - cena, typ nemovitosti, lokalita atd.) nemovitostí. Správce za tímto účelem provozuje aplikace Hlídací pes a newsletter. Tyto služby je možné z každého zaslaného emailu odhlásit. Souhlas se zpracováním osobních údajů Uživatel poskytuje Správci na dobu neurčitou s tím, že svůj udělený souhlas může Uživatel kdykoliv na drese správce info@realitymix.cz odvolat. Správce garantuje Uživateli i další práva uvedené v ustanovení §11 a §21 zákoba č. 101/200 Sb. Ve znění pozdějších předpisů.
Více informací o zpracování údajů získáte zde (realitymix.cz/zasady-ochrany-osobnich-udaju)