Mezi stanicemi metra Střížkov a Ládví, na adrese Červenkova 526/4, Praha 8 - Střížkov, nabízíme panelový byt 1+1 s podlahovou plochou 33,8 m2 v 7. patře (posledním). Byt je s původním umakartovým jádrem. Orientace oken pokoje i kuchyně na jihovýchod.
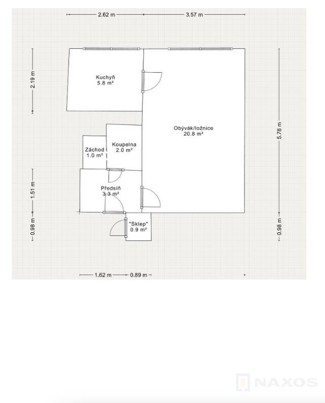
Výměry místností bytové jednotky č. 526/22 (podle Prohlášení vlastníka): pokoj 20,71 m2, kuchyně 5,68 m2, předsíň 3,42 m2, koupelna 2 m2, WC 0,97 m2, komora 1,01 m2 (umístěná na stejném patře hned vedle bytu). Byt je vyklizen a připraven k případné rekonstrukci.
Byt má plastová okna. Stoupačky vody jsou v plastu, odpadu původní, vnitřní rozvody elektřiny původní, elektroměr je vypojen, ale nainstalován. Plyn zaveden pouze pro vaření, ale plynoměr je odebrán. Byt využívá společný velký balkón na patře s možností sušení prádla. Zároveň má k dispozici společnou kolárnu/kočárkárnu v přízemí domu.
Panelový dům má 8 nadzemních podlaží, byt se nachází v 8. nadzemním podlaží (7. patro). Dům má zateplenou fasádu, zateplenou střechu po rekonstrukci i společné prostory po rekonstrukci, repasovaný výtah. Před domem je velkokapacitní parkoviště. PENB domu = C.
Předpis měsíčních zálohových plateb pro SVJ je nyní 2.250,- Kč/měs. (včetně tepla a teplé vody) + elektřina cca 500,- Kč + plyn (pouze vaření). Předpis záloh bude navýšen na cca 3.250,- Kč/měs.
Stanice metra Střížkov je vzdálená 10 min. pěšky, stanice tramvaje Sídliště Ďáblice je 2 min. pěšky. V pohodlné dochozí vzdálenosti je mateřská i základní škola, Poliklinika Prosek a obchodní dům Kaufland.
Byt bude prodán nejvýhodnější cenové nabídce při elektronické soutěži, která se bude konat dne 28.5.2026. Více info u kontaktní osoby. Jeden z prodávajících je insolvenční správce, koupi bytu není možné financovat tak, že by nabyvatel ručil tímto bytem. Musel by ručit jinou svojí nemovitostí.
Pomocí naší hypoteční kalkulačky si můžete udělat orientační představu o výši měsíčních splátek hypotéky. O vše ostatní se pak postaráme my ve spolupráci s našimi obchodními partnery.
14 980 Kč
* Odhadovaná měsíční splátka vychází z výše úvěru Kč s pevnou úrokovou sazbou % po celou dobu trvání úvěru.
Prodáváte nemovitost a potřebujete zjistit její reálnou hodnotu?
Uživatel serveru RealityMIX.cz (dále jen „Server“) dostupného na internetové adrese (URL) https://www.realitymix.cz, který provozuje společnost DALTEN media s.r.o., se sídlem Na Harfě 916/9a, Praha 9, 190 00, IČO: 271 35 306 (dále jen „Správce“) jako provozovateli tohoto Serveru uděluje svůj výslovný souhlas v souladu s ustanovením § 5 zákona č. 101/2000 Sb. O ochraně osobních údajů a o změně některých zákonů, v platném znění (dále jen „zákon o ochraně osobních údajů“), se zpracováním uživatelem poskytnutých osobních údajů a dalších dat.
Uživatel poskytuje Správci osobní údaje v rozsahu: jméno, příjmení, e-mailová adresa, telefonický kontakt a další data, a to z důvodu projeveného zájmu o nemovitost, kde prostřednictvím služby Serveru Správce osloví Uživatel inzerenta uvedeného v detailu
nemovitosti - NAXOS a.s. (IČ 26445867) se zájmem o jeho služby. Tato společnost je součástí seskupení/sítě/franšízového modelu realitních kanceláří, jejich seznam můžete zobrazit kliknutím na tento odkaz.
NAXOS Ostrava, a.s. (IČ 27779831) , NAXOS a.s. (IČ 26445867) , NAXOS a.s. (IČ 26445867)
Uživatel tyto osobní údaje poskytuje dobrovolně a bere na vědomí, že součástí služeb Správce, které Správce Uživateli poskytuje, je vyhledání všech Uživateli vyhovujících (dle parametrů - cena, typ nemovitosti, lokalita atd.) nemovitostí. Správce za tímto účelem provozuje aplikace Hlídací pes a newsletter. Tyto služby je možné z každého zaslaného emailu odhlásit. Souhlas se zpracováním osobních údajů Uživatel poskytuje Správci na dobu neurčitou s tím, že svůj udělený souhlas může Uživatel kdykoliv na drese správce info@realitymix.cz odvolat. Správce garantuje Uživateli i další práva uvedené v ustanovení §11 a §21 zákoba č. 101/200 Sb. Ve znění pozdějších předpisů.
Více informací o zpracování údajů získáte zde (realitymix.cz/zasady-ochrany-osobnich-udaju)