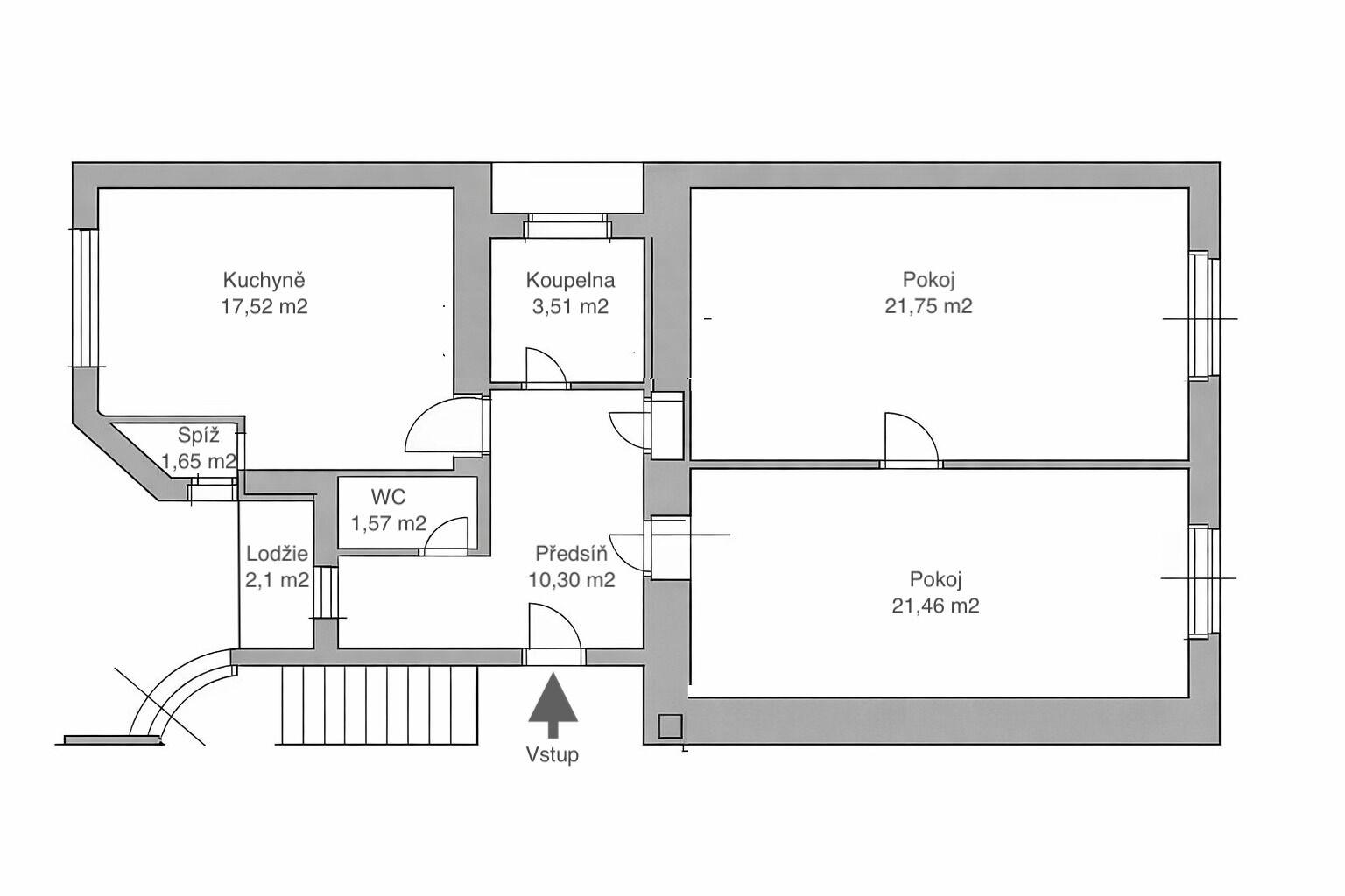
Nabízím k prodeji prostorný byt o dispozici 2+1 s možností úpravy na moderní 3+kk, o celkové ploše 80 m², situovaný ve 4. patře cihlového domu s výtahem v žádané lokalitě Praha 4 – Nusle.
Byt je před rekonstrukcí, což představuje ideální příležitost pro vytvoření bydlení přesně podle vlastních představ, případně zajímavou investici s potenciálem zhodnocení. Rekonstrukce byla částečně zahájena, nový majitel tak může plynule navázat a dokončit úpravy dle svého vkusu.
Aktuální stav:
• ložnice – nově vyštukované zdi a sádrokartonový podhled
• koupelna – připravena na nové rozvody vody, stěny bez finálních úprav
• ostatní místnosti – určeny k rekonstrukci
• plastová okna
• orientace na východ a západ zajišťující dostatek světla po celý den
• praktická dispozice se samostatnými vstupy do jednotlivých pokojů
• lodžie s okny
Dispoziční řešení nabízí jednoduchou úpravu na vzdušný a funkční 3+kk, který odpovídá současným požadavkům na moderní bydlení.
Vytápění je řešeno plynovými vafkami.
Dům je ve velmi dobrém stavu po rekonstrukci a poskytuje klidné a udržované zázemí. K bytu náleží velká sklepní komora v suterénu domu.
Lokalita Praha 4 – Nusle patří dlouhodobě mezi vyhledávané rezidenční oblasti díky skvělé kombinaci dostupnosti a občanské vybavenosti. V docházkové vzdálenosti se nachází supermarket, obchody, restaurace, kavárny i další služby pro každodenní život. Samozřejmostí je výborné dopravní spojení do centra města prostřednictvím MHD.
2 stanice autobusem na metro C Pankrác nebo 10 min. na metro I.P. Pavlova.
V okolí najdete také školy, školky a dostatek zeleně pro volnočasové aktivity a odpočinek. Parkování je možné v modrých zónách přímo v okolí domu.
Pro více informací nebo sjednání prohlídky mě neváhejte kontaktovat.
Pomocí naší hypoteční kalkulačky si můžete udělat orientační představu o výši měsíčních splátek hypotéky. O vše ostatní se pak postaráme my ve spolupráci s našimi obchodními partnery.
46 560 Kč
* Odhadovaná měsíční splátka vychází z výše úvěru Kč s pevnou úrokovou sazbou % po celou dobu trvání úvěru.
Prodáváte nemovitost a potřebujete zjistit její reálnou hodnotu?
Uživatel serveru RealityMIX.cz (dále jen „Server“) dostupného na internetové adrese (URL) https://www.realitymix.cz, který provozuje společnost DALTEN media s.r.o., se sídlem Na Harfě 916/9a, Praha 9, 190 00, IČO: 271 35 306 (dále jen „Správce“) jako provozovateli tohoto Serveru uděluje svůj výslovný souhlas v souladu s ustanovením § 5 zákona č. 101/2000 Sb. O ochraně osobních údajů a o změně některých zákonů, v platném znění (dále jen „zákon o ochraně osobních údajů“), se zpracováním uživatelem poskytnutých osobních údajů a dalších dat.
Uživatel poskytuje Správci osobní údaje v rozsahu: jméno, příjmení, e-mailová adresa, telefonický kontakt a další data, a to z důvodu projeveného zájmu o nemovitost, kde prostřednictvím služby Serveru Správce osloví Uživatel inzerenta uvedeného v detailu
nemovitosti - Martin Kratochvíl - Real estate (IČ 27606384) se zájmem o jeho služby.
Uživatel tyto osobní údaje poskytuje dobrovolně a bere na vědomí, že součástí služeb Správce, které Správce Uživateli poskytuje, je vyhledání všech Uživateli vyhovujících (dle parametrů - cena, typ nemovitosti, lokalita atd.) nemovitostí. Správce za tímto účelem provozuje aplikace Hlídací pes a newsletter. Tyto služby je možné z každého zaslaného emailu odhlásit. Souhlas se zpracováním osobních údajů Uživatel poskytuje Správci na dobu neurčitou s tím, že svůj udělený souhlas může Uživatel kdykoliv na drese správce info@realitymix.cz odvolat. Správce garantuje Uživateli i další práva uvedené v ustanovení §11 a §21 zákoba č. 101/200 Sb. Ve znění pozdějších předpisů.
Více informací o zpracování údajů získáte zde (realitymix.cz/zasady-ochrany-osobnich-udaju)