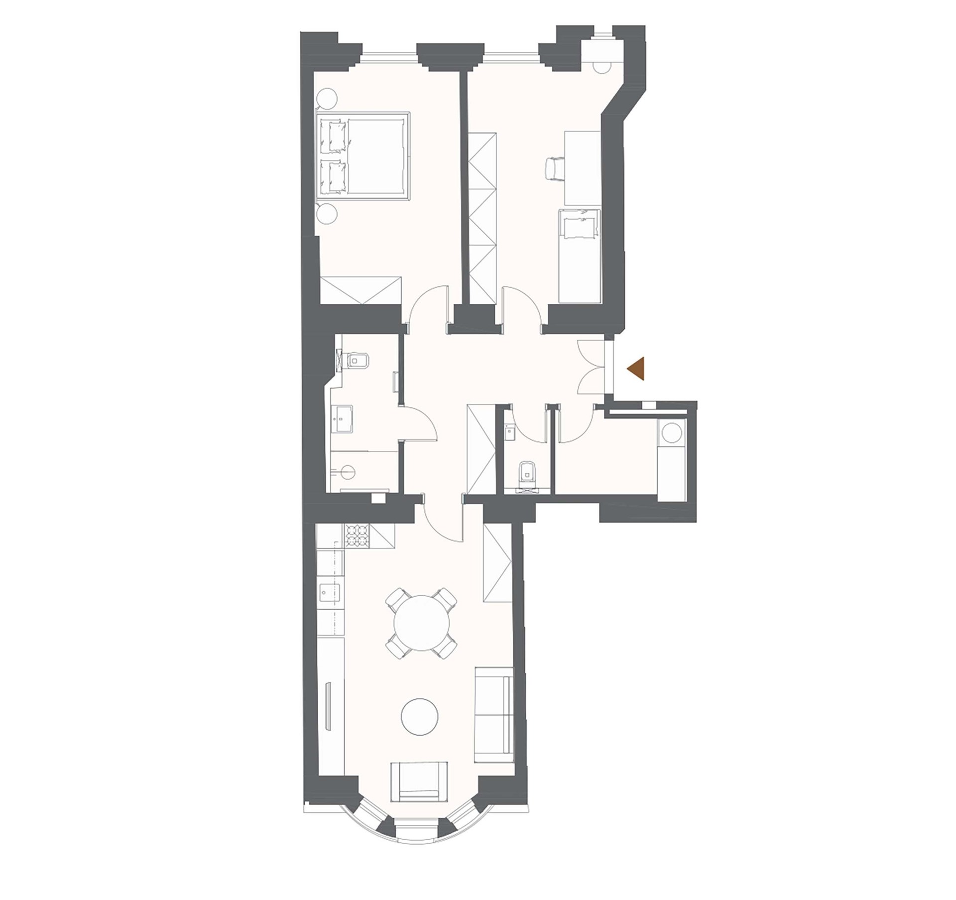
Severně / Jižně orientovaný byt o dispozici 3+kk a podlahové ploše 88,9 m² je součástí nového rezidenčního projektu Bělehradská 29, který vzniká kompletní rekonstrukcí novobarokního činžovního domu z roku 1910. Nachází se na pomezí Vinohrad a Nuslí – v živé čtvrti s kavárnami, službami i zelení, jen minutu od tramvajové zastávky Nuselské schody. Dokončení je plánováno na 3. čtvrtletí roku 2026. Půdorys bytu v 2. podlaží zahrnuje obývací pokoj s přípravou na kuchyni, dvě ložnice, vstupní chodbu, praktickou komoru, koupelnu se sprchovým koutem a samostatnou toaletou. K jednotce náleží také sklepní kóje. Vybavení zahrnuje dubové podlahy, dřevěná špaletová okna s dvojsklem, elegantní interiérové dveře, koupelnu v nadčasovém designu se sanitou značek Laufen a Grohe a decentně řešená otopná tělesa a elektroinstalaci, která neruší celkový výraz interiéru. Byt bude dokončen v provedení fit out – připravený k okamžitému nastěhování.
Dům projde kompletní rekonstrukcí. Vzniknou reprezentativní společné prostory, moderní výtah, repasované kamenné schodiště se zdobným zábradlím a nové technické zázemí. Rezidentům bude k dispozici sauna, fitness, kolárna a kočárkárna, ve vnitrobloku pak klidné místo k posezení mezi zelení. Budova stojí v klidném úseku ulice Bělehradská, jen pár kroků od tramvajové zastávky Nuselské schody. V okolí jsou oblíbené podniky jako Solo Bakery, Ô-mai coffee, Las Adelitas nebo pizzerie Da Pietro, v docházkové vzdálenosti také parky Folimanka a Grébovka. Nechybí zde lékárny, školy, fitness centra ani běžné služby. Na metro I. P. Pavlova se dostanete tramvají za čtyři minuty, do centra během deseti.
Pomocí naší hypoteční kalkulačky si můžete udělat orientační představu o výši měsíčních splátek hypotéky. O vše ostatní se pak postaráme my ve spolupráci s našimi obchodními partnery.
69 719 Kč
* Odhadovaná měsíční splátka vychází z výše úvěru Kč s pevnou úrokovou sazbou % po celou dobu trvání úvěru.
Prodáváte nemovitost a potřebujete zjistit její reálnou hodnotu?
Uživatel serveru RealityMIX.cz (dále jen „Server“) dostupného na internetové adrese (URL) https://www.realitymix.cz, který provozuje společnost DALTEN media s.r.o., se sídlem Na Harfě 916/9a, Praha 9, 190 00, IČO: 271 35 306 (dále jen „Správce“) jako provozovateli tohoto Serveru uděluje svůj výslovný souhlas v souladu s ustanovením § 5 zákona č. 101/2000 Sb. O ochraně osobních údajů a o změně některých zákonů, v platném znění (dále jen „zákon o ochraně osobních údajů“), se zpracováním uživatelem poskytnutých osobních údajů a dalších dat.
Uživatel poskytuje Správci osobní údaje v rozsahu: jméno, příjmení, e-mailová adresa, telefonický kontakt a další data, a to z důvodu projeveného zájmu o nemovitost, kde prostřednictvím služby Serveru Správce osloví Uživatel inzerenta uvedeného v detailu
nemovitosti - PSN s.r.o. (IČ 17048869) se zájmem o jeho služby. Tato společnost je součástí seskupení/sítě/franšízového modelu realitních kanceláří, jejich seznam můžete zobrazit kliknutím na tento odkaz.
PSN s.r.o. Pardubice (IČ 17048869) , Pražská správa nemovitostí, spol. s r.o. Kladno (IČ 17048869) , PSN s.r.o. (IČ 17048869) , PSN s.r.o. (IČ 17048869)
Uživatel tyto osobní údaje poskytuje dobrovolně a bere na vědomí, že součástí služeb Správce, které Správce Uživateli poskytuje, je vyhledání všech Uživateli vyhovujících (dle parametrů - cena, typ nemovitosti, lokalita atd.) nemovitostí. Správce za tímto účelem provozuje aplikace Hlídací pes a newsletter. Tyto služby je možné z každého zaslaného emailu odhlásit. Souhlas se zpracováním osobních údajů Uživatel poskytuje Správci na dobu neurčitou s tím, že svůj udělený souhlas může Uživatel kdykoliv na drese správce info@realitymix.cz odvolat. Správce garantuje Uživateli i další práva uvedené v ustanovení §11 a §21 zákoba č. 101/200 Sb. Ve znění pozdějších předpisů.
Více informací o zpracování údajů získáte zde (realitymix.cz/zasady-ochrany-osobnich-udaju)