Částečně zařízený byt 3+kk/T, park. stání, Praha 5 - Jinonice
Nabízím k pronájmu prostorný světlý byt 3+kk/T v Praze 5 - Jinonicích, ul. U dětského hřiště. Lokalita je velmi klidná, rezidenční v těsné blízkosti přírodního parku Vidoule. Na stanici metra Nové Butovice se dostanete pěší chůzí do 10-ti minut a zde se také nachází nákupní centrum Nové Butovice. s hypermarketem, spoustou obchodu, restaurací a kaváren. V docházkové vzdálenosti je německá škola, na francouzské lyceum se dostanete pohodlně metrem. Letiště je vzdáleno cca. 15 minut jízdy od domu.
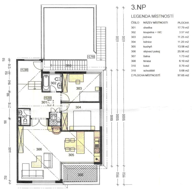
Byt se nachází ve 2. patře čtyřpatrové vily. Celková plocha bytu je 98 m2 + terasa 35 m2. Dominantou bytu je obývací pokoj s kuch. koutem a krbem, ze kterého je přístup na terasu. Ložnice jsou navzájem neprůchozí. Koupelna je vybavena vanou, umyvadlem a WC, v bytě se nachází další samostatné WC. Podlahy jsou z dubového dřeva, stejně jako vnitřní dveře. Byt je vybaven kuch. linkou včetně zabudovaných spotřebičů a je částečně vybaven nábytkem. Vytápění a ohřev teplé vody zajišťuje plynový kotel. K bytu náleží jedno venkovní parkovací stání. Zálohy na služby a energie je 4.500 Kč/měs a je každoročně vyúčtována dle spotřeby. Majitel požaduje kauci ve výši 2 nájmů, provize činí jeden nájem.
Byt je ideální volbou pro pro páry, pouze bez domácích zvířat. K dispozici bude od května 2026, prohlídky bytu jsou možné po dohodě.
Cena:
38 000 Kč / (za měsíc)
Poznámka:
+ záloha na služby a energie 4.500 Kč/měs, provize 1 nájem
Uživatel serveru RealityMIX.cz (dále jen „Server“) dostupného na internetové adrese (URL) https://www.realitymix.cz, který provozuje společnost DALTEN media s.r.o., se sídlem Na Harfě 916/9a, Praha 9, 190 00, IČO: 271 35 306 (dále jen „Správce“) jako provozovateli tohoto Serveru uděluje svůj výslovný souhlas v souladu s ustanovením § 5 zákona č. 101/2000 Sb. O ochraně osobních údajů a o změně některých zákonů, v platném znění (dále jen „zákon o ochraně osobních údajů“), se zpracováním uživatelem poskytnutých osobních údajů a dalších dat.
Uživatel poskytuje Správci osobní údaje v rozsahu: jméno, příjmení, e-mailová adresa, telefonický kontakt a další data, a to z důvodu projeveného zájmu o nemovitost, kde prostřednictvím služby Serveru Správce osloví Uživatel inzerenta uvedeného v detailu
nemovitosti - Realitní agentura Starlet (IČ 27170934) se zájmem o jeho služby.
Uživatel tyto osobní údaje poskytuje dobrovolně a bere na vědomí, že součástí služeb Správce, které Správce Uživateli poskytuje, je vyhledání všech Uživateli vyhovujících (dle parametrů - cena, typ nemovitosti, lokalita atd.) nemovitostí. Správce za tímto účelem provozuje aplikace Hlídací pes a newsletter. Tyto služby je možné z každého zaslaného emailu odhlásit. Souhlas se zpracováním osobních údajů Uživatel poskytuje Správci na dobu neurčitou s tím, že svůj udělený souhlas může Uživatel kdykoliv na drese správce info@realitymix.cz odvolat. Správce garantuje Uživateli i další práva uvedené v ustanovení §11 a §21 zákoba č. 101/200 Sb. Ve znění pozdějších předpisů.
Více informací o zpracování údajů získáte zde (realitymix.cz/zasady-ochrany-osobnich-udaju)