Exkluzivní investiční příležitost v Praze 6 Lysolaje
Exkluzivní investiční příležitost v Praze 6 Lysolaje
Rodinný dům se 3 bytovými jednotkami + rozvojový potenciál
Nabízíme k prodeji atraktivní nemovitost v jedné z nejžádanějších a klidných lokalit Prahy 6 Lysolaje.
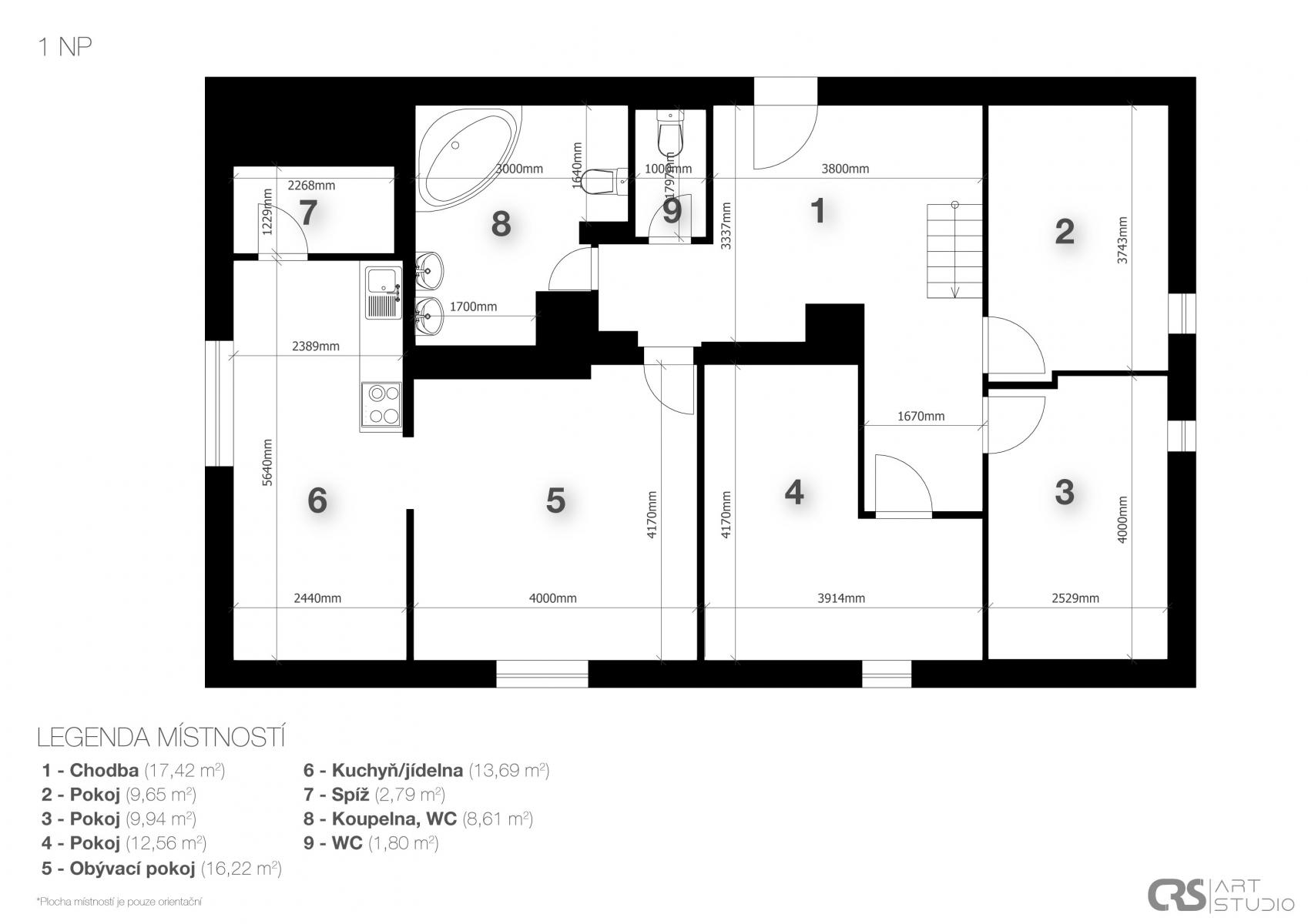
Jedná se o rodinný dům rozdělený na 3 bytové jednotky, který stojí na pozemku o celkové výměře cca 3 019 m and sup2; (z toho zahrada cca 2 714 m and sup2;) . Nemovitost představuje ideální kombinaci okamžitého využití a dlouhodobého developerského potenciálu.
Klíčové přednosti nemovitosti:
3 samostatné bytové jednotky vhodné pro nájemní bydlení či vícegenerační užívání
Částečná rekonstrukce (přízemí a podkroví), zbytek v původním stavu možnost realizace dle vlastních představ
Rozlehlý pozemek se zahradou poskytující soukromí i další využití
Výjimečná lokalita klid, zeleň, zároveň výborná dostupnost centra Prahy
Developerský potenciál:
Pozemek umožňuje realizaci nového stavebního záměru o velikosti cca 7 až 8 bytových jednotek, v závislosti na zvoleném architektonickém řešení.
Projekt je nutné přizpůsobit:
konfiguraci a svažitosti terénu
požadavkům na parkovací kapacity
regulativům územního plánování
Ideální příležitost pro investora nebo developera hledajícího projekt v prémiové lokalitě s omezenou nabídkou.
Nabídková cena: 36 000 000 Kč
Lokalita Lysolaje, Praha 6
Vyhledávaná rezidenční čtvrť s venkovským charakterem, množstvím zeleně a rychlou dostupností do centra i na letiště. Oblast nabízí kombinaci klidu, prestiže a dlouhodobě stabilní hodnoty nemovitostí.
Pomocí naší hypoteční kalkulačky si můžete udělat orientační představu o výši měsíčních splátek hypotéky. O vše ostatní se pak postaráme my ve spolupráci s našimi obchodními partnery.
145 754 Kč
* Odhadovaná měsíční splátka vychází z výše úvěru Kč s pevnou úrokovou sazbou % po celou dobu trvání úvěru.
Uživatel serveru RealityMIX.cz (dále jen „Server“) dostupného na internetové adrese (URL) https://www.realitymix.cz, který provozuje společnost DALTEN media s.r.o., se sídlem Na Harfě 916/9a, Praha 9, 190 00, IČO: 271 35 306 (dále jen „Správce“) jako provozovateli tohoto Serveru uděluje svůj výslovný souhlas v souladu s ustanovením § 5 zákona č. 101/2000 Sb. O ochraně osobních údajů a o změně některých zákonů, v platném znění (dále jen „zákon o ochraně osobních údajů“), se zpracováním uživatelem poskytnutých osobních údajů a dalších dat.
Uživatel poskytuje Správci osobní údaje v rozsahu: jméno, příjmení, e-mailová adresa, telefonický kontakt a další data, a to z důvodu projeveného zájmu o nemovitost, kde prostřednictvím služby Serveru Správce osloví Uživatel inzerenta uvedeného v detailu
nemovitosti - 1. Česká správní - 1. Česká správní (IČ 19220588) se zájmem o jeho služby.
Uživatel tyto osobní údaje poskytuje dobrovolně a bere na vědomí, že součástí služeb Správce, které Správce Uživateli poskytuje, je vyhledání všech Uživateli vyhovujících (dle parametrů - cena, typ nemovitosti, lokalita atd.) nemovitostí. Správce za tímto účelem provozuje aplikace Hlídací pes a newsletter. Tyto služby je možné z každého zaslaného emailu odhlásit. Souhlas se zpracováním osobních údajů Uživatel poskytuje Správci na dobu neurčitou s tím, že svůj udělený souhlas může Uživatel kdykoliv na drese správce info@realitymix.cz odvolat. Správce garantuje Uživateli i další práva uvedené v ustanovení §11 a §21 zákoba č. 101/200 Sb. Ve znění pozdějších předpisů.
Více informací o zpracování údajů získáte zde (realitymix.cz/zasady-ochrany-osobnich-udaju)