Luxusní byt 4+1/L s terasou a zahradou, kompletně zařízený, v moderní čtvrti Chodov, Praha 4, s výta
K pronájmu nabízíme exkluzivní byt 4+1 v prestižní lokalitě Praha 4, Chodov. Tento prostorný byt s podlahovou plochou 151 m² a užitnou plochou 250 m² se pyšní moderním vybavením a vysoce kvalitním provedením. Byt se nachází v prvním až třetím podlaží cihlové budovy s výtahem, postavené v roce 2014, a nabízí vše, co moderní bydlení vyžaduje.
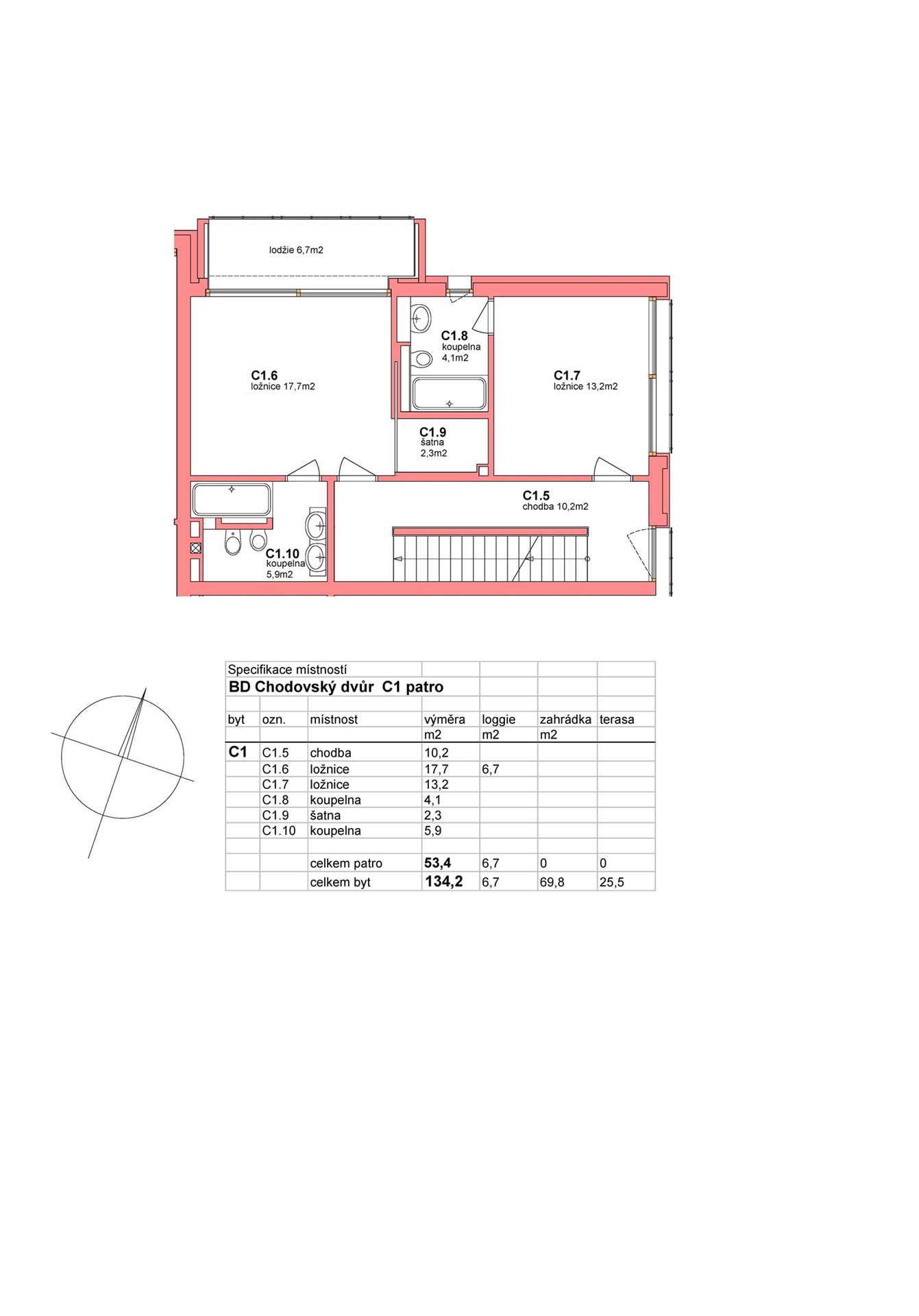
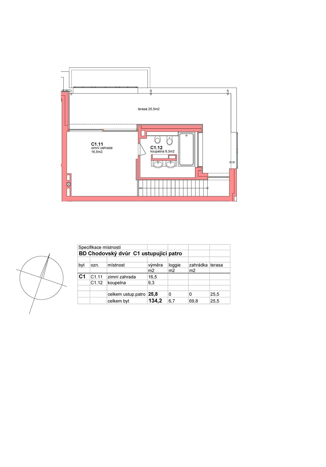
Jeho dispozice zahrnuje tři ložnice, z nichž každá má vlastní koupelnu, prostorný obývací pokoj propojený s plně vybavenou a moderní kuchyní, samostatnou toaletu, chodby a šatnu. Kuchyň je vybavena moderními spotřebiči, jako je varná deska, vestavěná lednice s mrazákem, mikrovlnná trouba, elektrická trouba a myčka nádobí. Obývací pokoj je prostorný, s přímým vstupem na zahradu s terasou o ploše 70 m², která poskytuje ideální místo pro trávení společných chvil na čerstvém vzduchu. Ložnice v posledním podlaží navíc disponuje terasou o velikosti 25,5 m², která nabízí nádherný výhled do sousedního parku. Byt dále disponuje uzavřenou lodžií (6,7 m²) a sklepem (4 m²). Součástí bytu jsou také dvě parkovací stání v garáži.
Byt se pronajímá kompletně zařízený nábytekem. Měsíční nájem bytu činí 70 000 Kč, vybavení domu za 20 000 Kč měsíčně. Kauce je stanovena na trojnásobek měsíčního nájmu a skládá se při podpisu smlouvy. Provize za zprostředkování činí výši jednoho měsíčního nájmu. V ceně nájmu nejsou zahrnuty poplatky SVJ ve výši 8 100 Kč a poplatky za spotřebu elektrické energie ve výši 1 200 Kč.
Poloha nabízí kompletní občanskou vybavenost školy, školky, obchody, restaurace a zdravotnická zařízení jsou na dosah. Dopravní dostupnost je vynikající, v blízkosti se nachází autobusy a metro C, což zajišťuje snadný přístup do ostatních částí Prahy.
Tento byt je ideální volbou pro ty, kteří hledají komfortní a reprezentativní bydlení v klidné části Prahy s rychlým spojením do centra města. Byt je k dispozici k pronájmu dlouhodobě (minimálně na rok) a je již kompletně zařízen, připraven k okamžitému nastěhování.
Objekt se nachází v městské části Chodov a nabízí všechny přednosti života ve velkoměstě, přičemž si zachovává pocit soukromí a pohodlí. Přijďte se přesvědčit o kvalitách tohoto jedinečného bytu, který může být brzy vaším novým domovem.
Cena:
70 000 Kč / (za měsíc)
Poznámka:
Cena pronájmu vč. zařízení a vybavení 20 000 Kč za měsíc.
Datum k nastěhování:
01.06.2025
Dispozice/podlahová plocha:
4+1/151 m²
Číslo zakázky:
REALITYMIX-947923
Podrobné informace
Dispozice bytu:4+1
Číslo podlaží v domě:1
Počet podlaží objektu:3
Celková podlahová plocha:151 m²
Druh objektu:smíšená
Stav objektu:novostavba
Vlastnictví:osobní
Výška stropu:3 m
Lodžie:7 m²
Sklep:4 m²
Terasa:26 m²
Vybaveno:ano
Doprava:vlak, dálnice, silnice, MHD
Elektřina:Elektro - 230 V
Voda:Zdroj pro celý objekt, Voda - dálkový vodovod
Uživatel serveru RealityMIX.cz (dále jen „Server“) dostupného na internetové adrese (URL) https://www.realitymix.cz, který provozuje společnost DALTEN media s.r.o., se sídlem Na Harfě 916/9a, Praha 9, 190 00, IČO: 271 35 306 (dále jen „Správce“) jako provozovateli tohoto Serveru uděluje svůj výslovný souhlas v souladu s ustanovením § 5 zákona č. 101/2000 Sb. O ochraně osobních údajů a o změně některých zákonů, v platném znění (dále jen „zákon o ochraně osobních údajů“), se zpracováním uživatelem poskytnutých osobních údajů a dalších dat.
Uživatel poskytuje Správci osobní údaje v rozsahu: jméno, příjmení, e-mailová adresa, telefonický kontakt a další data, a to z důvodu projeveného zájmu o nemovitost, kde prostřednictvím služby Serveru Správce osloví Uživatel inzerenta uvedeného v detailu
nemovitosti - Vilímková Reality (IČ 45296081) se zájmem o jeho služby.
Uživatel tyto osobní údaje poskytuje dobrovolně a bere na vědomí, že součástí služeb Správce, které Správce Uživateli poskytuje, je vyhledání všech Uživateli vyhovujících (dle parametrů - cena, typ nemovitosti, lokalita atd.) nemovitostí. Správce za tímto účelem provozuje aplikace Hlídací pes a newsletter. Tyto služby je možné z každého zaslaného emailu odhlásit. Souhlas se zpracováním osobních údajů Uživatel poskytuje Správci na dobu neurčitou s tím, že svůj udělený souhlas může Uživatel kdykoliv na drese správce info@realitymix.cz odvolat. Správce garantuje Uživateli i další práva uvedené v ustanovení §11 a §21 zákoba č. 101/200 Sb. Ve znění pozdějších předpisů.
Více informací o zpracování údajů získáte zde (realitymix.cz/zasady-ochrany-osobnich-udaju)