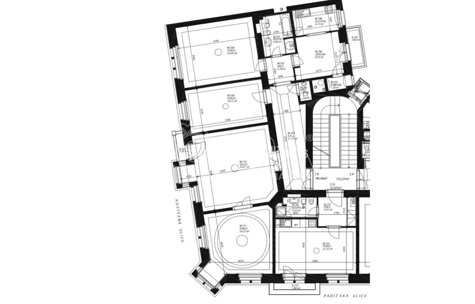
Nabízíme k pronájmu výjimečný, nezařízený byt o dispozici 4+1 a celkové ploše 151 m, se dvěma balkony, situovaný v reprezentativním historickém činžovním domě s recepcí, přímo v prestižní Pařížské ulici. Dům se nachází na jedné z nejluxusnějších adres v Praze, jen pár kroků od Staroměstského náměstí.
Byt prošel kompletní a citlivou rekonstrukcí v roce 2023, při které byl kladen důraz na zachování původních architektonických prvků a historického charakteru interiéru. Nabízí tak exkluzivní bydlení s jedinečnou atmosférou. Velmi světlý byt je umístěn ve 3. nadzemním podlaží domu s moderním výtahem.
Dispozice bytu zahrnuje prostornou vstupní halu, reprezentativní obývací pokoj, tři samostatné pokoje, komoru, koupelnu s vanou, toaletou a bidetem a samostatnou toaletu. Oddělená kuchyně je vybavena novou moderní kuchyňskou linkou se všemi spotřebiči (sporák, trouba, lednice s mrazákem, myčka, pračka).
Interiér zaujme vysokými stropy, v hlavním pokoji se nachází originální historická stropní malba, v rohovém pokoji pak pozlacený štukový strop. Podlahy jsou pokryty dřevěnými parketami a ve všech místnostech je instalována klimatizace.
Stylové bydlení v samotném srdci Prahy nabízí neopakovatelnou atmosféru historického centra a jedné z nejluxusnějších ulic Evropy. Kompletní občanská vybavenost v bezprostředním okolí vyhlášené restaurace, kavárny, butiky i kulturní instituce.
Uživatel serveru RealityMIX.cz (dále jen „Server“) dostupného na internetové adrese (URL) https://www.realitymix.cz, který provozuje společnost DALTEN media s.r.o., se sídlem Na Harfě 916/9a, Praha 9, 190 00, IČO: 271 35 306 (dále jen „Správce“) jako provozovateli tohoto Serveru uděluje svůj výslovný souhlas v souladu s ustanovením § 5 zákona č. 101/2000 Sb. O ochraně osobních údajů a o změně některých zákonů, v platném znění (dále jen „zákon o ochraně osobních údajů“), se zpracováním uživatelem poskytnutých osobních údajů a dalších dat.
Uživatel poskytuje Správci osobní údaje v rozsahu: jméno, příjmení, e-mailová adresa, telefonický kontakt a další data, a to z důvodu projeveného zájmu o nemovitost, kde prostřednictvím služby Serveru Správce osloví Uživatel inzerenta uvedeného v detailu
nemovitosti - QARA s.r.o. (IČ 01740113) se zájmem o jeho služby. Tato společnost je součástí seskupení/sítě/franšízového modelu realitních kanceláří, jejich seznam můžete zobrazit kliknutím na tento odkaz.
QARA s.r.o. Ostrava (IČ 01740113) , QARA s.r.o. Brno (IČ 01740113) , QARA s.r.o. (IČ 01740113)
Uživatel tyto osobní údaje poskytuje dobrovolně a bere na vědomí, že součástí služeb Správce, které Správce Uživateli poskytuje, je vyhledání všech Uživateli vyhovujících (dle parametrů - cena, typ nemovitosti, lokalita atd.) nemovitostí. Správce za tímto účelem provozuje aplikace Hlídací pes a newsletter. Tyto služby je možné z každého zaslaného emailu odhlásit. Souhlas se zpracováním osobních údajů Uživatel poskytuje Správci na dobu neurčitou s tím, že svůj udělený souhlas může Uživatel kdykoliv na drese správce info@realitymix.cz odvolat. Správce garantuje Uživateli i další práva uvedené v ustanovení §11 a §21 zákoba č. 101/200 Sb. Ve znění pozdějších předpisů.
Více informací o zpracování údajů získáte zde (realitymix.cz/zasady-ochrany-osobnich-udaju)