Luxusní loftový mezonet se střešní terasou a panoramatickými výhledy
Luxusní loftový mezonet v 6. - 7. patře se střešní terasou a panoramatickým výhledem na údolí Vltavy, Vyšehradu, Dívčích Hradů a Pražského hradu. Loft se nachází v industriální budově a je situován v blízkosti komerčního centra Anděl, nedaleko klidného prostředí Prokopského údolí.
Nemovitost je možné pronajmout i za účelem využití jako kanceláře.
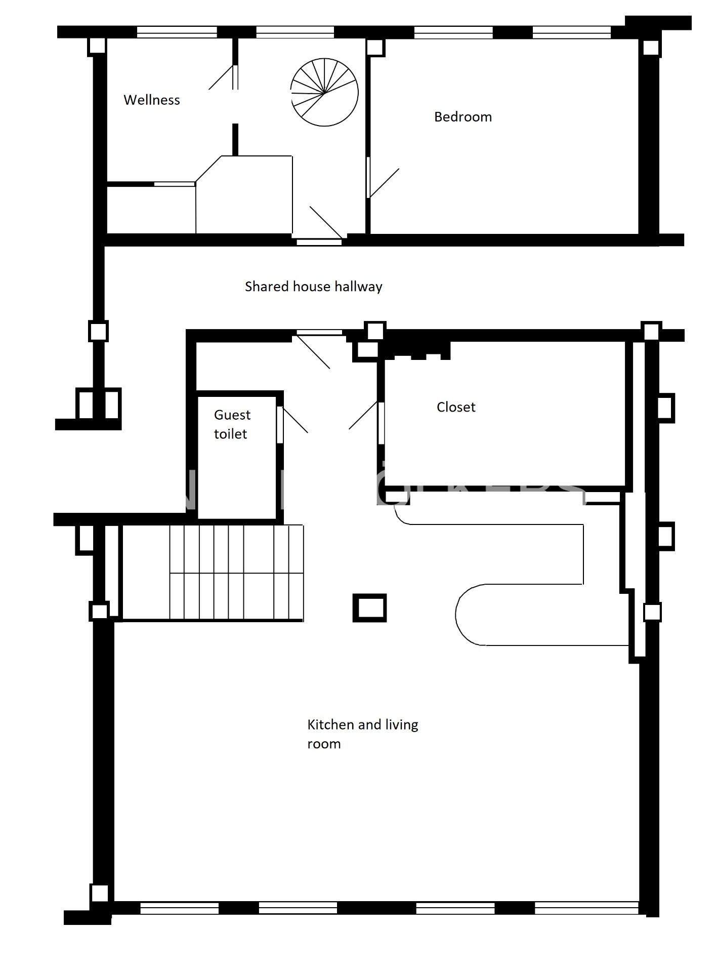
Spodní úroveň loftu tvoří otevřený obývací pokoj s velkoplošnými okny a plně vybavenou kvalitní kuchyní (pračka a sušička je vestavěná v kuchyňské lince), šatna a toaleta pro hosty, ložnice a sauna.
V horním patře se nachází jedna ložnice, otevřená pracovna (galerie), koupelna a otevřená šatna s vestavěnými skříněmi.
Loft se pronajímá nezařízený, pouze včetně vestavěného nábytku (TV součást pronájmu, velký barevný obraz nikoliv).
Z galerie je po točitých schodech přístupná střešní terasa.
Byt je klimatizován.
Luxusní materiály a provedení, velkoformátová okna, dřevěné podlahy, bezpečnostní vstupní dveře, vestavěné skříně a úložné prostory, vnitřní elektrické rolety.
K bytu náleží 1 garážové parkovací stání a je zahrnuto v ceně nájmu. Další vůz může příležitostně parkovat před garáží.
Uživatel serveru RealityMIX.cz (dále jen „Server“) dostupného na internetové adrese (URL) https://www.realitymix.cz, který provozuje společnost DALTEN media s.r.o., se sídlem Na Harfě 916/9a, Praha 9, 190 00, IČO: 271 35 306 (dále jen „Správce“) jako provozovateli tohoto Serveru uděluje svůj výslovný souhlas v souladu s ustanovením § 5 zákona č. 101/2000 Sb. O ochraně osobních údajů a o změně některých zákonů, v platném znění (dále jen „zákon o ochraně osobních údajů“), se zpracováním uživatelem poskytnutých osobních údajů a dalších dat.
Uživatel poskytuje Správci osobní údaje v rozsahu: jméno, příjmení, e-mailová adresa, telefonický kontakt a další data, a to z důvodu projeveného zájmu o nemovitost, kde prostřednictvím služby Serveru Správce osloví Uživatel inzerenta uvedeného v detailu
nemovitosti - ENGEL & VÖLKERS (IČ 27533328) se zájmem o jeho služby.
Uživatel tyto osobní údaje poskytuje dobrovolně a bere na vědomí, že součástí služeb Správce, které Správce Uživateli poskytuje, je vyhledání všech Uživateli vyhovujících (dle parametrů - cena, typ nemovitosti, lokalita atd.) nemovitostí. Správce za tímto účelem provozuje aplikace Hlídací pes a newsletter. Tyto služby je možné z každého zaslaného emailu odhlásit. Souhlas se zpracováním osobních údajů Uživatel poskytuje Správci na dobu neurčitou s tím, že svůj udělený souhlas může Uživatel kdykoliv na drese správce info@realitymix.cz odvolat. Správce garantuje Uživateli i další práva uvedené v ustanovení §11 a §21 zákoba č. 101/200 Sb. Ve znění pozdějších předpisů.
Více informací o zpracování údajů získáte zde (realitymix.cz/zasady-ochrany-osobnich-udaju)