K dlouhodobému pronájmu bych Vám ráda nabídla jedinečnou nabídku nového moderního bytu 2+kk s lodžií, sklepem a garážovým parkovacím stáním. Jedná se o projekt Arcus City - oceněný realitním projektem roku 2022, který nabízí komfortně řešené a kvalitní bydlení v elegantních nízkopodlažních domech se zahradami, balkony i terasami.
Dispozice:
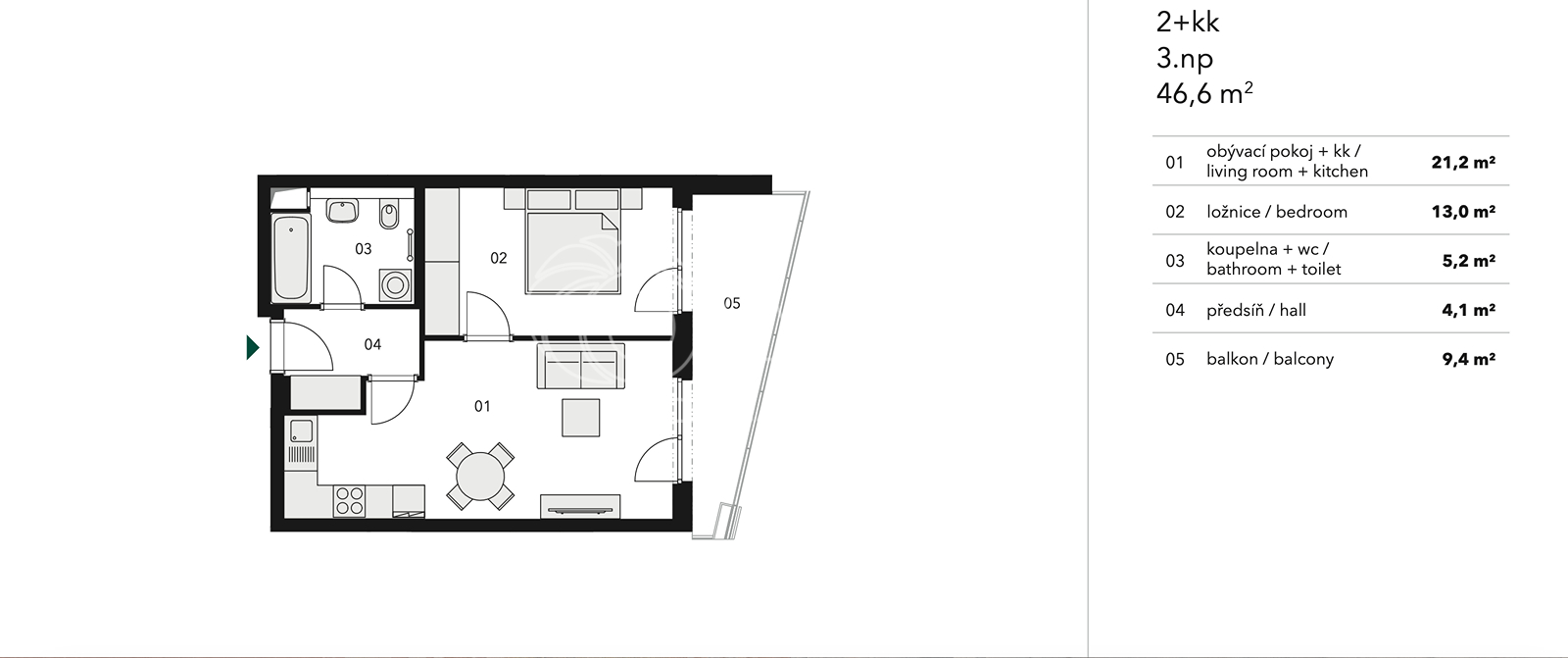
Jednotka je umístěna ve 3. podlaží čtyřpatrové budovy s výtahem a kamerovým systémem. Disponuje plochou 46,6 m2 a lodžií 9,4 m2.
Byt sestává ze vstupní chodby, koupelny s vanou a toaletou, obývacím pokojem se zcela novým, kompletně vybaveným kuchyňským koutem, ložnice a vstupem na prostornou terasu s výhledem na nově vznikající zástavbu rodinných domků se zahrádkami. Nízkoenergeticky náročná jednotka disponuje chytrou domácností, kvalitní dřevěnou podlahou a je zpracována ve vysokém standardu. V budově je k dispozici také kočárkárna.
Pro lepší orientaci doporučuji nahlédnout na přiložený půdorys.
K nastěhování od 01.05.2026.
Majitelé preferují zájemce nekuřáky, bez domácích mazlíčků.
Lokalita:
Tato městská část je vyhledávána díky své malebnosti a bezpečnosti. Nabízí kvalitní bydlení, občanskou vybavenost - mateřské školky, základní a střední školy, obchody, služby, sportoviště, restaurace, polikliniku, poštu. Díky sousedství bioparku Řepora, Prokopskému či Dalejskému údolí můžete aktivně trávit volný čas v přírodě skýtající spoustu možností pro váš aktivní odpočinek. Lokalita je dostupná autobusem, metrem, autem, na kole, pěšky. Autobusy ze zastávky na náměstí v Arcus City vás dovezou za minutu k metru stanice Stodůlky či Luka. Autem se dostanete do centra nebo na letiště Václava Havla za 15 minut.
Nájemné: 22 000 Kč plus poplatek za garážové stání 1 900 Kč
Záloha na služby včetně elektřiny: 4 000 Kč
Vratná kauce/ provize
V případě zájmu mě neváhejte kontaktovat. Ráda se s vámi sejdu na prohlídce bytu.
Cena:
22 000 Kč / (za měsíc)
Datum k nastěhování:
01.05.2026
Dispozice/podlahová plocha:
2+kk/56 m²
Číslo zakázky:
REALITYMIX-19075
Podrobné informace
Dispozice bytu:2+kk
Číslo podlaží v domě:3
Počet podlaží objektu:4
Užitná plocha:56 m²
Celková podlahová plocha:56 m²
Druh objektu:cihlová
Stav objektu:novostavba
Vlastnictví:osobní
Lodžie:9 m²
Sklep:3 m²
Vybaveno:ano
Umístění objektu:klidná část obce
Doprava:vlak, dálnice, silnice, MHD, autobus
Elektřina:Elektro - 230 V
Telekomunikace:Telefon, Internet
Odpad:Kanalizace
Ostatní rozvody:Kabelové rozvody
Energetická náročnost budovy:B - Velmi úsporná
Energetický ukazatel podle vyhlášky:č. 264/2020 Sb.
Uživatel serveru RealityMIX.cz (dále jen „Server“) dostupného na internetové adrese (URL) https://www.realitymix.cz, který provozuje společnost DALTEN media s.r.o., se sídlem Na Harfě 916/9a, Praha 9, 190 00, IČO: 271 35 306 (dále jen „Správce“) jako provozovateli tohoto Serveru uděluje svůj výslovný souhlas v souladu s ustanovením § 5 zákona č. 101/2000 Sb. O ochraně osobních údajů a o změně některých zákonů, v platném znění (dále jen „zákon o ochraně osobních údajů“), se zpracováním uživatelem poskytnutých osobních údajů a dalších dat.
Uživatel poskytuje Správci osobní údaje v rozsahu: jméno, příjmení, e-mailová adresa, telefonický kontakt a další data, a to z důvodu projeveného zájmu o nemovitost, kde prostřednictvím služby Serveru Správce osloví Uživatel inzerenta uvedeného v detailu
nemovitosti - QARA s.r.o. (IČ 01740113) se zájmem o jeho služby. Tato společnost je součástí seskupení/sítě/franšízového modelu realitních kanceláří, jejich seznam můžete zobrazit kliknutím na tento odkaz.
QARA s.r.o. Ostrava (IČ 01740113) , QARA s.r.o. Brno (IČ 01740113) , QARA s.r.o. (IČ 01740113)
Uživatel tyto osobní údaje poskytuje dobrovolně a bere na vědomí, že součástí služeb Správce, které Správce Uživateli poskytuje, je vyhledání všech Uživateli vyhovujících (dle parametrů - cena, typ nemovitosti, lokalita atd.) nemovitostí. Správce za tímto účelem provozuje aplikace Hlídací pes a newsletter. Tyto služby je možné z každého zaslaného emailu odhlásit. Souhlas se zpracováním osobních údajů Uživatel poskytuje Správci na dobu neurčitou s tím, že svůj udělený souhlas může Uživatel kdykoliv na drese správce info@realitymix.cz odvolat. Správce garantuje Uživateli i další práva uvedené v ustanovení §11 a §21 zákoba č. 101/200 Sb. Ve znění pozdějších předpisů.
Více informací o zpracování údajů získáte zde (realitymix.cz/zasady-ochrany-osobnich-udaju)