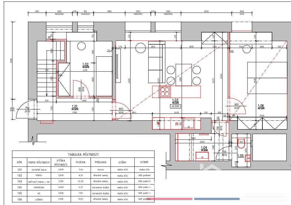
Nabízíme tímto k prodeji byt v Praze ve Střešovicích, klidné v ulici Na Petynce o velikosti 125 m umístěný v přízemí a 1.PP zrekonstruovaného bytového domu (2019).
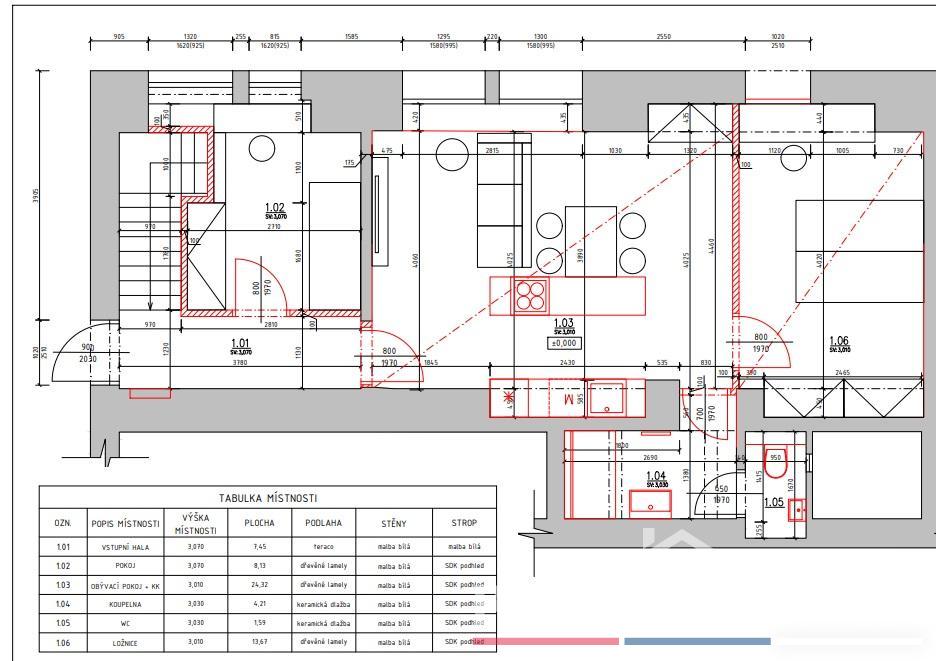
Dle dokumentace je aktuálním typem využití prostor dílna nebo provozovna, pro přízemí je platné povolení stavby za účelem rekolaudace prostor na byt. V případě zájmu lze jednotku rozdělit na 2, kdy každá z nich může mít samostatný vstup.
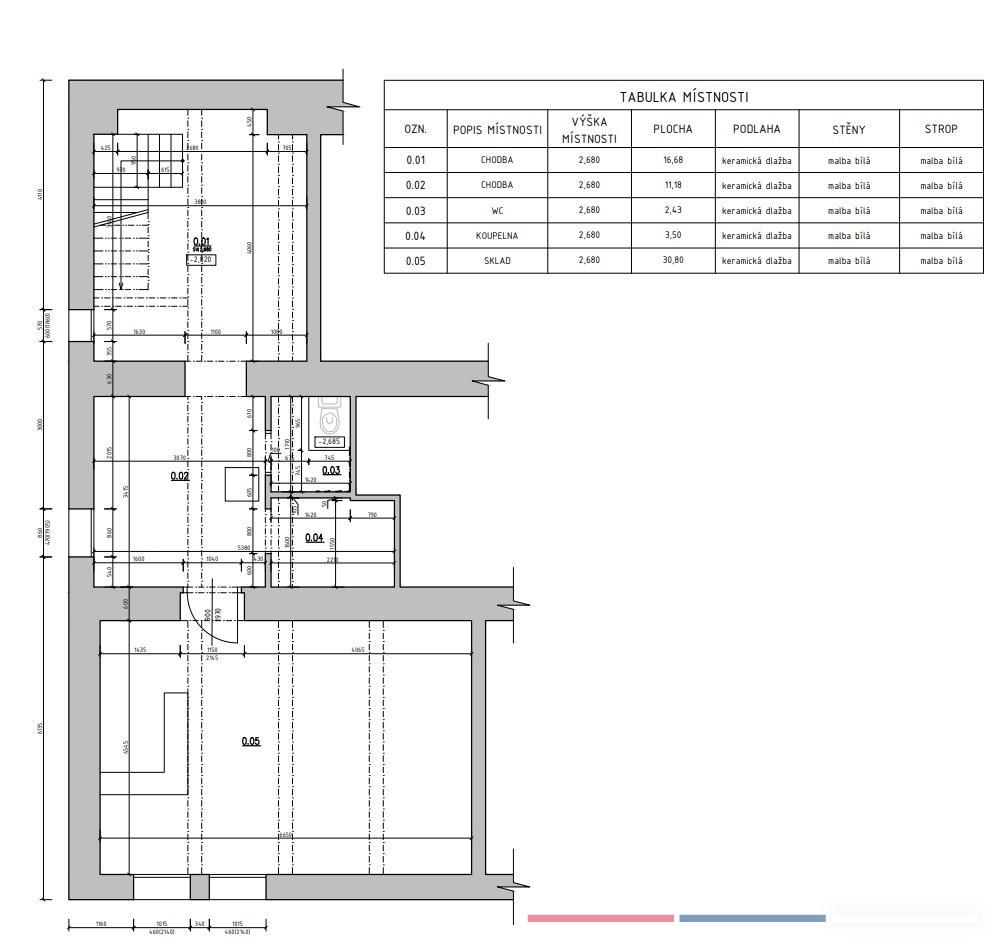
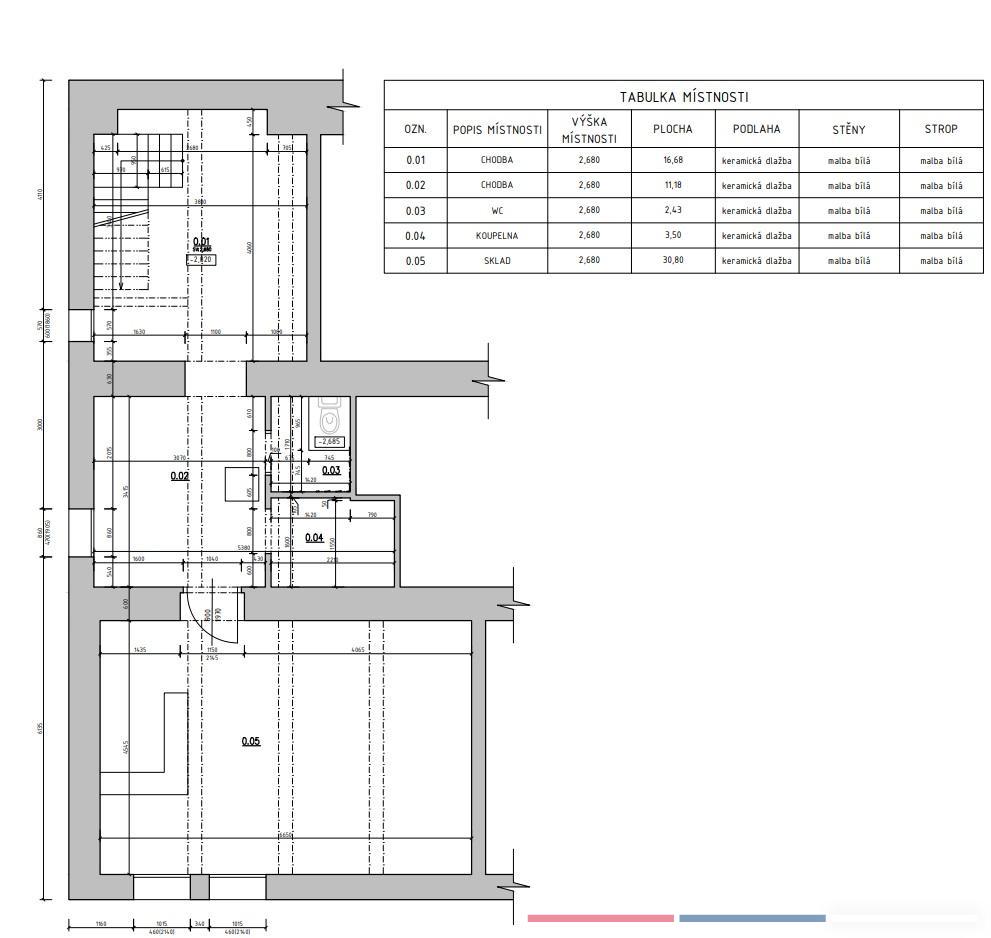
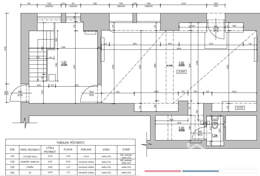
V přízemí se nachází dvě veliké místnosti, k první z nich přiléhá toaleta s komorou, kde se dá zřídit sprcha či kuchyňka nebo šatna, druhá místnost má pak samostatný vstup do jednotky, kde se nachází schodiště vedoucí do dalších místností v 1.PP.
Zde nalezneme prostornou vstupní místnost, širší chodbu se samostatným WC a technickou místnosti, a dále se dostaneme do největšího dolního prostoru o velikosti 30 m2 s okny vedoucími do dvora na parkoviště, okna jsou umístěna v tzv. aglickém dvorku.
Na podlahách je dlažba, okna jsou plastová, topení je centrální plynové.
Za domem i před domem je k dispozici dostatek parkovacích míst. Vozidlem lze zajet přímo k bočnímu vchodu do jednotky, takže lze pohodlně vyložit a naložit věci. Nebo lze prostor využít pro příjemné posezení. Vstup tímto vchodem do přízemí lze lehce upravit na bezbariérový. Na schodiště do suterénu je možné umístit rampu. Zastávka autobusu Na Petynce je 150 metrů od domu, tramvaj linek 22, 23 a 25 v docházkové vzdálenosti.
V případě zájmu o jakékoliv další informace a domluvení prohlídky mne kontaktujte.
Pomocí naší hypoteční kalkulačky si můžete udělat orientační představu o výši měsíčních splátek hypotéky. O vše ostatní se pak postaráme my ve spolupráci s našimi obchodními partnery.
50 609 Kč
* Odhadovaná měsíční splátka vychází z výše úvěru Kč s pevnou úrokovou sazbou % po celou dobu trvání úvěru.
Uživatel serveru RealityMIX.cz (dále jen „Server“) dostupného na internetové adrese (URL) https://www.realitymix.cz, který provozuje společnost DALTEN media s.r.o., se sídlem Na Harfě 916/9a, Praha 9, 190 00, IČO: 271 35 306 (dále jen „Správce“) jako provozovateli tohoto Serveru uděluje svůj výslovný souhlas v souladu s ustanovením § 5 zákona č. 101/2000 Sb. O ochraně osobních údajů a o změně některých zákonů, v platném znění (dále jen „zákon o ochraně osobních údajů“), se zpracováním uživatelem poskytnutých osobních údajů a dalších dat.
Uživatel poskytuje Správci osobní údaje v rozsahu: jméno, příjmení, e-mailová adresa, telefonický kontakt a další data, a to z důvodu projeveného zájmu o nemovitost, kde prostřednictvím služby Serveru Správce osloví Uživatel inzerenta uvedeného v detailu
nemovitosti - Ing. Alena Beňáková (IČ 87874610) se zájmem o jeho služby.
Uživatel tyto osobní údaje poskytuje dobrovolně a bere na vědomí, že součástí služeb Správce, které Správce Uživateli poskytuje, je vyhledání všech Uživateli vyhovujících (dle parametrů - cena, typ nemovitosti, lokalita atd.) nemovitostí. Správce za tímto účelem provozuje aplikace Hlídací pes a newsletter. Tyto služby je možné z každého zaslaného emailu odhlásit. Souhlas se zpracováním osobních údajů Uživatel poskytuje Správci na dobu neurčitou s tím, že svůj udělený souhlas může Uživatel kdykoliv na drese správce info@realitymix.cz odvolat. Správce garantuje Uživateli i další práva uvedené v ustanovení §11 a §21 zákoba č. 101/200 Sb. Ve znění pozdějších předpisů.
Více informací o zpracování údajů získáte zde (realitymix.cz/zasady-ochrany-osobnich-udaju)