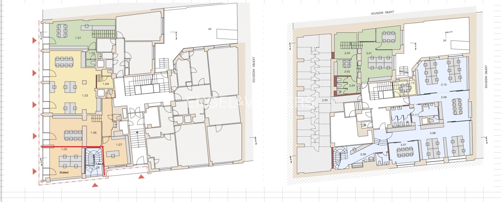
Od konce roku bude k dispozici obchodní prostor k pronájmu ve vyhledávané lokalitě na Praze 5 - Smíchov. Nabízená jednotka má celkovou plochu 183 m², z čehož 7,8 m² připadá na vstupní část v přízemí (1. NP) a 175,4 m² tvoří hlavní prostor v suterénu (1. PP).
Nemovitost se nachází v historickém činžovním domě na rušné ulici Štefánikova s vynikající dostupností městské hromadné dopravy - v blízkosti se nachází tramvajová zastávka Arbesovo náměstí a stanice metra Anděl.
Prostor je vhodný pro obchodní účely, kanceláře, služby nebo jako showroom. Celý objekt projde kompletní rekonstrukcí a bude nájemci předán ve stavu shell and core. Finální úpravy pak budou realizovány ve spolupráci s majitelem, a to podle konkrétních požadavků nájemce.
Fotografie zobrazují aktuální stav prostor. V případě zájmu o více informací nebo prohlídku nás prosím neváhejte kontaktovat.
Uživatel serveru RealityMIX.cz (dále jen „Server“) dostupného na internetové adrese (URL) https://www.realitymix.cz, který provozuje společnost DALTEN media s.r.o., se sídlem Na Harfě 916/9a, Praha 9, 190 00, IČO: 271 35 306 (dále jen „Správce“) jako provozovateli tohoto Serveru uděluje svůj výslovný souhlas v souladu s ustanovením § 5 zákona č. 101/2000 Sb. O ochraně osobních údajů a o změně některých zákonů, v platném znění (dále jen „zákon o ochraně osobních údajů“), se zpracováním uživatelem poskytnutých osobních údajů a dalších dat.
Uživatel poskytuje Správci osobní údaje v rozsahu: jméno, příjmení, e-mailová adresa, telefonický kontakt a další data, a to z důvodu projeveného zájmu o nemovitost, kde prostřednictvím služby Serveru Správce osloví Uživatel inzerenta uvedeného v detailu
nemovitosti - ENGEL & VÖLKERS (IČ 27533328) se zájmem o jeho služby.
Uživatel tyto osobní údaje poskytuje dobrovolně a bere na vědomí, že součástí služeb Správce, které Správce Uživateli poskytuje, je vyhledání všech Uživateli vyhovujících (dle parametrů - cena, typ nemovitosti, lokalita atd.) nemovitostí. Správce za tímto účelem provozuje aplikace Hlídací pes a newsletter. Tyto služby je možné z každého zaslaného emailu odhlásit. Souhlas se zpracováním osobních údajů Uživatel poskytuje Správci na dobu neurčitou s tím, že svůj udělený souhlas může Uživatel kdykoliv na drese správce info@realitymix.cz odvolat. Správce garantuje Uživateli i další práva uvedené v ustanovení §11 a §21 zákoba č. 101/200 Sb. Ve znění pozdějších předpisů.
Více informací o zpracování údajů získáte zde (realitymix.cz/zasady-ochrany-osobnich-udaju)